Votre e-mail a été envoyé.
Certaines informations ont été traduites automatiquement.
Informations principales
- Boutique building with incredible park views and natural light. Perfect full floor identity for modest sized tenants looking for exceptional value.
Tous les espaces disponibles(3)
Afficher les loyers en
- Espace
- Surface
- Durée
- Loyer
- Type de bien
- Aménagement
- Disponible
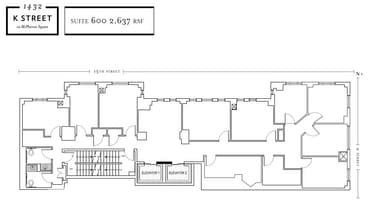
Office intensive space, incredible park views.
- Loyer annoncé plus part proportionnelle des coûts de la consommation électrique
- 9 bureaux privés
- Convient pour 7 à 22 personnes
- 1 salle de conférence
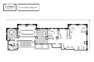
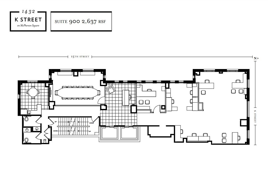
Incredible full floor opportunity for small tenants with amazing park views and natural light. Contiguous 8th and 9th floors available. 8th floor features six windowed offices, conference room, reception, huddle room and some open area.
- Loyer annoncé plus part proportionnelle des coûts de la consommation électrique
- 6 bureaux privés
- Peut être associé à un ou plusieurs espaces supplémentaires pour obtenir jusqu’à 494 m² d’espace adjacent.
- Lumière naturelle
- Convient pour 5 à 25 personnes
- Salles de conférence
- Aire de réception
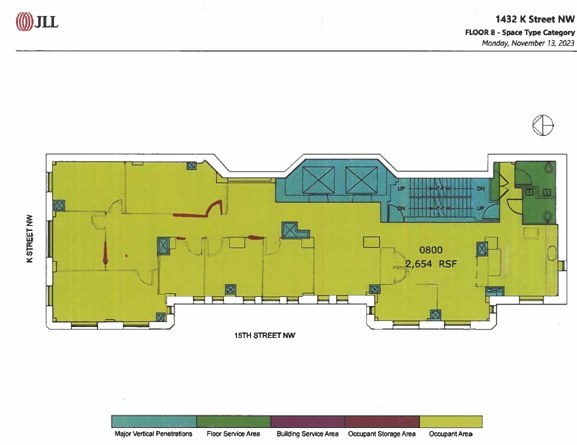
Incredible full floor opportunity for small tenants with amazing park views and natural light. Contiguous 8th and 9th floors available.
- Loyer annoncé plus part proportionnelle des coûts de la consommation électrique
- Convient pour 7 à 22 personnes
- Lumière naturelle
- Entièrement aménagé comme Bureau standard
- Peut être associé à un ou plusieurs espaces supplémentaires pour obtenir jusqu’à 494 m² d’espace adjacent.
- Vue imprenable sur le parc.
| Espace | Surface | Durée | Loyer | Type de bien | Aménagement | Disponible |
| 6e étage, bureau 600 | 245 m² | Négociable | 377,71 € /m²/an 31,48 € /m²/mois 92 534 € /an 7 711 € /mois | Bureau | - | Maintenant |
| 8e étage, bureau 800 | 247 m² | Négociable | 377,71 € /m²/an 31,48 € /m²/mois 93 131 € /an 7 761 € /mois | Bureau | Construction achevée | Maintenant |
| 9e étage, bureau 900 | 247 m² | 2-10 Ans | 377,71 € /m²/an 31,48 € /m²/mois 93 411 € /an 7 784 € /mois | Bureau | Construction achevée | Maintenant |
6e étage, bureau 600
| Surface |
| 245 m² |
| Durée |
| Négociable |
| Loyer |
| 377,71 € /m²/an 31,48 € /m²/mois 92 534 € /an 7 711 € /mois |
| Type de bien |
| Bureau |
| Aménagement |
| - |
| Disponible |
| Maintenant |
8e étage, bureau 800
| Surface |
| 247 m² |
| Durée |
| Négociable |
| Loyer |
| 377,71 € /m²/an 31,48 € /m²/mois 93 131 € /an 7 761 € /mois |
| Type de bien |
| Bureau |
| Aménagement |
| Construction achevée |
| Disponible |
| Maintenant |
9e étage, bureau 900
| Surface |
| 247 m² |
| Durée |
| 2-10 Ans |
| Loyer |
| 377,71 € /m²/an 31,48 € /m²/mois 93 411 € /an 7 784 € /mois |
| Type de bien |
| Bureau |
| Aménagement |
| Construction achevée |
| Disponible |
| Maintenant |
6e étage, bureau 600
| Surface | 245 m² |
| Durée | Négociable |
| Loyer | 377,71 € /m²/an |
| Type de bien | Bureau |
| Aménagement | - |
| Disponible | Maintenant |
Office intensive space, incredible park views.
- Loyer annoncé plus part proportionnelle des coûts de la consommation électrique
- Convient pour 7 à 22 personnes
- 9 bureaux privés
- 1 salle de conférence
8e étage, bureau 800
| Surface | 247 m² |
| Durée | Négociable |
| Loyer | 377,71 € /m²/an |
| Type de bien | Bureau |
| Aménagement | Construction achevée |
| Disponible | Maintenant |
Incredible full floor opportunity for small tenants with amazing park views and natural light. Contiguous 8th and 9th floors available. 8th floor features six windowed offices, conference room, reception, huddle room and some open area.
- Loyer annoncé plus part proportionnelle des coûts de la consommation électrique
- Convient pour 5 à 25 personnes
- 6 bureaux privés
- Salles de conférence
- Peut être associé à un ou plusieurs espaces supplémentaires pour obtenir jusqu’à 494 m² d’espace adjacent.
- Aire de réception
- Lumière naturelle
9e étage, bureau 900
| Surface | 247 m² |
| Durée | 2-10 Ans |
| Loyer | 377,71 € /m²/an |
| Type de bien | Bureau |
| Aménagement | Construction achevée |
| Disponible | Maintenant |
Incredible full floor opportunity for small tenants with amazing park views and natural light. Contiguous 8th and 9th floors available.
- Loyer annoncé plus part proportionnelle des coûts de la consommation électrique
- Entièrement aménagé comme Bureau standard
- Convient pour 7 à 22 personnes
- Peut être associé à un ou plusieurs espaces supplémentaires pour obtenir jusqu’à 494 m² d’espace adjacent.
- Lumière naturelle
- Vue imprenable sur le parc.
Aperçu du bien
Immeuble de bureaux boutique offrant des étages de 2 700 pieds carrés avec une vue imprenable sur le parc et de la lumière naturelle. Un espace incroyable pour les locataires de taille modeste.
- Accès 24 h/24
- Restaurant
- Système de sécurité
Informations sur l’immeuble
Présenté par
1432 K St NW
Hum, une erreur s’est produite lors de l’envoi de votre message. Veuillez réessayer.
Merci ! Votre message a été envoyé.









