Connectez-vous/S’inscrire
Votre e-mail a été envoyé.
1430 Riverview Rd., Riverton, WY 82501 1430 Riverview Rd Bureau 227 m² Inoccupé À vendre Riverton, WY 82501 299 847 € (1 321,67 €/m²)



Certaines informations ont été traduites automatiquement.
Informations principales sur l'investissement
- 40,511 sq ft lot
- City utilities, natural gas
- Multi-use facility
- Commercial property
- Impeccable maintenance
Résumé analytique
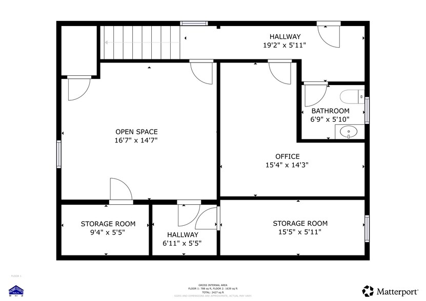
Don't miss the opportunity to own a quality commercial building that has use for office, medical, childcare facility, church and/or residential (single or multifamily) in a prime development area of Riverton, WY. This property has a rare-find location, positioned with superior visibility and reliable access in the front, a calming mountain view and appealing rural setting off the back. The nearly 1-acre site (40,511 sq ft) provides room for the 2,442 sq ft building plus a generously sized maintained lot that accommodates parked vehicles, with room to expand, build a shop and park equipment. The inside of the building has an attractive and inviting open area, office, kitchen and bathroom. The walkout basement offers two additional offices, a mechanical room and a second bathroom. The open floor plan with simple access to plumbing and the heat system make this property versatile to be used in many ways. Pride of ownership shines through with impeccable maintenance and attention to detail in building upgrades and care, including renovations that are quality in craftsmanship, handicap accessible entrance, comfortable and efficient with updated central heat and air. Abundant natural light pours in through the south-facing windows, illuminating a bright space with cathedral ceilings, and providing a welcoming work space. The existing individual offices are confidential and professional, with room to expand additional offices, reception and conference room. The exterior has a beautiful appeal with log construction, covered porch and wraparound deck. The location provides the best of both worlds, located in the county there are few restrictions with ability to use the property for residential, multi-family and/or commercial opportunities, and the property is conveniently serviced with city water/sewer/trash, natural gas and Rocky Mountain Power. Quality construction with high-visibility, reliable street frontage, adequate parking and a prime, appreciable location for both business and residential development makes this a great place to invest in and grow your business and/or real estate portfolio.
Informations sur l’immeuble
Type de vente
Investissement ou propriétaire occupant
Type de bien
Bureau
Sous-type de bien
Surface de l’immeuble
227 m²
Classe d’immeuble
C
Année de construction
1977
Prix
299 847 €
Prix par m²
1 321,67 €
Pourcentage loué
Inoccupé
Hauteur du bâtiment
2 étages
Surface type par étage
113 m²
Coefficient d’occupation des sols de l’immeuble
0,06
Surface du lot
0,38 ha
Zonage
Other - Other/County
Caractéristiques
- Accès 24 h/24
- Terrain clôturé
Fairly walkable
40/100
Exceptionally drivable
90/100
Fairly bikeable
40/100
Taxes foncières
| Numéro de parcelle | 9114-33-1-00-090.00 | Évaluation des aménagements | 18 754 € |
| Évaluation du terrain | 4 796 € | Évaluation totale | 23 550 € |
Taxes foncières
Numéro de parcelle
9114-33-1-00-090.00
Évaluation du terrain
4 796 €
Évaluation des aménagements
18 754 €
Évaluation totale
23 550 €
1 sur 52
Vidéos
Visite extérieure 3D Matterport
Visite 3D
Photos
Street view
Rue
Carte
1 sur 1
Présenté par
1430 Riverview Rd., Riverton, WY 82501 | 1430 Riverview Rd
Vous êtes déjà membre ? Connectez-vous
Hum, une erreur s’est produite lors de l’envoi de votre message. Veuillez réessayer.
Merci ! Votre message a été envoyé.

