Votre e-mail a été envoyé.
Certaines informations ont été traduites automatiquement.
Informations principales
- Prestige historique de Georgetown
- Environnement de vente au détail polyvalent
- Ancien commandant Salamander (lieu emblématique)
- L'héritage de l'innovation du commerce de détail
- Exposition exceptionnelle
Disponibilité de l’espace (1)
Afficher le tarif en
- Espace
- Surface
- Plafond
- Durée
- Loyer
- Type de loyer
| Espace | Surface | Plafond | Durée | Loyer | Type de loyer | |
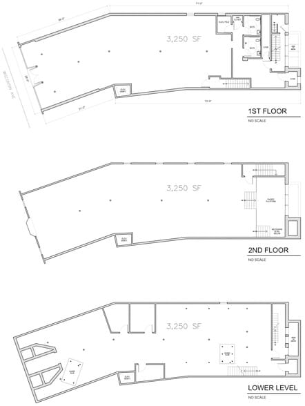
| Sous-sol | 260 m² | 2,44 mètres - 3,35 mètres | 5-10 Ans | Sur demande Sur demande Sur demande Sur demande | À déterminer |
Sous-sol
Entrance to be created through the front on Wisconsin Ave. Space is at grade on the side and has large windows for natural light. Joe and The Juice has leased the first floor.
- Plafonds finis: 2,44 mètres - 3,35 mètres
Types de loyers
Le montant et le type de loyer que l’occupant (locataire) est tenu de payer au propriétaire (bailleur) sur la durée du bail sont négociés avant la signature du bail par les deux parties. Le type de loyer varie selon les services fournis. Par exemple, le prix d’un loyer triple net est habituellement inférieur à celui d’un bail à service complet puisque l’occupant est tenu d’assumer des dépenses supplémentaires par rapport au loyer de base. Contacter le broker chargé de l’annonce pour bien comprendre les coûts associés ou les dépenses supplémentaires pour chaque type de loyer.
1. Service complet: Un loyer qui comprend des services d’immeuble standards normaux fournis par le propriétaire dans le cadre d’une location annuelle de base.
2. Double net (NN): L’occupant paie seulement deux des frais de l’immeuble. Le propriétaire et l’occupant déterminent ces frais spécifiques avant la signature du bail.
3. Triple net (NNN): Un bail selon lequel l’occupant est responsable de tous les frais liés à sa part proportionnelle d’occupation de l’immeuble.
4. Brut modifié: Le brut modifié est un type général de bail dans lequel l’occupant est en général responsable de sa part proportionnelle d’une ou de plusieurs dépenses. C’est le propriétaire qui paie les frais restants. Consultez la liste ci-dessous pour connaître les structures de loyers bruts modifiés les plus courantes : 4. Plus services publics: Un type de bail brut modifié, où l’occupant est responsable à hauteur de sa part proportionnelle des services publics en plus du loyer. 4. Plus nettoyage: Un type de bail brut modifié, où l’occupant est responsable à hauteur de sa part proportionnelle du nettoyage en plus du loyer. 4. Plus électricité: Un type de bail brut modifié, où l’occupant est responsable à hauteur de sa part proportionnelle du coût de la consommation électrique en plus du loyer. 4. Plus électricité et nettoyage: Un type de bail brut modifié, où l’occupant est responsable à hauteur de sa part proportionnelle du coût de la consommation électrique et du nettoyage en plus du loyer. 4. Plus services publics et charges: Un type de bail brut modifié où l’occupant est responsable à hauteur de sa part proportionnelle des services publics et du coût de nettoyage en plus du loyer. 4. Bail industriel brut: Un type de bail brut modifié dans lequel l’occupant paie un ou plusieurs des frais en plus du loyer. Le propriétaire et l’occupant déterminent ces frais spécifiques avant la signature du bail.
5. Électricité à la charge de l’occupant: Le propriétaire paie pour tous les services et l’occupant est responsable de sa propre utilisation de l’éclairage et des prises électriques dans l’espace qu’il occupe.
6. Négociable ou sur demande: Cette option est utilisée lorsque le contact de location n’indique pas le type de loyer ou de service.
7. À déterminer: À déterminer : utilisé pour les immeubles dont le type de services ou de loyer n’est pas connu, souvent quand l’immeuble n’est pas encore construit.
Informations sur l’immeuble
| Espace total disponible | 260 m² | Surface commerciale utile | 906 m² |
| Type de bien | Local commercial | Année de construction | 1900 |
| Sous-type de bien | Bien à usage mixte |
| Espace total disponible | 260 m² |
| Type de bien | Local commercial |
| Sous-type de bien | Bien à usage mixte |
| Surface commerciale utile | 906 m² |
| Année de construction | 1900 |
À propos du bien
Situé au cœur de Georgetown, l'un des quartiers les plus animés et historiques de Washington, cet espace commercial situé au 1420 Wisconsin Ave NW offre une opportunité sans précédent aux entreprises qui souhaitent se démarquer dans un lieu prestigieux. Cette adresse emblématique, qui abritait autrefois le légendaire Commandant Salamander, offre un mélange unique d'importance historique et de potentiel commercial moderne. Total de 9 750 pieds carrés sur 3 étages. Le sous-sol (avec fenêtres) a été récemment creusé pour élever le plafond à 9 pieds. Le locataire idéal loue les 3 étages, mais le propriétaire est prêt à séparer les étages pour des utilisations variées, y compris le restaurant et la salle de sport.
Principaux commerces à proximité
Présenté par
1420 Wisconsin Ave NW
Hum, une erreur s’est produite lors de l’envoi de votre message. Veuillez réessayer.
Merci ! Votre message a été envoyé.



