Votre e-mail a été envoyé.
Certaines informations ont été traduites automatiquement.
Informations principales
- À distance de marche de plusieurs restaurants, hôtels et de la station de métro McPherson Square
- Pratiquement sans colonnes, mélange de bureaux à étage complet et à étage partiel
- Vue sur le parc Franklin et balcons privés pour les locataires de l'étage entier ou de la façade de l'immeuble
Tous les espaces disponibles(8)
Afficher les loyers en
- Espace
- Surface
- Durée
- Loyer
- Type de bien
- Aménagement
- Disponible
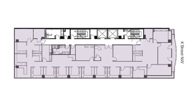
Full floor available.
- Le loyer comprend les services publics, les services de l’immeuble et les frais immobiliers.
- Principalement open space
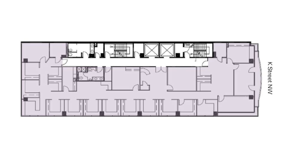
Front-of-building space available immediately with balcony overlooking K Street. Space and common area renovations delivering this spring.
- Le loyer comprend les services publics, les services de l’immeuble et les frais immobiliers.
- Principalement open space
- Entièrement aménagé comme Bureau standard
Space and common area renovations delivering this spring.
- Le loyer comprend les services publics, les services de l’immeuble et les frais immobiliers.
- Principalement open space
- Entièrement aménagé comme Bureau standard
Space and common area renovations delivering this spring.
- Le loyer comprend les services publics, les services de l’immeuble et les frais immobiliers.
Full Floor, excellent light, private balcony, mix of open and office intensive space
- Le loyer comprend les services publics, les services de l’immeuble et les frais immobiliers.
- Principalement open space
- Entièrement aménagé comme Bureau standard
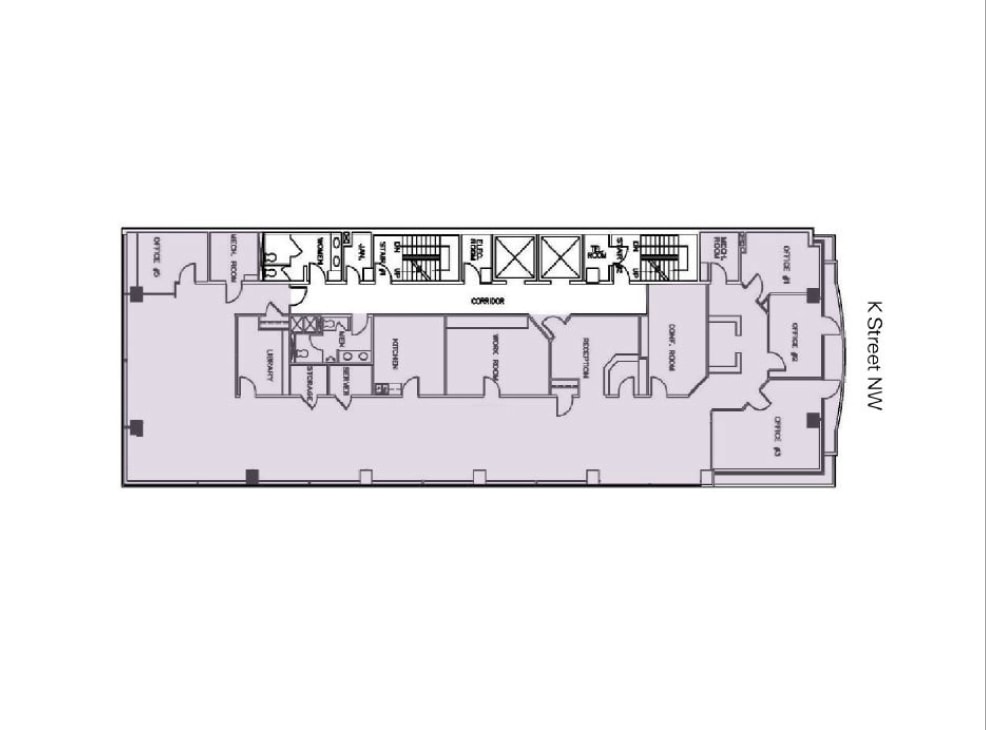
Full floor available immediately, open plan space and a private balcony overlooking K Street with views of Franklin Square Park
- Le loyer comprend les services publics, les services de l’immeuble et les frais immobiliers.
- Principalement open space
- Entièrement aménagé comme Bureau standard
- Peut être associé à un ou plusieurs espaces supplémentaires pour obtenir jusqu’à 736 m² d’espace adjacent.
Space available immediately featuring excellent natural light and views of Franklin Square Park. Space and common area renovations delivering this spring.
- Le loyer comprend les services publics, les services de l’immeuble et les frais immobiliers.
- Principalement open space
- Entièrement aménagé comme Bureau standard
- Peut être associé à un ou plusieurs espaces supplémentaires pour obtenir jusqu’à 736 m² d’espace adjacent.
Front of building, overlooking K Street. Private balcony. Space and common area renovations delivering this spring.
- Le loyer comprend les services publics, les services de l’immeuble et les frais immobiliers.
- Principalement open space
- Entièrement aménagé comme Bureau standard
| Espace | Surface | Durée | Loyer | Type de bien | Aménagement | Disponible |
| 2e étage, bureau 200 | 452 m² | Négociable | 348,86 € /m²/an 29,07 € /m²/mois 157 514 € /an 13 126 € /mois | Bureau | - | Maintenant |
| 3e étage, bureau 300 | 165 m² | 1-15 Ans | 348,86 € /m²/an 29,07 € /m²/mois 57 431 € /an 4 786 € /mois | Bureau | Construction achevée | Maintenant |
| 3e étage, bureau 320 | 170 m² | 1-15 Ans | 348,86 € /m²/an 29,07 € /m²/mois 59 246 € /an 4 937 € /mois | Bureau | Construction achevée | Maintenant |
| 3e étage, bureau 350 | 150 m² | Négociable | 348,86 € /m²/an 29,07 € /m²/mois 52 472 € /an 4 373 € /mois | Bureau | - | Maintenant |
| 4e étage, bureau 400 | 471 m² | Négociable | 348,86 € /m²/an 29,07 € /m²/mois 164 287 € /an 13 691 € /mois | Bureau | Construction achevée | Maintenant |
| 5e étage, bureau 500 | 471 m² | 1-15 Ans | 348,86 € /m²/an 29,07 € /m²/mois 164 287 € /an 13 691 € /mois | Bureau | Construction achevée | Maintenant |
| 6e étage, bureau 650 | 265 m² | 1-15 Ans | 348,86 € /m²/an 29,07 € /m²/mois 92 499 € /an 7 708 € /mois | Bureau | Construction achevée | Maintenant |
| 9e étage, bureau 900 | 238 m² | Négociable | 348,86 € /m²/an 29,07 € /m²/mois 83 003 € /an 6 917 € /mois | Bureau | Construction achevée | Maintenant |
2e étage, bureau 200
| Surface |
| 452 m² |
| Durée |
| Négociable |
| Loyer |
| 348,86 € /m²/an 29,07 € /m²/mois 157 514 € /an 13 126 € /mois |
| Type de bien |
| Bureau |
| Aménagement |
| - |
| Disponible |
| Maintenant |
3e étage, bureau 300
| Surface |
| 165 m² |
| Durée |
| 1-15 Ans |
| Loyer |
| 348,86 € /m²/an 29,07 € /m²/mois 57 431 € /an 4 786 € /mois |
| Type de bien |
| Bureau |
| Aménagement |
| Construction achevée |
| Disponible |
| Maintenant |
3e étage, bureau 320
| Surface |
| 170 m² |
| Durée |
| 1-15 Ans |
| Loyer |
| 348,86 € /m²/an 29,07 € /m²/mois 59 246 € /an 4 937 € /mois |
| Type de bien |
| Bureau |
| Aménagement |
| Construction achevée |
| Disponible |
| Maintenant |
3e étage, bureau 350
| Surface |
| 150 m² |
| Durée |
| Négociable |
| Loyer |
| 348,86 € /m²/an 29,07 € /m²/mois 52 472 € /an 4 373 € /mois |
| Type de bien |
| Bureau |
| Aménagement |
| - |
| Disponible |
| Maintenant |
4e étage, bureau 400
| Surface |
| 471 m² |
| Durée |
| Négociable |
| Loyer |
| 348,86 € /m²/an 29,07 € /m²/mois 164 287 € /an 13 691 € /mois |
| Type de bien |
| Bureau |
| Aménagement |
| Construction achevée |
| Disponible |
| Maintenant |
5e étage, bureau 500
| Surface |
| 471 m² |
| Durée |
| 1-15 Ans |
| Loyer |
| 348,86 € /m²/an 29,07 € /m²/mois 164 287 € /an 13 691 € /mois |
| Type de bien |
| Bureau |
| Aménagement |
| Construction achevée |
| Disponible |
| Maintenant |
6e étage, bureau 650
| Surface |
| 265 m² |
| Durée |
| 1-15 Ans |
| Loyer |
| 348,86 € /m²/an 29,07 € /m²/mois 92 499 € /an 7 708 € /mois |
| Type de bien |
| Bureau |
| Aménagement |
| Construction achevée |
| Disponible |
| Maintenant |
9e étage, bureau 900
| Surface |
| 238 m² |
| Durée |
| Négociable |
| Loyer |
| 348,86 € /m²/an 29,07 € /m²/mois 83 003 € /an 6 917 € /mois |
| Type de bien |
| Bureau |
| Aménagement |
| Construction achevée |
| Disponible |
| Maintenant |
2e étage, bureau 200
| Surface | 452 m² |
| Durée | Négociable |
| Loyer | 348,86 € /m²/an |
| Type de bien | Bureau |
| Aménagement | - |
| Disponible | Maintenant |
Full floor available.
- Le loyer comprend les services publics, les services de l’immeuble et les frais immobiliers.
- Principalement open space
3e étage, bureau 300
| Surface | 165 m² |
| Durée | 1-15 Ans |
| Loyer | 348,86 € /m²/an |
| Type de bien | Bureau |
| Aménagement | Construction achevée |
| Disponible | Maintenant |
Front-of-building space available immediately with balcony overlooking K Street. Space and common area renovations delivering this spring.
- Le loyer comprend les services publics, les services de l’immeuble et les frais immobiliers.
- Entièrement aménagé comme Bureau standard
- Principalement open space
3e étage, bureau 320
| Surface | 170 m² |
| Durée | 1-15 Ans |
| Loyer | 348,86 € /m²/an |
| Type de bien | Bureau |
| Aménagement | Construction achevée |
| Disponible | Maintenant |
Space and common area renovations delivering this spring.
- Le loyer comprend les services publics, les services de l’immeuble et les frais immobiliers.
- Entièrement aménagé comme Bureau standard
- Principalement open space
3e étage, bureau 350
| Surface | 150 m² |
| Durée | Négociable |
| Loyer | 348,86 € /m²/an |
| Type de bien | Bureau |
| Aménagement | - |
| Disponible | Maintenant |
Space and common area renovations delivering this spring.
- Le loyer comprend les services publics, les services de l’immeuble et les frais immobiliers.
4e étage, bureau 400
| Surface | 471 m² |
| Durée | Négociable |
| Loyer | 348,86 € /m²/an |
| Type de bien | Bureau |
| Aménagement | Construction achevée |
| Disponible | Maintenant |
Full Floor, excellent light, private balcony, mix of open and office intensive space
- Le loyer comprend les services publics, les services de l’immeuble et les frais immobiliers.
- Entièrement aménagé comme Bureau standard
- Principalement open space
5e étage, bureau 500
| Surface | 471 m² |
| Durée | 1-15 Ans |
| Loyer | 348,86 € /m²/an |
| Type de bien | Bureau |
| Aménagement | Construction achevée |
| Disponible | Maintenant |
Full floor available immediately, open plan space and a private balcony overlooking K Street with views of Franklin Square Park
- Le loyer comprend les services publics, les services de l’immeuble et les frais immobiliers.
- Entièrement aménagé comme Bureau standard
- Principalement open space
- Peut être associé à un ou plusieurs espaces supplémentaires pour obtenir jusqu’à 736 m² d’espace adjacent.
6e étage, bureau 650
| Surface | 265 m² |
| Durée | 1-15 Ans |
| Loyer | 348,86 € /m²/an |
| Type de bien | Bureau |
| Aménagement | Construction achevée |
| Disponible | Maintenant |
Space available immediately featuring excellent natural light and views of Franklin Square Park. Space and common area renovations delivering this spring.
- Le loyer comprend les services publics, les services de l’immeuble et les frais immobiliers.
- Entièrement aménagé comme Bureau standard
- Principalement open space
- Peut être associé à un ou plusieurs espaces supplémentaires pour obtenir jusqu’à 736 m² d’espace adjacent.
9e étage, bureau 900
| Surface | 238 m² |
| Durée | Négociable |
| Loyer | 348,86 € /m²/an |
| Type de bien | Bureau |
| Aménagement | Construction achevée |
| Disponible | Maintenant |
Front of building, overlooking K Street. Private balcony. Space and common area renovations delivering this spring.
- Le loyer comprend les services publics, les services de l’immeuble et les frais immobiliers.
- Entièrement aménagé comme Bureau standard
- Principalement open space
Caractéristiques
- Restaurant
- Chauffage central
- Climatisation
- Balcon
Informations sur l’immeuble
Présenté par
1420 K St NW
Hum, une erreur s’est produite lors de l’envoi de votre message. Veuillez réessayer.
Merci ! Votre message a été envoyé.

















