Votre e-mail a été envoyé.
Certaines informations ont été traduites automatiquement.
Informations principales sur le parc
- Brooklyn Navy Yard est un parc industriel axé sur une mission qui sert de centre de fabrication et d'innovation le long du front de mer de Brooklyn.
- Les entreprises de The Yard sont éligibles à de nombreuses incitations au développement économique, telles que des crédits d'impôt et des économies potentielles sur les coûts énergétiques.
- Rejoignez une communauté diversifiée et dynamique avec une solide liste de plus de 450 entreprises, plus de 11 000 employés et des équipements de premier ordre.
- Accédez facilement au développement de 300 acres via le ferry fluvial de New York et quatre entrées sécurisées pour les voitures, les camions, les vélos et les piétons.
Faits sur le parc
Caractéristiques
- Accès 24 h/24
- Ligne d’autobus
- Trains de banlieue
- Cour
- Terrain clôturé
- Food court
- Métro
- Property Manager sur place
- Bord de l’eau
Tous les espaces disponibles(25)
Afficher les loyers en
- Espace
- Surface
- Durée
- Loyer
- Type de bien
- Aménagement
- Disponible
Unit Highlights • 27' slab-to-slab ceiling height • 400 amps, 120/208v, 3phase • Drive-in bay gate 18' H x 19' W • Loading dock gate 14' H x 12' W • Plumbing lines available • Massive windows
- 1 accès plain-pied
- Lumière naturelle
- 1 quai de chargement
| Espace | Surface | Durée | Loyer | Type de bien | Aménagement | Disponible |
| 1er étage – 102 | 892 m² | Négociable | Sur demande Sur demande Sur demande Sur demande | Industriel/Logistique | Construction achevée | Maintenant |
Brooklyn Navy Yard - Building 5 - 1er étage – 102
- Espace
- Surface
- Durée
- Loyer
- Type de bien
- Aménagement
- Disponible
Unit Highlights • Built office space • Private restroom • Offices, small conference room, and reception area • Ample closets and storage • Convenient first floor location • 60 Amps, 3 Phase
- Entièrement aménagé comme Bureau standard
- 1 salle de conférence
- Climatisation centrale
- Plan d’étage avec bureaux fermés
- Espace en excellent état
- Toilettes privées
| Espace | Surface | Durée | Loyer | Type de bien | Aménagement | Disponible |
| 1er étage, bureau 103 | 134 m² | Négociable | Sur demande Sur demande Sur demande Sur demande | Bureau | Construction achevée | Maintenant |
Brooklyn Navy Yard - Building 27 - 1er étage – Bureau 103
- Espace
- Surface
- Durée
- Loyer
- Type de bien
- Aménagement
- Disponible
Unit Highlights • Ground floor food hall • Industrial kitchen appliances • Gas stove • 5 industrial sinks • Walk-in fridge • Storage area • Private bathroom • Slab to slab height 12" • 200 Amps 277/480v 3 phase • HVAC • Distributed electric
- Il est possible que le loyer annoncé ne comprenne pas certains services publics, services d’immeuble et frais immobiliers.
- Situé dans une food court
- Climatisation centrale
- Entièrement aménagé comme un restaurant à service rapide
- Espace en excellent état
- Convient pour 3 à 8 personnes
Unit Highlights • Waterfront / Manhattan skyline views • New HVAC • Live load: 300 lbs / SF • Direct access to freight elevator across hall
Unit Highlights • New construction • 175 amps 120/208v 3 phase • Liveload250 lbs/SF • Easy access to freight elevator • Build-out offices • Kitchenette • Distributed electric Available Immediately. THE BNY DIFFERENCE • A 300-acre manufacturing, tech, and creative hub • Future-focused business ecosystem • Business & workforce development services • Ardent supporter of MWBE businesses • Economic development incentives YARD AMENITIES • Robust event & exhibition programming • Extensive B2B networking opportunities • Space rentable for conferences and pop-ups • Wegmans, a food hall, a brewery, and a distillery • On-site parking for employees and guests • EV charging stations • A brand-new City MD Urgent Care GE TTING HERE • Best-in-class shuttle to/from BK mass transit hubs, serving 13 subway lines • Near FiDi, DUMBO, Williamsburg, Fort Greene, and Clinton Hill • NYC Waterway Ferry stop on-site • Four secure Yard entrances for cars, trucks, bicycles, and pedestrians • Multiple Citibike stations in and around the Yard
Unit Highlights • L-shaped space • Built out workspace areas • 125 A, 3ph,120/208 V • Distributed AC; 10-ton DX unit • Easy access to freight elevator
- Plafonds finis: 3,05 mètres
- Climatisation centrale
Unit Highlights • 125 Amp, 208 V, 3phase • HVAC • Easy access to freight elevator • Distributed Electric
- Principalement open space
Unit Highlights •Efficient L-shaped space •Water/sewer lines •Distributed electric •Located near freight elevator •125 Amps, 3 Phase •HVAC •Great natural light
- Principalement open space
- Lumière naturelle
- Climatisation centrale
| Espace | Surface | Durée | Loyer | Type de bien | Aménagement | Disponible |
| 1er étage, bureau 108 | 119 m² | Négociable | Sur demande Sur demande Sur demande Sur demande | Local commercial | Construction achevée | Maintenant |
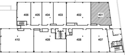
| 4e étage – 402 | 770 m² | Négociable | Sur demande Sur demande Sur demande Sur demande | Local d’activités | Construction partielle | Maintenant |
| 5e étage, bureau 506 | 509 m² | Négociable | Sur demande Sur demande Sur demande Sur demande | Bureau | Construction achevée | Maintenant |
| 6e étage, bureau 603 | 368 m² | Négociable | Sur demande Sur demande Sur demande Sur demande | Bureau | Construction achevée | Maintenant |
| 6e étage, bureau 607 | 273 m² | Négociable | Sur demande Sur demande Sur demande Sur demande | Bureau | Espace brut | Maintenant |
| 7e étage, bureau 703 | 368 m² | Négociable | Sur demande Sur demande Sur demande Sur demande | Bureau | Espace brut | Maintenant |
Brooklyn Navy Yard - Building 77 - 1er étage – Bureau 108
Brooklyn Navy Yard - Building 77 - 4e étage – 402
Brooklyn Navy Yard - Building 77 - 5e étage – Bureau 506
Brooklyn Navy Yard - Building 77 - 6e étage – Bureau 603
Brooklyn Navy Yard - Building 77 - 6e étage – Bureau 607
Brooklyn Navy Yard - Building 77 - 7e étage – Bureau 703
- Espace
- Surface
- Durée
- Loyer
- Type de bien
- Aménagement
- Disponible
55,000 SF available Q1, 2027. THE BNY DIFFERENCE • A 300-acre manufacturing, tech, and creative hub • Future-focused business ecosystem • Business & workforce development services • Ardent supporter of MWBE businesses • Economic development incentives YARD AMENITIES • Robust event & exhibition programming • Extensive B2B networking opportunities • Space rentable for conferences and pop-ups • Wegmans, a food hall, a brewery, and a distillery • On-site parking for employees and guests • EV charging stations • A brand-new City MD Urgent Care GE TTING HERE • Best-in-class shuttle to/from BK mass transit hubs, serving 13 subway lines • Near FiDi, DUMBO, Williamsburg, Fort Greene, and Clinton Hill • NYC Waterway Ferry stop on-site • Four secure Yard entrances for cars, trucks, bicycles, and pedestrians • Multiple Citibike stations in and around the Yard
| Espace | Surface | Durée | Loyer | Type de bien | Aménagement | Disponible |
| 1er étage – Entire | 5 110 m² | Négociable | Sur demande Sur demande Sur demande Sur demande | Industriel/Logistique | - | 01/01/2027 |
Brooklyn Navy Yard - Building 12 - 1er étage – Entire
- Espace
- Surface
- Durée
- Loyer
- Type de bien
- Aménagement
- Disponible
Unit Highlights • New construction • Natural light • Soaring 15' ceiling • 100 amps 120/208v 3 phase • Distributed electrical and HVAC
Unit Highlights • New construction • River and city views • Soaring 15' ceiling • 100 amps 120/208v 3 phase • Distributed electrical and HVAC • Kitchenette
- Disposition open space
- Cuisine
- Climatisation centrale
- Lumière naturelle
Unit Highlights • New construction • Great Natural Light • Soaring 15' ceiling • 100 amps 120/208v 3 phase • Built-out offices • Distributed electrical and HVAC
- Entièrement aménagé comme Bureau standard
- Climatisation centrale
- Lumière naturelle
- Disposition open space
- Hauts plafonds
Unit Highlights • Gorgeous turn-key office • Soaring 16' ceiling • Offices, conference room, reception, and storage areas • Kitchenette with sink • Distributed electric and HVAC • 200 Amps, 3 Phase
- Entièrement aménagé comme Bureau standard
| Espace | Surface | Durée | Loyer | Type de bien | Aménagement | Disponible |
| 2e étage – 208 | 358 m² | Négociable | Sur demande Sur demande Sur demande Sur demande | Local d’activités | - | 01/05/2026 |
| 4e étage, bureau 401 | 302 m² | Négociable | Sur demande Sur demande Sur demande Sur demande | Bureau | Espace brut | Maintenant |
| 4e étage, bureau 402 | 372 m² | Négociable | Sur demande Sur demande Sur demande Sur demande | Bureau | Construction achevée | Maintenant |
| 5e étage, bureau 507 & 508 | 683 m² | Négociable | Sur demande Sur demande Sur demande Sur demande | Bureau | Construction achevée | Maintenant |
Brooklyn Navy Yard - Building 212 - 2e étage – 208
Brooklyn Navy Yard - Building 212 - 4e étage – Bureau 401
Brooklyn Navy Yard - Building 212 - 4e étage – Bureau 402
Brooklyn Navy Yard - Building 212 - 5e étage – Bureau 507 & 508
- Espace
- Surface
- Durée
- Loyer
- Type de bien
- Aménagement
- Disponible
Unit Highlights • Private restroom in suite • 60 amps, 120/208V, single phase • Small enclosed kitchen • Three separated area • Ample closets and storage • Lots of windows and natural light
- Entièrement aménagé comme Bureau standard
- Toilettes privées
- Disposition open space
| Espace | Surface | Durée | Loyer | Type de bien | Aménagement | Disponible |
| 2e étage, bureau 2A | 89 m² | Négociable | Sur demande Sur demande Sur demande Sur demande | Bureau | Construction achevée | Maintenant |
Brooklyn Navy Yard - Building 58 - 2e étage – Bureau 2A
- Espace
- Surface
- Durée
- Loyer
- Type de bien
- Aménagement
- Disponible
Unit Highlights • New white box renovation • 40' ceiling; 20' to truss • 800 A, 120/208 V, 3-Ph • New chilled water HVAC, air handlers, and MER w/ dedicated power supply • Finned tube hot water radiant heat • New oversized operable windows • Modern bathrooms • New elevator w/ in-suite access • Live load: 150 psf
- Il est possible que le loyer annoncé ne comprenne pas certains services publics, services d’immeuble et frais immobiliers.
- Climatisation centrale
- Perfectly suited for office/gallery/showroom uses
- Plafonds finis: 12,19 mètres
- Contigu et aligné avec d’autres locaux commerciaux
| Espace | Surface | Durée | Loyer | Type de bien | Aménagement | Disponible |
| 3e étage, bureau 301 | 1 291 m² | Négociable | Sur demande Sur demande Sur demande Sur demande | Bureau | Construction achevée | Maintenant |
Brooklyn Navy Yard - Building 127 - 3e étage – Bureau 301
- Espace
- Surface
- Durée
- Loyer
- Type de bien
- Aménagement
- Disponible
Unit Highlights • Built out offices, bathroom • Distributed electric • 100 amp; 208v, 3phase • Kichenette • 11ft ceiling • Next to freight and passenger elevators • Great light and views • Live load: 150 lbs/SF
- Convient pour 7 à 22 personnes
Unit Highlights • Live Load: 150 lbs/SF • Plumbing installed: Multi station lab sink • Distributed electric • 200 amps, 208 V, 3 phase • Private restroom • Two separate entrances
- Plafonds finis: 4,27 mètres
Unit Highlights • Private bathroom • Kitchenette • 14 ft ceilings • Distributed electric • Live load: 150lbs/SF • 200 amps, 208 V, 3 phase
- Convient pour 10 à 32 personnes
| Espace | Surface | Durée | Loyer | Type de bien | Aménagement | Disponible |
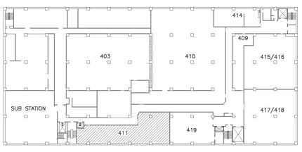
| 4e étage – 411 | 250 m² | Négociable | Sur demande Sur demande Sur demande Sur demande | Local d’activités | Espace brut | Maintenant |
| 8e étage – 814 | 557 m² | Négociable | Sur demande Sur demande Sur demande Sur demande | Industriel/Logistique | Espace brut | Maintenant |
| 8e étage – 819 | 372 m² | Négociable | Sur demande Sur demande Sur demande Sur demande | Industriel/Logistique | Espace brut | Maintenant |
Brooklyn Navy Yard - Building 280 - 4e étage – 411
Brooklyn Navy Yard - Building 280 - 8e étage – 814
Brooklyn Navy Yard - Building 280 - 8e étage – 819
- Espace
- Surface
- Durée
- Loyer
- Type de bien
- Aménagement
- Disponible
Unit Highlights •Private access to two freight elevators • Men’s and Women’s restrooms in suite • Kitchenette • Two separate 100 Amp electric services (240v/3ph, 120v/3ph)
Unit Highlights • Two separate entrances • Built office and storage areas • Distributed electric • Located near passenger elevator • 200 Amps, 3 Phase
- Convient pour 8 à 24 personnes
Unit Highlights • In-unit freight access • Corner unit; windows on two sides • Slab-to-slab height: 10’+ • Live Load 250 lbs / SF • 100AMP, 3 Phase, 208/120V
Unit Highlights • Easy access to freight elevator • 100 amps • Slab-to-slab height: 10’+ • Live Load 250 lbs / SF • Newly white-boxed space
- Convient pour 13 à 42 personnes
Unit Highlights • Distributed electric • 100 Amps, 3 Phase, 120/208V • Located near freight elevator • Live load 250 lbs/SF
| Espace | Surface | Durée | Loyer | Type de bien | Aménagement | Disponible |
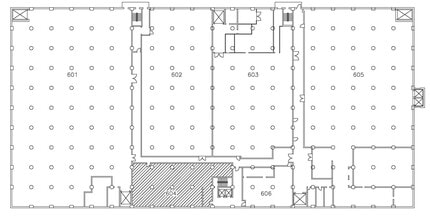
| 6e étage – 601 | 1 746 m² | Négociable | Sur demande Sur demande Sur demande Sur demande | Industriel/Logistique | Construction achevée | Maintenant |
| 6e étage – 604 | 268 m² | Négociable | Sur demande Sur demande Sur demande Sur demande | Local d’activités | Espace brut | Maintenant |
| 6e étage – 605 | 1 521 m² | Négociable | Sur demande Sur demande Sur demande Sur demande | Local d’activités | - | Maintenant |
| 7e étage – 704 | 483 m² | Négociable | Sur demande Sur demande Sur demande Sur demande | Industriel/Logistique | Espace brut | Maintenant |
| 10e étage – 1009 | 316 m² | 3-5 Ans | Sur demande Sur demande Sur demande Sur demande | Local d’activités | - | Maintenant |
Brooklyn Navy Yard - Building 3 - 6e étage – 601
Brooklyn Navy Yard - Building 3 - 6e étage – 604
Brooklyn Navy Yard - Building 3 - 6e étage – 605
Brooklyn Navy Yard - Building 3 - 7e étage – 704
Brooklyn Navy Yard - Building 3 - 10e étage – 1009
- Espace
- Surface
- Durée
- Loyer
- Type de bien
- Aménagement
- Disponible
Unit Highlights • Built out Lab/ Office • Natural light & City views • Slab to slab height 14" • 200 Amps 120/208v 3 phase • Distributed electric • Conference room and offices • Lab area and sinks • Kitchenette
- Espace en excellent état
Unit Highlights • New construction • Full floor divisible • Abundant natural light • Slab-to-slab height: 14'+ • Live load: 125 lbs / SF • Exceptional city and water views • Private bathrooms • Shaft space available for ventilation • 1200 amps, 120/208v, 3 phase
- Laboratoire
- Plafonds finis: 4,27 mètres
| Espace | Surface | Durée | Loyer | Type de bien | Aménagement | Disponible |
| 6e étage, bureau 601 | 427 m² | Négociable | Sur demande Sur demande Sur demande Sur demande | Bureau | Construction achevée | 01/05/2026 |
| 9e étage – Full Floor | 1 115 – 4 645 m² | Négociable | Sur demande Sur demande Sur demande Sur demande | Local d’activités | Construction partielle | Maintenant |
Brooklyn Navy Yard - Building 303 - 6e étage – Bureau 601
Brooklyn Navy Yard - Building 303 - 9e étage – Full Floor
Brooklyn Navy Yard - Building 5 - 1er étage – 102
| Surface | 892 m² |
| Durée | Négociable |
| Loyer | Sur demande |
| Type de bien | Industriel/Logistique |
| Aménagement | Construction achevée |
| Disponible | Maintenant |
Unit Highlights • 27' slab-to-slab ceiling height • 400 amps, 120/208v, 3phase • Drive-in bay gate 18' H x 19' W • Loading dock gate 14' H x 12' W • Plumbing lines available • Massive windows
- 1 accès plain-pied
- 1 quai de chargement
- Lumière naturelle
Brooklyn Navy Yard - Building 27 - 1er étage – Bureau 103
| Surface | 134 m² |
| Durée | Négociable |
| Loyer | Sur demande |
| Type de bien | Bureau |
| Aménagement | Construction achevée |
| Disponible | Maintenant |
Unit Highlights • Built office space • Private restroom • Offices, small conference room, and reception area • Ample closets and storage • Convenient first floor location • 60 Amps, 3 Phase
- Entièrement aménagé comme Bureau standard
- Plan d’étage avec bureaux fermés
- 1 salle de conférence
- Espace en excellent état
- Climatisation centrale
- Toilettes privées
Brooklyn Navy Yard - Building 77 - 1er étage – Bureau 108
| Surface | 119 m² |
| Durée | Négociable |
| Loyer | Sur demande |
| Type de bien | Local commercial |
| Aménagement | Construction achevée |
| Disponible | Maintenant |
Unit Highlights • Ground floor food hall • Industrial kitchen appliances • Gas stove • 5 industrial sinks • Walk-in fridge • Storage area • Private bathroom • Slab to slab height 12" • 200 Amps 277/480v 3 phase • HVAC • Distributed electric
- Il est possible que le loyer annoncé ne comprenne pas certains services publics, services d’immeuble et frais immobiliers.
- Entièrement aménagé comme un restaurant à service rapide
- Situé dans une food court
- Espace en excellent état
- Climatisation centrale
- Convient pour 3 à 8 personnes
Brooklyn Navy Yard - Building 77 - 4e étage – 402
| Surface | 770 m² |
| Durée | Négociable |
| Loyer | Sur demande |
| Type de bien | Local d’activités |
| Aménagement | Construction partielle |
| Disponible | Maintenant |
Unit Highlights • Waterfront / Manhattan skyline views • New HVAC • Live load: 300 lbs / SF • Direct access to freight elevator across hall
Brooklyn Navy Yard - Building 77 - 5e étage – Bureau 506
| Surface | 509 m² |
| Durée | Négociable |
| Loyer | Sur demande |
| Type de bien | Bureau |
| Aménagement | Construction achevée |
| Disponible | Maintenant |
Unit Highlights • New construction • 175 amps 120/208v 3 phase • Liveload250 lbs/SF • Easy access to freight elevator • Build-out offices • Kitchenette • Distributed electric Available Immediately. THE BNY DIFFERENCE • A 300-acre manufacturing, tech, and creative hub • Future-focused business ecosystem • Business & workforce development services • Ardent supporter of MWBE businesses • Economic development incentives YARD AMENITIES • Robust event & exhibition programming • Extensive B2B networking opportunities • Space rentable for conferences and pop-ups • Wegmans, a food hall, a brewery, and a distillery • On-site parking for employees and guests • EV charging stations • A brand-new City MD Urgent Care GE TTING HERE • Best-in-class shuttle to/from BK mass transit hubs, serving 13 subway lines • Near FiDi, DUMBO, Williamsburg, Fort Greene, and Clinton Hill • NYC Waterway Ferry stop on-site • Four secure Yard entrances for cars, trucks, bicycles, and pedestrians • Multiple Citibike stations in and around the Yard
Brooklyn Navy Yard - Building 77 - 6e étage – Bureau 603
| Surface | 368 m² |
| Durée | Négociable |
| Loyer | Sur demande |
| Type de bien | Bureau |
| Aménagement | Construction achevée |
| Disponible | Maintenant |
Unit Highlights • L-shaped space • Built out workspace areas • 125 A, 3ph,120/208 V • Distributed AC; 10-ton DX unit • Easy access to freight elevator
- Plafonds finis: 3,05 mètres
- Climatisation centrale
Brooklyn Navy Yard - Building 77 - 6e étage – Bureau 607
| Surface | 273 m² |
| Durée | Négociable |
| Loyer | Sur demande |
| Type de bien | Bureau |
| Aménagement | Espace brut |
| Disponible | Maintenant |
Unit Highlights • 125 Amp, 208 V, 3phase • HVAC • Easy access to freight elevator • Distributed Electric
- Principalement open space
Brooklyn Navy Yard - Building 77 - 7e étage – Bureau 703
| Surface | 368 m² |
| Durée | Négociable |
| Loyer | Sur demande |
| Type de bien | Bureau |
| Aménagement | Espace brut |
| Disponible | Maintenant |
Unit Highlights •Efficient L-shaped space •Water/sewer lines •Distributed electric •Located near freight elevator •125 Amps, 3 Phase •HVAC •Great natural light
- Principalement open space
- Climatisation centrale
- Lumière naturelle
Brooklyn Navy Yard - Building 12 - 1er étage – Entire
| Surface | 5 110 m² |
| Durée | Négociable |
| Loyer | Sur demande |
| Type de bien | Industriel/Logistique |
| Aménagement | - |
| Disponible | 01/01/2027 |
55,000 SF available Q1, 2027. THE BNY DIFFERENCE • A 300-acre manufacturing, tech, and creative hub • Future-focused business ecosystem • Business & workforce development services • Ardent supporter of MWBE businesses • Economic development incentives YARD AMENITIES • Robust event & exhibition programming • Extensive B2B networking opportunities • Space rentable for conferences and pop-ups • Wegmans, a food hall, a brewery, and a distillery • On-site parking for employees and guests • EV charging stations • A brand-new City MD Urgent Care GE TTING HERE • Best-in-class shuttle to/from BK mass transit hubs, serving 13 subway lines • Near FiDi, DUMBO, Williamsburg, Fort Greene, and Clinton Hill • NYC Waterway Ferry stop on-site • Four secure Yard entrances for cars, trucks, bicycles, and pedestrians • Multiple Citibike stations in and around the Yard
Brooklyn Navy Yard - Building 212 - 2e étage – 208
| Surface | 358 m² |
| Durée | Négociable |
| Loyer | Sur demande |
| Type de bien | Local d’activités |
| Aménagement | - |
| Disponible | 01/05/2026 |
Unit Highlights • New construction • Natural light • Soaring 15' ceiling • 100 amps 120/208v 3 phase • Distributed electrical and HVAC
Brooklyn Navy Yard - Building 212 - 4e étage – Bureau 401
| Surface | 302 m² |
| Durée | Négociable |
| Loyer | Sur demande |
| Type de bien | Bureau |
| Aménagement | Espace brut |
| Disponible | Maintenant |
Unit Highlights • New construction • River and city views • Soaring 15' ceiling • 100 amps 120/208v 3 phase • Distributed electrical and HVAC • Kitchenette
- Disposition open space
- Climatisation centrale
- Cuisine
- Lumière naturelle
Brooklyn Navy Yard - Building 212 - 4e étage – Bureau 402
| Surface | 372 m² |
| Durée | Négociable |
| Loyer | Sur demande |
| Type de bien | Bureau |
| Aménagement | Construction achevée |
| Disponible | Maintenant |
Unit Highlights • New construction • Great Natural Light • Soaring 15' ceiling • 100 amps 120/208v 3 phase • Built-out offices • Distributed electrical and HVAC
- Entièrement aménagé comme Bureau standard
- Disposition open space
- Climatisation centrale
- Hauts plafonds
- Lumière naturelle
Brooklyn Navy Yard - Building 212 - 5e étage – Bureau 507 & 508
| Surface | 683 m² |
| Durée | Négociable |
| Loyer | Sur demande |
| Type de bien | Bureau |
| Aménagement | Construction achevée |
| Disponible | Maintenant |
Unit Highlights • Gorgeous turn-key office • Soaring 16' ceiling • Offices, conference room, reception, and storage areas • Kitchenette with sink • Distributed electric and HVAC • 200 Amps, 3 Phase
- Entièrement aménagé comme Bureau standard
Brooklyn Navy Yard - Building 58 - 2e étage – Bureau 2A
| Surface | 89 m² |
| Durée | Négociable |
| Loyer | Sur demande |
| Type de bien | Bureau |
| Aménagement | Construction achevée |
| Disponible | Maintenant |
Unit Highlights • Private restroom in suite • 60 amps, 120/208V, single phase • Small enclosed kitchen • Three separated area • Ample closets and storage • Lots of windows and natural light
- Entièrement aménagé comme Bureau standard
- Disposition open space
- Toilettes privées
Brooklyn Navy Yard - Building 127 - 3e étage – Bureau 301
| Surface | 1 291 m² |
| Durée | Négociable |
| Loyer | Sur demande |
| Type de bien | Bureau |
| Aménagement | Construction achevée |
| Disponible | Maintenant |
Unit Highlights • New white box renovation • 40' ceiling; 20' to truss • 800 A, 120/208 V, 3-Ph • New chilled water HVAC, air handlers, and MER w/ dedicated power supply • Finned tube hot water radiant heat • New oversized operable windows • Modern bathrooms • New elevator w/ in-suite access • Live load: 150 psf
- Il est possible que le loyer annoncé ne comprenne pas certains services publics, services d’immeuble et frais immobiliers.
- Plafonds finis: 12,19 mètres
- Climatisation centrale
- Contigu et aligné avec d’autres locaux commerciaux
- Perfectly suited for office/gallery/showroom uses
Brooklyn Navy Yard - Building 280 - 4e étage – 411
| Surface | 250 m² |
| Durée | Négociable |
| Loyer | Sur demande |
| Type de bien | Local d’activités |
| Aménagement | Espace brut |
| Disponible | Maintenant |
Unit Highlights • Built out offices, bathroom • Distributed electric • 100 amp; 208v, 3phase • Kichenette • 11ft ceiling • Next to freight and passenger elevators • Great light and views • Live load: 150 lbs/SF
- Convient pour 7 à 22 personnes
Brooklyn Navy Yard - Building 280 - 8e étage – 814
| Surface | 557 m² |
| Durée | Négociable |
| Loyer | Sur demande |
| Type de bien | Industriel/Logistique |
| Aménagement | Espace brut |
| Disponible | Maintenant |
Unit Highlights • Live Load: 150 lbs/SF • Plumbing installed: Multi station lab sink • Distributed electric • 200 amps, 208 V, 3 phase • Private restroom • Two separate entrances
- Plafonds finis: 4,27 mètres
Brooklyn Navy Yard - Building 280 - 8e étage – 819
| Surface | 372 m² |
| Durée | Négociable |
| Loyer | Sur demande |
| Type de bien | Industriel/Logistique |
| Aménagement | Espace brut |
| Disponible | Maintenant |
Unit Highlights • Private bathroom • Kitchenette • 14 ft ceilings • Distributed electric • Live load: 150lbs/SF • 200 amps, 208 V, 3 phase
- Convient pour 10 à 32 personnes
Brooklyn Navy Yard - Building 3 - 6e étage – 601
| Surface | 1 746 m² |
| Durée | Négociable |
| Loyer | Sur demande |
| Type de bien | Industriel/Logistique |
| Aménagement | Construction achevée |
| Disponible | Maintenant |
Unit Highlights •Private access to two freight elevators • Men’s and Women’s restrooms in suite • Kitchenette • Two separate 100 Amp electric services (240v/3ph, 120v/3ph)
Brooklyn Navy Yard - Building 3 - 6e étage – 604
| Surface | 268 m² |
| Durée | Négociable |
| Loyer | Sur demande |
| Type de bien | Local d’activités |
| Aménagement | Espace brut |
| Disponible | Maintenant |
Unit Highlights • Two separate entrances • Built office and storage areas • Distributed electric • Located near passenger elevator • 200 Amps, 3 Phase
- Convient pour 8 à 24 personnes
Brooklyn Navy Yard - Building 3 - 6e étage – 605
| Surface | 1 521 m² |
| Durée | Négociable |
| Loyer | Sur demande |
| Type de bien | Local d’activités |
| Aménagement | - |
| Disponible | Maintenant |
Unit Highlights • In-unit freight access • Corner unit; windows on two sides • Slab-to-slab height: 10’+ • Live Load 250 lbs / SF • 100AMP, 3 Phase, 208/120V
Brooklyn Navy Yard - Building 3 - 7e étage – 704
| Surface | 483 m² |
| Durée | Négociable |
| Loyer | Sur demande |
| Type de bien | Industriel/Logistique |
| Aménagement | Espace brut |
| Disponible | Maintenant |
Unit Highlights • Easy access to freight elevator • 100 amps • Slab-to-slab height: 10’+ • Live Load 250 lbs / SF • Newly white-boxed space
- Convient pour 13 à 42 personnes
Brooklyn Navy Yard - Building 3 - 10e étage – 1009
| Surface | 316 m² |
| Durée | 3-5 Ans |
| Loyer | Sur demande |
| Type de bien | Local d’activités |
| Aménagement | - |
| Disponible | Maintenant |
Unit Highlights • Distributed electric • 100 Amps, 3 Phase, 120/208V • Located near freight elevator • Live load 250 lbs/SF
Brooklyn Navy Yard - Building 303 - 6e étage – Bureau 601
| Surface | 427 m² |
| Durée | Négociable |
| Loyer | Sur demande |
| Type de bien | Bureau |
| Aménagement | Construction achevée |
| Disponible | 01/05/2026 |
Unit Highlights • Built out Lab/ Office • Natural light & City views • Slab to slab height 14" • 200 Amps 120/208v 3 phase • Distributed electric • Conference room and offices • Lab area and sinks • Kitchenette
- Espace en excellent état
Brooklyn Navy Yard - Building 303 - 9e étage – Full Floor
| Surface | 1 115 – 4 645 m² |
| Durée | Négociable |
| Loyer | Sur demande |
| Type de bien | Local d’activités |
| Aménagement | Construction partielle |
| Disponible | Maintenant |
Unit Highlights • New construction • Full floor divisible • Abundant natural light • Slab-to-slab height: 14'+ • Live load: 125 lbs / SF • Exceptional city and water views • Private bathrooms • Shaft space available for ventilation • 1200 amps, 120/208v, 3 phase
- Laboratoire
- Plafonds finis: 4,27 mètres
Visites 3D Matterport
Vue d’ensemble du parc
Le Brooklyn Navy Yard (The Yard) est un centre d'innovation en matière de fabrication et de main-d'œuvre sur 300 acres le long du front de mer de Brooklyn. Ce parc industriel axé sur une mission est un modèle reconnu à l'échelle nationale de viabilité et d'impact positif du développement industriel urbain moderne. The Yard abrite plus de 450 entreprises, emploie plus de 11 000 personnes et génère plus de 2,5 milliards de dollars par an en retombées économiques pour la ville. La location chez The Yard offre de nombreux avantages et commodités, notamment l'accès à une communauté d'affaires diversifiée et dynamique qui offre des opportunités de collaboration, une équipe de gestion immobilière sur place et une équipe de services de soutien aux entreprises pour aider les locataires à se développer et à se développer. Un centre alimentaire public et un centre d'exposition de 60 000 pieds carrés peuvent être utilisés pour des vitrines destinées aux locataires et des opportunités de programmation publique. De plus, les entreprises de The Yard peuvent bénéficier d'incitations au développement économique convaincantes, telles que des avantages fiscaux liés aux zones d'opportunités qualifiées, des exonérations fiscales immobilières, des crédits d'impôt potentiels disponibles dans le cadre du programme d'aide à la relocalisation et à l'emploi (REAP) et des économies d'énergie grâce au programme d'économies d'énergie (ECSP). Situé à proximité de FiDi, DUMBO, Williamsburg, Fort Greene et Clinton Hill, The Yard est plus accessible que jamais. Utilisez une navette haut de gamme pour rejoindre les centres de transport en commun, desservant 13 lignes de métro. Un arrêt de ferry pour la voie navigable de New York se trouve sur place et plusieurs stations Citi Bike se trouvent dans et autour du complexe. Le Yard était autrefois l'installation de construction navale la plus célèbre du pays. Pendant plus de 150 ans, il a construit et lancé les cuirassés les plus célèbres d'Amérique, notamment l'USS Maine, l'USS Arizona et l'USS Missouri. The Yard continue d'honorer et de préserver cette riche histoire grâce à sa programmation publique et à son engagement continu en faveur de la fabrication et de l'innovation.
Brochure du parc
À propos du quartier Brooklyn Nord
La résurgence de la construction de logements, de bureaux et de commerces dans le nord de Brooklyn a transformé les zones industrielles de la région. Avec la conversion du parc industriel ancien à d'autres usages, l'inventaire de l'espace industriel a diminué d'environ 6 millions de pieds carrés au cours des dix dernières années. Ce phénomène s'est produit en particulier le long du front de mer de Williamsburg et de Greenpoint. Par exemple, le Brooklyn Navy Yard, une ancienne usine de construction navale, et la Domino Sugar Factory ont tous deux été convertis en espaces de bureaux à usage mixte. Brooklyn est l'arrondissement le plus peuplé de New York et la zone bénéficie également d'un accès rapide aux aéroports LaGuardia et JFK.
Les occupants industriels sont très variés, comme on peut s'y attendre dans une zone densément peuplée au sein de la plus grande région métropolitaine des États-Unis. L'immobilier industriel a bénéficié de la croissance du commerce électronique et du besoin d'espaces logistiques dans les zones densément peuplées, comme en témoigne la forte présence de FedEx. Netflix est également l'un des plus grands locataires de cette partie de Brooklyn, avec l'ouverture d'installations ici en 2019.
Malgré un emplacement souhaitable et des fondamentaux solides, l'activité de construction neuve a été très faible, principalement en raison de la disponibilité des terrains et de l'activité de conversion susmentionnée.
Données démographiques
Accessibilité régionale
À proximité
Restaurants |
|||
|---|---|---|---|
| Pizza Yard | Pizza | USD | 0 min. à pied |
| Hungry House | Américain | - | 0 min. à pied |
Local commercial |
||
|---|---|---|
| CrossFit | Fitness | 7 min. à pied |
| Chase Bank | Banque | 8 min. à pied |
| Wegmans | Supermarché | 10 min. à pied |
Hôtels |
|
|---|---|
| Marriott |
666 chambres
5 min en voiture
|
| Sheraton Hotel |
321 chambres
5 min en voiture
|
À propos du propriétaire
À propos de l’architecte
Autres biens dans le portefeuille Beyer Blinder Belle
Présenté par
Brooklyn Navy Yard | Brooklyn, NY 11205
Hum, une erreur s’est produite lors de l’envoi de votre message. Veuillez réessayer.
Merci ! Votre message a été envoyé.



































































