Votre e-mail a été envoyé.
Certaines informations ont été traduites automatiquement.
INFORMATIONS PRINCIPALES
- Le 1400 Crystal Dr, Arlington offre un accès immédiat à l'autoroute I-395, à la George Washington Parkway, au Pentagone et à l'aéroport national Reagan
- Les locataires bénéficient d'un centre de remise en forme sur place, d'une spectaculaire terrasse penthouse, d'un centre de conférence, d'un salon, de bornes de recharge pour véhicules électriques et de cages à vélos sécurisées.
- L'établissement est entouré de plus de 100 restaurants, de 4 500 chambres d'hôtel et de nombreux commerces de détail.
TOUS LES ESPACES DISPONIBLES(9)
Afficher les loyers en
- ESPACE
- SURFACE
- DURÉE
- LOYER
- TYPE DE BIEN
- ÉTAT
- DISPONIBLE
Superb views of Washington, DC and the monuments.
- Entièrement aménagé comme Bureau standard
- Convient pour 18 à 58 personnes
- Principalement open space
Corner suite that fronts 1400 Crystal Drive
- Entièrement aménagé comme Bureau standard
- Convient pour 18 à 56 personnes
- Plan d’étage avec bureaux fermés
- Peut être associé à un ou plusieurs espaces supplémentaires pour obtenir jusqu’à 1 457 m² d’espace adjacent.
Superb views of Washington, DC and the monuments
- Entièrement aménagé comme Bureau standard
- Convient pour 10 à 71 personnes
- Plan d’étage avec bureaux fermés
- Peut être associé à un ou plusieurs espaces supplémentaires pour obtenir jusqu’à 1 457 m² d’espace adjacent.
- Entièrement aménagé comme Bureau standard
- Convient pour 17 à 54 personnes
- Principalement open space
This space is available as of May 2026
- Entièrement aménagé comme Bureau standard
- Convient pour 51 à 162 personnes
- Principalement open space
Superb views of Washington, DC and the monuments
- Entièrement aménagé comme Bureau standard
- Convient pour 29 à 91 personnes
- Peut être associé à un ou plusieurs espaces supplémentaires pour obtenir jusqu’à 1 294 m² d’espace adjacent.
- Principalement open space
- Espace en excellent état
Superb views of Washington, DC and the monuments
- Entièrement aménagé comme Bureau standard
- Convient pour 11 à 35 personnes
- Plan d’étage avec bureaux fermés
Superb views of Washington, DC and the monuments
- Entièrement aménagé comme Bureau standard
- Convient pour 7 à 21 personnes
- Plan d’étage avec bureaux fermés
- Peut être associé à un ou plusieurs espaces supplémentaires pour obtenir jusqu’à 1 294 m² d’espace adjacent.
Superb views of Washington, DC and the monuments
- Entièrement aménagé comme Bureau standard
- Convient pour 65 à 208 personnes
- Principalement open space
| Espace | Surface | Durée | Loyer | Type de bien | État | Disponible |
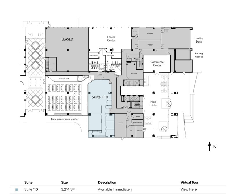
| 1er étage, bureau 110 | 299 m² | Négociable | Sur demande Sur demande Sur demande Sur demande | Bureau | Construction achevée | 30 jours |
| 3e étage, bureau 330 | 641 m² | Négociable | Sur demande Sur demande Sur demande Sur demande | Bureau | Construction achevée | Maintenant |
| 3e étage, bureau 360 | 372 – 816 m² | Négociable | Sur demande Sur demande Sur demande Sur demande | Bureau | Construction achevée | Maintenant |
| 4e étage, bureau 430 | 623 m² | Négociable | Sur demande Sur demande Sur demande Sur demande | Bureau | Construction achevée | 01/08/2026 |
| 5e étage, bureau 500 | 1 874 m² | Négociable | Sur demande Sur demande Sur demande Sur demande | Bureau | Construction achevée | 01/05/2026 |
| 7e étage, bureau 710 | 1 050 m² | Négociable | Sur demande Sur demande Sur demande Sur demande | Bureau | Construction achevée | Maintenant |
| 8e étage, bureau 810 | 402 m² | Négociable | Sur demande Sur demande Sur demande Sur demande | Bureau | Construction achevée | Maintenant |
| 8e étage, bureau 870 | 244 m² | Négociable | Sur demande Sur demande Sur demande Sur demande | Bureau | Construction achevée | Maintenant |
| 14e étage, bureau 1400 | 2 405 m² | Négociable | Sur demande Sur demande Sur demande Sur demande | Bureau | Construction achevée | Maintenant |
1er étage, bureau 110
| Surface |
| 299 m² |
| Durée |
| Négociable |
| Loyer |
| Sur demande Sur demande Sur demande Sur demande |
| Type de bien |
| Bureau |
| État |
| Construction achevée |
| Disponible |
| 30 jours |
3e étage, bureau 330
| Surface |
| 641 m² |
| Durée |
| Négociable |
| Loyer |
| Sur demande Sur demande Sur demande Sur demande |
| Type de bien |
| Bureau |
| État |
| Construction achevée |
| Disponible |
| Maintenant |
3e étage, bureau 360
| Surface |
| 372 – 816 m² |
| Durée |
| Négociable |
| Loyer |
| Sur demande Sur demande Sur demande Sur demande |
| Type de bien |
| Bureau |
| État |
| Construction achevée |
| Disponible |
| Maintenant |
4e étage, bureau 430
| Surface |
| 623 m² |
| Durée |
| Négociable |
| Loyer |
| Sur demande Sur demande Sur demande Sur demande |
| Type de bien |
| Bureau |
| État |
| Construction achevée |
| Disponible |
| 01/08/2026 |
5e étage, bureau 500
| Surface |
| 1 874 m² |
| Durée |
| Négociable |
| Loyer |
| Sur demande Sur demande Sur demande Sur demande |
| Type de bien |
| Bureau |
| État |
| Construction achevée |
| Disponible |
| 01/05/2026 |
7e étage, bureau 710
| Surface |
| 1 050 m² |
| Durée |
| Négociable |
| Loyer |
| Sur demande Sur demande Sur demande Sur demande |
| Type de bien |
| Bureau |
| État |
| Construction achevée |
| Disponible |
| Maintenant |
8e étage, bureau 810
| Surface |
| 402 m² |
| Durée |
| Négociable |
| Loyer |
| Sur demande Sur demande Sur demande Sur demande |
| Type de bien |
| Bureau |
| État |
| Construction achevée |
| Disponible |
| Maintenant |
8e étage, bureau 870
| Surface |
| 244 m² |
| Durée |
| Négociable |
| Loyer |
| Sur demande Sur demande Sur demande Sur demande |
| Type de bien |
| Bureau |
| État |
| Construction achevée |
| Disponible |
| Maintenant |
14e étage, bureau 1400
| Surface |
| 2 405 m² |
| Durée |
| Négociable |
| Loyer |
| Sur demande Sur demande Sur demande Sur demande |
| Type de bien |
| Bureau |
| État |
| Construction achevée |
| Disponible |
| Maintenant |
1er étage, bureau 110
| Surface | 299 m² |
| Durée | Négociable |
| Loyer | Sur demande |
| Type de bien | Bureau |
| État | Construction achevée |
| Disponible | 30 jours |
Superb views of Washington, DC and the monuments.
- Entièrement aménagé comme Bureau standard
- Principalement open space
- Convient pour 18 à 58 personnes
3e étage, bureau 330
| Surface | 641 m² |
| Durée | Négociable |
| Loyer | Sur demande |
| Type de bien | Bureau |
| État | Construction achevée |
| Disponible | Maintenant |
Corner suite that fronts 1400 Crystal Drive
- Entièrement aménagé comme Bureau standard
- Plan d’étage avec bureaux fermés
- Convient pour 18 à 56 personnes
- Peut être associé à un ou plusieurs espaces supplémentaires pour obtenir jusqu’à 1 457 m² d’espace adjacent.
3e étage, bureau 360
| Surface | 372 – 816 m² |
| Durée | Négociable |
| Loyer | Sur demande |
| Type de bien | Bureau |
| État | Construction achevée |
| Disponible | Maintenant |
Superb views of Washington, DC and the monuments
- Entièrement aménagé comme Bureau standard
- Plan d’étage avec bureaux fermés
- Convient pour 10 à 71 personnes
- Peut être associé à un ou plusieurs espaces supplémentaires pour obtenir jusqu’à 1 457 m² d’espace adjacent.
4e étage, bureau 430
| Surface | 623 m² |
| Durée | Négociable |
| Loyer | Sur demande |
| Type de bien | Bureau |
| État | Construction achevée |
| Disponible | 01/08/2026 |
- Entièrement aménagé comme Bureau standard
- Principalement open space
- Convient pour 17 à 54 personnes
5e étage, bureau 500
| Surface | 1 874 m² |
| Durée | Négociable |
| Loyer | Sur demande |
| Type de bien | Bureau |
| État | Construction achevée |
| Disponible | 01/05/2026 |
This space is available as of May 2026
- Entièrement aménagé comme Bureau standard
- Principalement open space
- Convient pour 51 à 162 personnes
7e étage, bureau 710
| Surface | 1 050 m² |
| Durée | Négociable |
| Loyer | Sur demande |
| Type de bien | Bureau |
| État | Construction achevée |
| Disponible | Maintenant |
Superb views of Washington, DC and the monuments
- Entièrement aménagé comme Bureau standard
- Principalement open space
- Convient pour 29 à 91 personnes
- Espace en excellent état
- Peut être associé à un ou plusieurs espaces supplémentaires pour obtenir jusqu’à 1 294 m² d’espace adjacent.
8e étage, bureau 810
| Surface | 402 m² |
| Durée | Négociable |
| Loyer | Sur demande |
| Type de bien | Bureau |
| État | Construction achevée |
| Disponible | Maintenant |
Superb views of Washington, DC and the monuments
- Entièrement aménagé comme Bureau standard
- Plan d’étage avec bureaux fermés
- Convient pour 11 à 35 personnes
8e étage, bureau 870
| Surface | 244 m² |
| Durée | Négociable |
| Loyer | Sur demande |
| Type de bien | Bureau |
| État | Construction achevée |
| Disponible | Maintenant |
Superb views of Washington, DC and the monuments
- Entièrement aménagé comme Bureau standard
- Plan d’étage avec bureaux fermés
- Convient pour 7 à 21 personnes
- Peut être associé à un ou plusieurs espaces supplémentaires pour obtenir jusqu’à 1 294 m² d’espace adjacent.
14e étage, bureau 1400
| Surface | 2 405 m² |
| Durée | Négociable |
| Loyer | Sur demande |
| Type de bien | Bureau |
| État | Construction achevée |
| Disponible | Maintenant |
Superb views of Washington, DC and the monuments
- Entièrement aménagé comme Bureau standard
- Principalement open space
- Convient pour 65 à 208 personnes
APERÇU DU BIEN
Le 1400 Crystal Drive est un immeuble de bureaux ultramoderne de classe A situé dans un emplacement privilégié à Crystal City, en Virginie. D'une superficie de 308 898 pieds carrés, cet immeuble de bureaux moderne compte 14 étages et des fenêtres allant du sol au plafond, offrant de magnifiques opportunités de bureaux d'angle bénéficiant d'une lumière naturelle abondante. Situé sur l'artère principale de Crystal City, Crystal Drive, le bâtiment offre une vue imprenable sur le fleuve Potomac et les toits de Washington, D.C. En 2013, ce bâtiment a reçu la certification LEED de niveau Gold par le US Green Building Council. Points forts : Pour plus d'informations sur la location : Stoddie Nibley | 703-284-5862 | SNibley@lpc.com Accès immédiat à l'I-395, à la GW Parkway, au Pentagone et à l'aéroport national Reagan Superbes vues sur Washington, DC et les monuments 308 898 pieds carrés au 1400 Crystal Drive 130 000 pieds carrés louables supplémentaires d'espace de classe B disponibles au Jefferson Plaza Entouré de plus de 100 restaurants, 4 500 chambres d'hôtel et de nombreux équipements commerciaux Situé au cœur de Crystal City et se trouve à seulement quelques minutes du Pentagone, de Pentagon City, du centre-ville de Washington et de Capitol Hill Situé à moins de deux pâtés de maisons de la station de métro des lignes jaune et bleue et du VRE. .
- Accès 24 h/24
- Installations de conférences
- Centre de fitness
- Terrasse sur le toit
INFORMATIONS SUR L’IMMEUBLE
OCCUPANTS
- ÉTAGE
- NOM DE L’OCCUPANT
- 7e
- Allied Telecom Group
- 3e
- American Association of Colleges of Pharmacy
- Multi
- American Institutes for Research
- 6e
- American Intellectual Property Law Association
- 9e
- Association for Professionals in Infection Control
- 5e
- Capital Impact Partners
- 14e
- Decisive Analytics Corporation
- 8e
- Millennium Engineering and Integration Company
- 3e
- National District Attorneys Association
- 6e
- North American Millers’ Association
Présenté par
National Landing | 1400 Crystal Dr
Hum, une erreur s’est produite lors de l’envoi de votre message. Veuillez réessayer.
Merci ! Votre message a été envoyé.





















