Votre e-mail a été envoyé.
Certaines informations ont été traduites automatiquement.
Informations principales
- Bureau professionnel de 8 000 pieds carrés disponible dès maintenant
- Réception, salle de repos, salle informatique/serveur avec climatisation, nombreux rangements
- Façade élégante en pierre et construction SIP thermiquement efficace
- 16 bureaux privés, 2 salles de conférence et un laboratoire.
- Zone centrale avec 24 cubes insonorisants à distance sociale
- 22 minutes de l'aéroport international de Tampa
Tous les espace disponibles(1)
Afficher les loyers en
- Espace
- Surface
- Durée
- Loyer
- Type de bien
- État
- Disponible
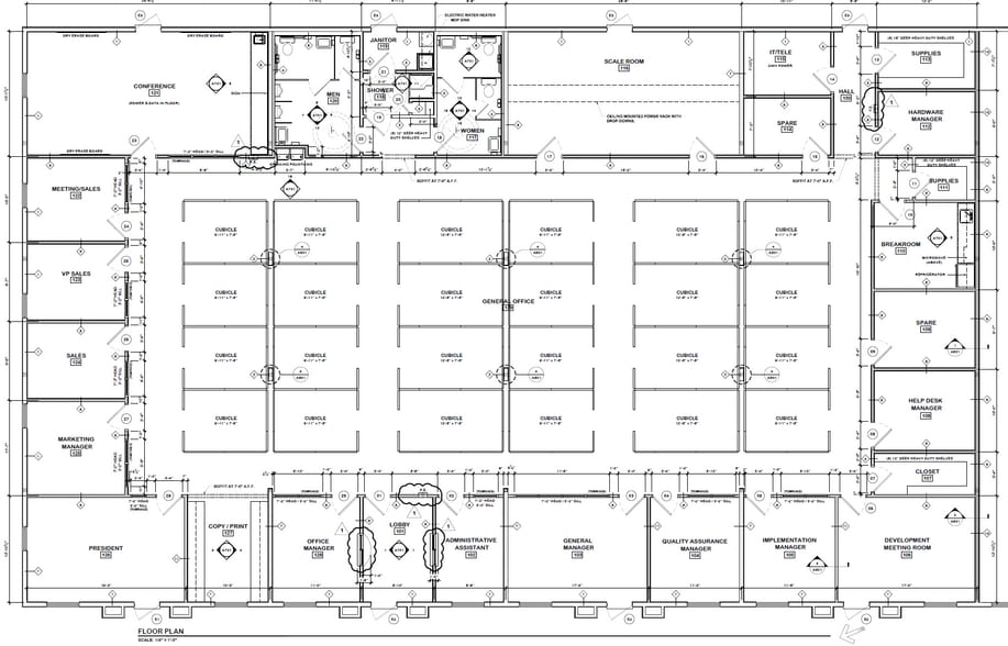
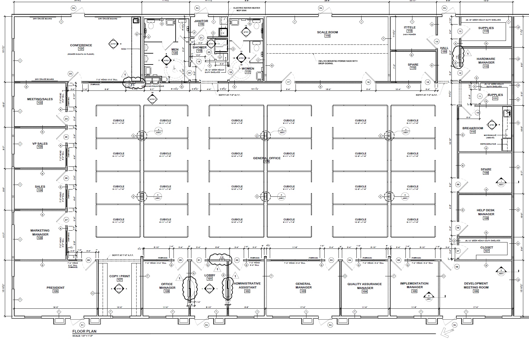
13528 Prestige Place purchased by Lode Giver LLC in December 2009 with only suite 107 (2,000 SF) built out. Interior build-out of remaining suites 101 through 106 was done through 2010/2011. The 8,000 SF suite 102 was built out for a software company Applied Data Corporation who were tenants from 2010 through 2020, followed by BobCAD, another software company, from 2020 through 2026: The building is constructed of Steel insulated Panels (SIP Construction), with each wall and roof steel panel sandwiching 6" of expanded polystyrene, making the building super-well insulated, essentially a large cool-box, while providing appropriate hurricane-strength wind resistance . A Fleeceback 60 mil EPDM with foam adhesive roof covering was installed in 2012 and carries a 20-year manufacturer's warranty. The keystone 8,000 SF office is available from May 1st, 2026, the main entrance being through the door marked Suite 102.
- Occupant responsable de l’utilisation de l’éclairage et des prises électriques
- Principalement open space
- 19 bureaux privés
- 24 postes de travail
- Ventilation et chauffage centraux
- Laboratoire
- Salle d’impression/photocopie
- Entièrement moquetté
- Espace d’angle
- Lumière naturelle
- Éclairage d’urgence
- Conforme à la DDA (loi sur la discrimination à l’égard des personnes handicapées)
- Détecteur de fumée
- Private offices & conf rooms around the periphery
- 24 double pre-existing cubes in total
- Entièrement aménagé comme Bureau de services professionnels
- Convient pour 45 à 64 personnes
- 3 salles de conférence
- Espace en excellent état
- Aire de réception
- Connectivité Wi-Fi
- Toilettes privées
- Vidéosurveillance
- Entreposage sécurisé
- CVC disponible en-dehors des heures ouvrables
- Classe de performance énergétique –A
- Open space
- Accessible fauteuils roulants
- Double cubicles in 3 blocks of 3, ideal per dept.
- Excellent network and power connectivity
| Espace | Surface | Durée | Loyer | Type de bien | État | Disponible |
| 1er étage, bureau 102 | 743 m² | 3-5 Ans | 176,11 € /m²/an 14,68 € /m²/mois 130 886 € /an 10 907 € /mois | Bureau | Construction achevée | 01/05/2026 |
1er étage, bureau 102
| Surface |
| 743 m² |
| Durée |
| 3-5 Ans |
| Loyer |
| 176,11 € /m²/an 14,68 € /m²/mois 130 886 € /an 10 907 € /mois |
| Type de bien |
| Bureau |
| État |
| Construction achevée |
| Disponible |
| 01/05/2026 |
1er étage, bureau 102
| Surface | 743 m² |
| Durée | 3-5 Ans |
| Loyer | 176,11 € /m²/an |
| Type de bien | Bureau |
| État | Construction achevée |
| Disponible | 01/05/2026 |
13528 Prestige Place purchased by Lode Giver LLC in December 2009 with only suite 107 (2,000 SF) built out. Interior build-out of remaining suites 101 through 106 was done through 2010/2011. The 8,000 SF suite 102 was built out for a software company Applied Data Corporation who were tenants from 2010 through 2020, followed by BobCAD, another software company, from 2020 through 2026: The building is constructed of Steel insulated Panels (SIP Construction), with each wall and roof steel panel sandwiching 6" of expanded polystyrene, making the building super-well insulated, essentially a large cool-box, while providing appropriate hurricane-strength wind resistance . A Fleeceback 60 mil EPDM with foam adhesive roof covering was installed in 2012 and carries a 20-year manufacturer's warranty. The keystone 8,000 SF office is available from May 1st, 2026, the main entrance being through the door marked Suite 102.
- Occupant responsable de l’utilisation de l’éclairage et des prises électriques
- Entièrement aménagé comme Bureau de services professionnels
- Principalement open space
- Convient pour 45 à 64 personnes
- 19 bureaux privés
- 3 salles de conférence
- 24 postes de travail
- Espace en excellent état
- Ventilation et chauffage centraux
- Aire de réception
- Laboratoire
- Connectivité Wi-Fi
- Salle d’impression/photocopie
- Toilettes privées
- Entièrement moquetté
- Vidéosurveillance
- Espace d’angle
- Entreposage sécurisé
- Lumière naturelle
- CVC disponible en-dehors des heures ouvrables
- Éclairage d’urgence
- Classe de performance énergétique –A
- Conforme à la DDA (loi sur la discrimination à l’égard des personnes handicapées)
- Open space
- Détecteur de fumée
- Accessible fauteuils roulants
- Private offices & conf rooms around the periphery
- Double cubicles in 3 blocks of 3, ideal per dept.
- 24 double pre-existing cubes in total
- Excellent network and power connectivity
Aperçu du bien
Le 13528 Prestige Place se trouve dans le parc d'affaires de Monroe, à l'angle de Prestige Place et de la voie de service du côté est du magasin Lowes Home Improvement, à l'angle nord-est de l'intersection principale entre Hillsborough Avenue/Tampa Road et Racetrack Road dans le comté de West Hillsborough, près de la limite du comté de Pinellas. L'établissement est facilement accessible depuis Hillsborough Avenue/Tampa Road et Racetrack Road. Il se trouve à l'extrémité est d'Oldsmar et bénéficie ainsi de la proximité des commerces de détail, des restaurants et des installations hôtelières d'Oldsmar.
- Climatisation
Informations sur l’immeuble
Occupants
- Étage
- Nom de l’occupant
- Secteur d’activité
- 1er
- BobCAD
- Services professionnels, scientifiques et techniques
- 1er
- Med X Solutions
- Services professionnels, scientifiques et techniques
- 1er
- Mortellaro & Sinadinos
- Services professionnels, scientifiques et techniques
- 1er
- TTT Transport Logistics
- Services
Présenté par
8,000 SF Office/Flex | 13528 Prestige Pl
Hum, une erreur s’est produite lors de l’envoi de votre message. Veuillez réessayer.
Merci ! Votre message a été envoyé.






