Connectez-vous/S’inscrire
Votre e-mail a été envoyé.
135 W 136th St Immeuble | 334 m² | Spécialité | À vendre 1 703 940 € | New York, NY 10030



Certaines informations ont été traduites automatiquement.
INFORMATIONS PRINCIPALES SUR L'INVESTISSEMENT
- Centrally located in Harlem near major cultural landmarks
- Surrounded by active residential and retail corridors
- Walking distance to Harlem Hospital and Schomburg Center
- Excellent transit access via 2/3 subway lines at 135th Street
- Potential for mixed-use, multifamily, or community facility conversion
- Positioned in a high-foot-traffic, revitalizing neighborhood
RÉSUMÉ ANALYTIQUE
This elegant three-family townhouse in Central Harlem offers over a 4% cap rate—a rare opportunity to own a fully leased, 100% free-market property with strong income and long-term growth potential. It can also be reimagined as a beautiful single-family home.
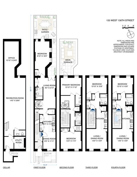
With 3,552 sq ft of interior space (including an 888 sq ft finished basement with a half bath), the residence features soaring ceilings, expansive rooms, and individual central AC controls for each unit.
Set on a charming tree-lined street, the property combines old-world Harlem character with modern convenience. Just moments from the 2/3 and A/B/C trains and multiple bus lines (M1, M2, M7, M102), it offers effortless access to Midtown and beyond. Located in a rapidly appreciating pocket of Harlem, it represents both stability and upside for investors and end-users alike.
Behind its stately 1910 façade and welcoming front stoop, the triplex offers three spacious bedrooms, two bathrooms, and an open kitchen that flows seamlessly to a sun-filled dining area and private garden—perfect for entertaining or quiet reflection. A full-size washer/dryer and abundant storage complete the home.
The newly finished basement includes a half bath and is currently configured as an art studio, easily adaptable to a home office or recreation room. Updated mechanicals and a separate utility room add function and peace of mind.
Beyond the property itself, this neighborhood tells a story of culture, community, and momentum. Around the corner are Harlem’s celebrated landmarks—the Schomburg Center, local theaters, and galleries—alongside everyday conveniences and Harlem’s vibrant culinary scene. Enjoy destinations like Red Rooster, Renaissance Harlem, Ponty Bistro, Maison Harlem, and Lido, each reflecting the spirit of Harlem’s creative renaissance.
This townhouse embodies the best of historic charm, income potential, and modern Harlem living—a smart, soulful investment.
With 3,552 sq ft of interior space (including an 888 sq ft finished basement with a half bath), the residence features soaring ceilings, expansive rooms, and individual central AC controls for each unit.
Set on a charming tree-lined street, the property combines old-world Harlem character with modern convenience. Just moments from the 2/3 and A/B/C trains and multiple bus lines (M1, M2, M7, M102), it offers effortless access to Midtown and beyond. Located in a rapidly appreciating pocket of Harlem, it represents both stability and upside for investors and end-users alike.
Behind its stately 1910 façade and welcoming front stoop, the triplex offers three spacious bedrooms, two bathrooms, and an open kitchen that flows seamlessly to a sun-filled dining area and private garden—perfect for entertaining or quiet reflection. A full-size washer/dryer and abundant storage complete the home.
The newly finished basement includes a half bath and is currently configured as an art studio, easily adaptable to a home office or recreation room. Updated mechanicals and a separate utility room add function and peace of mind.
Beyond the property itself, this neighborhood tells a story of culture, community, and momentum. Around the corner are Harlem’s celebrated landmarks—the Schomburg Center, local theaters, and galleries—alongside everyday conveniences and Harlem’s vibrant culinary scene. Enjoy destinations like Red Rooster, Renaissance Harlem, Ponty Bistro, Maison Harlem, and Lido, each reflecting the spirit of Harlem’s creative renaissance.
This townhouse embodies the best of historic charm, income potential, and modern Harlem living—a smart, soulful investment.
INFORMATIONS SUR L’IMMEUBLE
| Prix | 1 703 940 € | Surface du lot | 0,01 ha |
| Prix par m² | 5 094,74 € | Surface de l’immeuble | 334 m² |
| Type de vente | Investissement | Nb d’étages | 4 |
| Type de bien | Spécialité | Année de construction | 1910 |
| Sous-type de bien | Revenu résidentiel | ||
| Zonage | R7-2 - Medium-density apartment house district with lower parking requirements | ||
| Prix | 1 703 940 € |
| Prix par m² | 5 094,74 € |
| Type de vente | Investissement |
| Type de bien | Spécialité |
| Sous-type de bien | Revenu résidentiel |
| Surface du lot | 0,01 ha |
| Surface de l’immeuble | 334 m² |
| Nb d’étages | 4 |
| Année de construction | 1910 |
| Zonage | R7-2 - Medium-density apartment house district with lower parking requirements |
1 1
Walk Score®
Idéal pour les promeneurs (96)
Transit Score®
Un paradis pour l’usager (100)
Bike Score®
Très praticable en vélo (73)
1 sur 13
VIDÉOS
VISITE EXTÉRIEURE 3D MATTERPORT
VISITE 3D
PHOTOS
STREET VIEW
RUE
CARTE
1 sur 1
Présenté par
135 W 136th St
Vous êtes déjà membre ? Connectez-vous
Hum, une erreur s’est produite lors de l’envoi de votre message. Veuillez réessayer.
Merci ! Votre message a été envoyé.
