Votre e-mail a été envoyé.
13413 N Nebraska Ave Local commercial | 281 m² | À louer | Tampa, FL 33612



Certaines informations ont été traduites automatiquement.
Disponibilité de l’espace (1)
Afficher le tarif en
- Espace
- Surface
- Plafond
- Durée
- Loyer
- Type de loyer
| Espace | Surface | Plafond | Durée | Loyer | Type de loyer | |
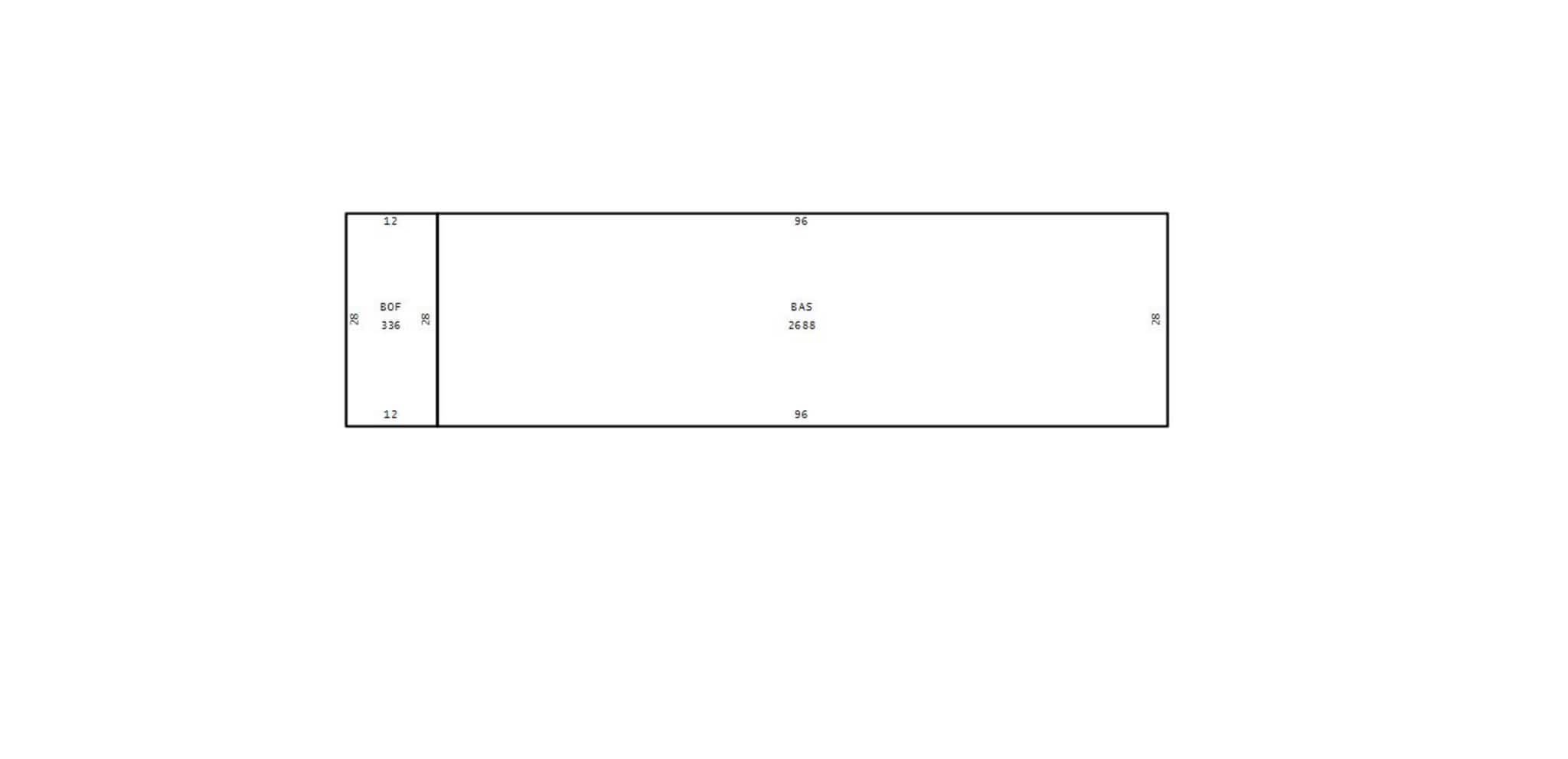
| 1er étage | 281 m² | 3,66 mètres | 1-5 Ans | 220,33 € /m²/an 18,36 € /m²/mois 61 900 € /an 5 158 € /mois | Triple net (NNN) |
1er étage
- Le loyer ne comprend pas les services publics, les frais immobiliers ou les services de l’immeuble.
- Climatisation centrale
- Toilettes privées
- Plafonds finis: 3,66 mètres
Types de loyers
Le montant et le type de loyer que l’occupant (locataire) est tenu de payer au propriétaire (bailleur) sur la durée du bail sont négociés avant la signature du bail par les deux parties. Le type de loyer varie selon les services fournis. Par exemple, le prix d’un loyer triple net est habituellement inférieur à celui d’un bail à service complet puisque l’occupant est tenu d’assumer des dépenses supplémentaires par rapport au loyer de base. Contacter le broker chargé de l’annonce pour bien comprendre les coûts associés ou les dépenses supplémentaires pour chaque type de loyer.
1. Service complet: Un loyer qui comprend des services d’immeuble standards normaux fournis par le propriétaire dans le cadre d’une location annuelle de base.
2. Double net (NN): L’occupant paie seulement deux des frais de l’immeuble. Le propriétaire et l’occupant déterminent ces frais spécifiques avant la signature du bail.
3. Triple net (NNN): Un bail selon lequel l’occupant est responsable de tous les frais liés à sa part proportionnelle d’occupation de l’immeuble.
4. Brut modifié: Le brut modifié est un type général de bail dans lequel l’occupant est en général responsable de sa part proportionnelle d’une ou de plusieurs dépenses. C’est le propriétaire qui paie les frais restants. Consultez la liste ci-dessous pour connaître les structures de loyers bruts modifiés les plus courantes : 4. Plus services publics: Un type de bail brut modifié, où l’occupant est responsable à hauteur de sa part proportionnelle des services publics en plus du loyer. 4. Plus nettoyage: Un type de bail brut modifié, où l’occupant est responsable à hauteur de sa part proportionnelle du nettoyage en plus du loyer. 4. Plus électricité: Un type de bail brut modifié, où l’occupant est responsable à hauteur de sa part proportionnelle du coût de la consommation électrique en plus du loyer. 4. Plus électricité et nettoyage: Un type de bail brut modifié, où l’occupant est responsable à hauteur de sa part proportionnelle du coût de la consommation électrique et du nettoyage en plus du loyer. 4. Plus services publics et charges: Un type de bail brut modifié où l’occupant est responsable à hauteur de sa part proportionnelle des services publics et du coût de nettoyage en plus du loyer. 4. Bail industriel brut: Un type de bail brut modifié dans lequel l’occupant paie un ou plusieurs des frais en plus du loyer. Le propriétaire et l’occupant déterminent ces frais spécifiques avant la signature du bail.
5. Électricité à la charge de l’occupant: Le propriétaire paie pour tous les services et l’occupant est responsable de sa propre utilisation de l’éclairage et des prises électriques dans l’espace qu’il occupe.
6. Négociable ou sur demande: Cette option est utilisée lorsque le contact de location n’indique pas le type de loyer ou de service.
7. À déterminer: À déterminer : utilisé pour les immeubles dont le type de services ou de loyer n’est pas connu, souvent quand l’immeuble n’est pas encore construit.
Informations sur l’immeuble
| Espace total disponible | 281 m² | Surface commerciale utile | 281 m² |
| Type de bien | Local commercial | Année de construction | 1982 |
| Sous-type de bien | Réparation automatique | Ratio de stationnement | 0,61/1 000 m² |
| Espace total disponible | 281 m² |
| Type de bien | Local commercial |
| Sous-type de bien | Réparation automatique |
| Surface commerciale utile | 281 m² |
| Année de construction | 1982 |
| Ratio de stationnement | 0,61/1 000 m² |
À propos du bien
Opportunity to lease a standalone Auto repair shop on Nebraska Ave. Land size is 0.35 acres. Building is also suitable for tinting, body shop, auto glass repair, professional trade services. Building is 3,024 sqft and has 5 bays (2 separated by walls), an office and a couple bathrooms with ample parking. Property is fenced, but entire lot is not within fence line. Rent is $6,050 a month NNN. Pictures will be updated once tenant vacates. Available May 1st
- Accès contrôlé
- Terrain clôturé
- Enseigne sur pylône
Principaux commerces à proximité
Présenté par
7200 E Mlk Investments Llc
13413 N Nebraska Ave
Hum, une erreur s’est produite lors de l’envoi de votre message. Veuillez réessayer.
Merci ! Votre message a été envoyé.


