Votre e-mail a été envoyé.
Certaines informations ont été traduites automatiquement.
Tous les espaces disponibles(3)
Afficher les loyers en
- Espace
- Surface
- Durée
- Loyer
- Type de bien
- Aménagement
- Disponible
FIRST FLOOR SPACE
- Il est possible que le loyer annoncé ne comprenne pas certains services publics, services d’immeuble et frais immobiliers.
- Principalement open space
- Entièrement aménagé comme Bureau standard
Professional office space consisting of multiple offices, conference rooms, 3 restrooms, reception, bullpen area, kitchen, and bonus enclosed balcony (254 additional sf). Space shows exceptionally well, and current tenant is the owner. Current use is professional office for commercial construction company. Lease asking rent is $14/sf MG + Utilities and CAM. Landlord is looking for qualified long-term tenant. Some customization available. Ample parking.
- Il est possible que le loyer annoncé ne comprenne pas certains services publics, services d’immeuble et frais immobiliers.
- 9 bureaux privés
- Espace en excellent état
- Entièrement aménagé comme Bureau standard
- 1 salle de conférence
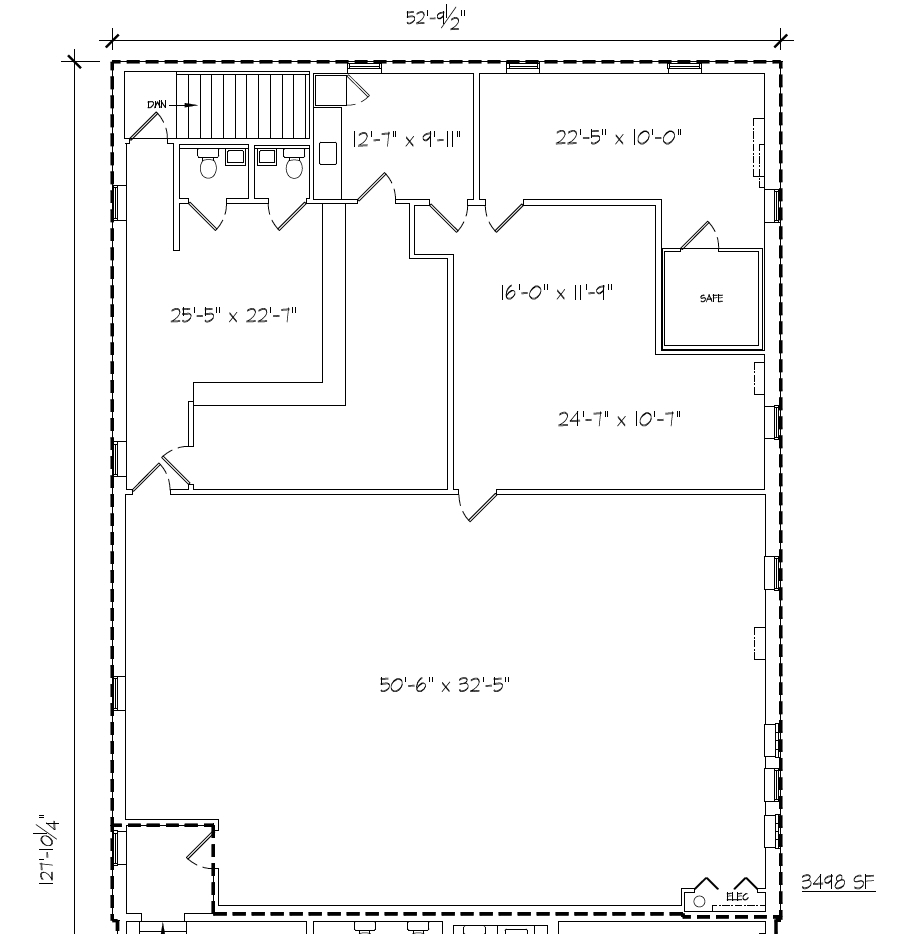
2nd floor suite in high security building perfect for retail or office use. Approx 3,498 SF. Features include retail showroom, large training room, offices, kitchen/breakroom, and 2 in suite restrooms. Perfect location for general retail, office, medical, or other professional uses including classrooms, firearms, jeweler, institutional. Also features security doors, buzz-in system, camera system, and other security features.
- Il est possible que le loyer annoncé ne comprenne pas certains services publics, services d’immeuble et frais immobiliers.
- Principalement open space
- 1 salle de conférence
- Entièrement aménagé comme Local commercial standard
- 2 bureaux privés
- Espace en excellent état
| Espace | Surface | Durée | Loyer | Type de bien | Aménagement | Disponible |
| 1er étage, bureau 2 | 255 m² | 5-10 Ans | 95,02 € /m²/an 7,92 € /m²/mois 24 258 € /an 2 022 € /mois | Bureaux/Local commercial | Construction achevée | Maintenant |
| 1er étage, bureau 4 | 265 m² | 5-10 Ans | 91,81 € /m²/an 7,65 € /m²/mois 24 325 € /an 2 027 € /mois | Bureau | Construction achevée | Maintenant |
| 2e étage, bureau 3 | 325 m² | 5-10 Ans | 91,81 € /m²/an 7,65 € /m²/mois 29 834 € /an 2 486 € /mois | Bureaux/Local commercial | Construction achevée | Maintenant |
1er étage, bureau 2
| Surface |
| 255 m² |
| Durée |
| 5-10 Ans |
| Loyer |
| 95,02 € /m²/an 7,92 € /m²/mois 24 258 € /an 2 022 € /mois |
| Type de bien |
| Bureaux/Local commercial |
| Aménagement |
| Construction achevée |
| Disponible |
| Maintenant |
1er étage, bureau 4
| Surface |
| 265 m² |
| Durée |
| 5-10 Ans |
| Loyer |
| 91,81 € /m²/an 7,65 € /m²/mois 24 325 € /an 2 027 € /mois |
| Type de bien |
| Bureau |
| Aménagement |
| Construction achevée |
| Disponible |
| Maintenant |
2e étage, bureau 3
| Surface |
| 325 m² |
| Durée |
| 5-10 Ans |
| Loyer |
| 91,81 € /m²/an 7,65 € /m²/mois 29 834 € /an 2 486 € /mois |
| Type de bien |
| Bureaux/Local commercial |
| Aménagement |
| Construction achevée |
| Disponible |
| Maintenant |
1er étage, bureau 2
| Surface | 255 m² |
| Durée | 5-10 Ans |
| Loyer | 95,02 € /m²/an |
| Type de bien | Bureaux/Local commercial |
| Aménagement | Construction achevée |
| Disponible | Maintenant |
FIRST FLOOR SPACE
- Il est possible que le loyer annoncé ne comprenne pas certains services publics, services d’immeuble et frais immobiliers.
- Entièrement aménagé comme Bureau standard
- Principalement open space
1er étage, bureau 4
| Surface | 265 m² |
| Durée | 5-10 Ans |
| Loyer | 91,81 € /m²/an |
| Type de bien | Bureau |
| Aménagement | Construction achevée |
| Disponible | Maintenant |
Professional office space consisting of multiple offices, conference rooms, 3 restrooms, reception, bullpen area, kitchen, and bonus enclosed balcony (254 additional sf). Space shows exceptionally well, and current tenant is the owner. Current use is professional office for commercial construction company. Lease asking rent is $14/sf MG + Utilities and CAM. Landlord is looking for qualified long-term tenant. Some customization available. Ample parking.
- Il est possible que le loyer annoncé ne comprenne pas certains services publics, services d’immeuble et frais immobiliers.
- Entièrement aménagé comme Bureau standard
- 9 bureaux privés
- 1 salle de conférence
- Espace en excellent état
2e étage, bureau 3
| Surface | 325 m² |
| Durée | 5-10 Ans |
| Loyer | 91,81 € /m²/an |
| Type de bien | Bureaux/Local commercial |
| Aménagement | Construction achevée |
| Disponible | Maintenant |
2nd floor suite in high security building perfect for retail or office use. Approx 3,498 SF. Features include retail showroom, large training room, offices, kitchen/breakroom, and 2 in suite restrooms. Perfect location for general retail, office, medical, or other professional uses including classrooms, firearms, jeweler, institutional. Also features security doors, buzz-in system, camera system, and other security features.
- Il est possible que le loyer annoncé ne comprenne pas certains services publics, services d’immeuble et frais immobiliers.
- Entièrement aménagé comme Local commercial standard
- Principalement open space
- 2 bureaux privés
- 1 salle de conférence
- Espace en excellent état
Caractéristiques
- Accès 24 h/24
- Chauffage central
- Faux plafond
- Climatisation
- Détecteur de fumée
Informations sur l’immeuble
Présenté par
1330 Dillon Heights Ave
Hum, une erreur s’est produite lors de l’envoi de votre message. Veuillez réessayer.
Merci ! Votre message a été envoyé.





