
Cette fonctionnalité n’est pas disponible pour le moment.
Nous sommes désolés, mais la fonctionnalité à laquelle vous essayez d’accéder n’est pas disponible actuellement. Nous sommes au courant du problème et notre équipe travaille activement pour le résoudre.
Veuillez vérifier de nouveau dans quelques minutes. Veuillez nous excuser pour ce désagrément.
– L’équipe LoopNet
Votre e-mail a été envoyé.
50K SF Facility in I-2 zoning - 24' height 133 Community Dr Industriel/Logistique 5 073 m² Inoccupé À vendre Gastonia, NC 28052 2 074 560 € (408,94 €/m²)



Certaines informations ont été traduites automatiquement.
INFORMATIONS PRINCIPALES SUR L'INVESTISSEMENT
- Clear heights up to 24'
- Rare I-2 zoning allows for a multitude of uses
- New roll up doors
RÉSUMÉ ANALYTIQUE
INFORMATIONS SUR L’IMMEUBLE
CARACTÉRISTIQUES
- Terrain clôturé
- Chargement frontal
- Signalisation
- Espace d’entreposage
SERVICES PUBLICS
- Éclairage
- Eau - Ville
- Égout - Champ septique
DISPONIBILITÉ DE L’ESPACE
- ESPACE
- SURFACE
- TYPE DE BIEN
- ÉTAT
- DISPONIBLE
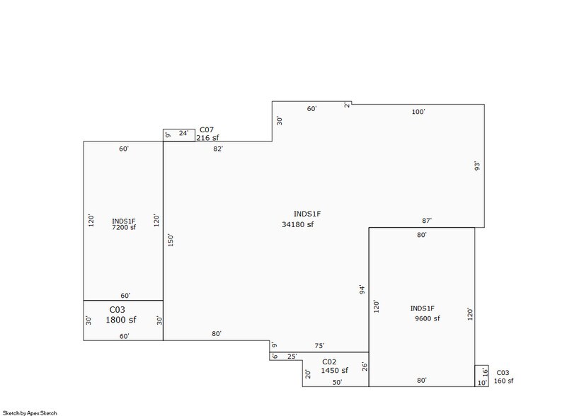
133 Community Drive is a 3.35-acre industrial site in Gastonia with direct frontage on Highway 321 and quick access to I-85. The property includes a 54,606 SF building with multiple new roll-up doors and 24-foot clear heights. Zoned I-2, outdoor storage is permitted. Offered at $3.75/ft, NNN the site is minutes from Gastonia Municipal Airport and sits in a growing industrial corridor west of Charlotte. The city’s investment in the FUSE District and its location between Atlanta and the Research Triangle make it a strategic play for owner-users or investors. This property is also available for sale.
Espace | Surface | Type de bien | État | Disponible |
1er étage | 5 073 m² | Industriel/Logistique | Espace brut | Maintenant |
1er étage
Surface |
5 073 m² |
Type de bien |
Industriel/Logistique |
État |
Espace brut |
Disponible |
Maintenant |
1er étage
Surface | 5 073 m² |
Type de bien | Industriel/Logistique |
État | Espace brut |
Disponible | Maintenant |
133 Community Drive is a 3.35-acre industrial site in Gastonia with direct frontage on Highway 321 and quick access to I-85. The property includes a 54,606 SF building with multiple new roll-up doors and 24-foot clear heights. Zoned I-2, outdoor storage is permitted. Offered at $3.75/ft, NNN the site is minutes from Gastonia Municipal Airport and sits in a growing industrial corridor west of Charlotte. The city’s investment in the FUSE District and its location between Atlanta and the Research Triangle make it a strategic play for owner-users or investors. This property is also available for sale.
TAXES FONCIÈRES
Numéro de parcelle | 147383 | Évaluation des aménagements | 702 437 € |
Évaluation du terrain | 95 559 € | Évaluation totale | 797 997 € |
TAXES FONCIÈRES
Présenté par

50K SF Facility in I-2 zoning - 24' height | 133 Community Dr
Hum, une erreur s’est produite lors de l’envoi de votre message. Veuillez réessayer.
Merci ! Votre message a été envoyé.