Votre e-mail a été envoyé.
Certaines informations ont été traduites automatiquement.
Informations principales
- Propriété historique historique
- Conçu par le célèbre architecte Willis Polk
Tous les espaces disponibles(3)
Afficher les loyers en
- Espace
- Surface
- Durée
- Loyer
- Type de bien
- Aménagement
- Disponible
• Creative open plan full floor • 4 large boardrooms • 3 large conference rooms • 10 meeting rooms/private offices • Open kitchen • Large storage rooms
- Entièrement aménagé comme Bureau standard
- Plafonds finis: 3,35 mètres
- Aire de réception
- Principalement open space
- Plug & Play
- Cuisine
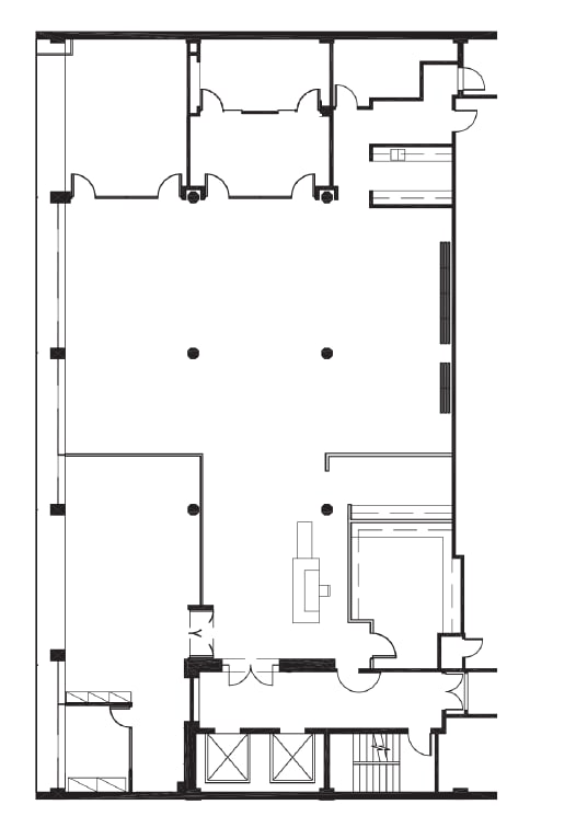
Suite 300 is a Full floor opportunity consisting of 11,500 RSF. This is a highly creative space, plug-and-play opportunity, with high ceilings, open space, a full kitchen and break room, file/copy room. It has a mostly open plan with 2 large conference rooms and a few smaller meeting rooms, expansive ceiling height, reception area and stunning window-line with natural light.
- Entièrement aménagé comme Bureau standard
- 4 salles de conférence
- Plafonds finis: 3,35 mètres
- Aire de réception
- Espace Plug & Play
- Espace ouvert
- 2 grandes et 2 salles de conférence de taille moyenne
- Disposition open space
- 120 postes de travail
- Espace en excellent état
- Opportunité d'étage complet de 11 500 RSF
- Hauts plafonds
- Cuisine complète et salle de pause
6th floor space for 6,538 SF. With competitive rates, this space has great natural light, high ceilings, large kitchen, couple of conference/meeting rooms, reception area, file/copy room, stunning window-line with natural light
- Entièrement aménagé comme Bureau standard
- 2 salles de conférence
- Plafonds finis: 3,35 mètres
- Aire de réception
- Superficie de 6 538 pieds carrés au 6e étage
- Grande cuisine
- Réception
- Principalement open space
- 65 postes de travail
- Espace en excellent état
- Lumière naturelle
- Très belle lumière naturelle avec de hauts plafonds
- 2 salles de conférence/salles de réunion
| Espace | Surface | Durée | Loyer | Type de bien | Aménagement | Disponible |
| 2e étage, bureau 200 | 1 142 m² | Négociable | Sur demande Sur demande Sur demande Sur demande | Bureau | Construction achevée | 30 jours |
| 3e étage, bureau 300 | 1 068 m² | Négociable | Sur demande Sur demande Sur demande Sur demande | Bureau | Construction achevée | Maintenant |
| 6e étage, bureau 600 | 607 m² | Négociable | Sur demande Sur demande Sur demande Sur demande | Bureau | Construction achevée | Maintenant |
2e étage, bureau 200
| Surface |
| 1 142 m² |
| Durée |
| Négociable |
| Loyer |
| Sur demande Sur demande Sur demande Sur demande |
| Type de bien |
| Bureau |
| Aménagement |
| Construction achevée |
| Disponible |
| 30 jours |
3e étage, bureau 300
| Surface |
| 1 068 m² |
| Durée |
| Négociable |
| Loyer |
| Sur demande Sur demande Sur demande Sur demande |
| Type de bien |
| Bureau |
| Aménagement |
| Construction achevée |
| Disponible |
| Maintenant |
6e étage, bureau 600
| Surface |
| 607 m² |
| Durée |
| Négociable |
| Loyer |
| Sur demande Sur demande Sur demande Sur demande |
| Type de bien |
| Bureau |
| Aménagement |
| Construction achevée |
| Disponible |
| Maintenant |
2e étage, bureau 200
| Surface | 1 142 m² |
| Durée | Négociable |
| Loyer | Sur demande |
| Type de bien | Bureau |
| Aménagement | Construction achevée |
| Disponible | 30 jours |
• Creative open plan full floor • 4 large boardrooms • 3 large conference rooms • 10 meeting rooms/private offices • Open kitchen • Large storage rooms
- Entièrement aménagé comme Bureau standard
- Principalement open space
- Plafonds finis: 3,35 mètres
- Plug & Play
- Aire de réception
- Cuisine
3e étage, bureau 300
| Surface | 1 068 m² |
| Durée | Négociable |
| Loyer | Sur demande |
| Type de bien | Bureau |
| Aménagement | Construction achevée |
| Disponible | Maintenant |
Suite 300 is a Full floor opportunity consisting of 11,500 RSF. This is a highly creative space, plug-and-play opportunity, with high ceilings, open space, a full kitchen and break room, file/copy room. It has a mostly open plan with 2 large conference rooms and a few smaller meeting rooms, expansive ceiling height, reception area and stunning window-line with natural light.
- Entièrement aménagé comme Bureau standard
- Disposition open space
- 4 salles de conférence
- 120 postes de travail
- Plafonds finis: 3,35 mètres
- Espace en excellent état
- Aire de réception
- Opportunité d'étage complet de 11 500 RSF
- Espace Plug & Play
- Hauts plafonds
- Espace ouvert
- Cuisine complète et salle de pause
- 2 grandes et 2 salles de conférence de taille moyenne
6e étage, bureau 600
| Surface | 607 m² |
| Durée | Négociable |
| Loyer | Sur demande |
| Type de bien | Bureau |
| Aménagement | Construction achevée |
| Disponible | Maintenant |
6th floor space for 6,538 SF. With competitive rates, this space has great natural light, high ceilings, large kitchen, couple of conference/meeting rooms, reception area, file/copy room, stunning window-line with natural light
- Entièrement aménagé comme Bureau standard
- Principalement open space
- 2 salles de conférence
- 65 postes de travail
- Plafonds finis: 3,35 mètres
- Espace en excellent état
- Aire de réception
- Lumière naturelle
- Superficie de 6 538 pieds carrés au 6e étage
- Très belle lumière naturelle avec de hauts plafonds
- Grande cuisine
- 2 salles de conférence/salles de réunion
- Réception
Aperçu du bien
Le 130 Sutter, connu sous le nom de bâtiment Hallidie, a été conçu par le célèbre architecte Willis Polk et achevé en 1918. Le bâtiment est doté d'un mur-rideau en verre, de corniches en fer de style gothique victorien et de balcons masquant les issues de secours. Le bâtiment Hallidie est classé monument historique et figure dans les manuels américains et étrangers sur l'architecture commerciale.
- Accès contrôlé
- Espace d’entreposage
- Hauts plafonds
- Plug & Play
- Climatisation
Informations sur l’immeuble
Présenté par
Hallidie Bldg | 130-150 Sutter St
Hum, une erreur s’est produite lors de l’envoi de votre message. Veuillez réessayer.
Merci ! Votre message a été envoyé.











