Votre e-mail a été envoyé.
Certaines informations ont été traduites automatiquement.
Informations principales sur le parc
- Appelez pour obtenir le meilleur tarif et les meilleurs incitatifs. Le CAM inclut le service de conciergerie, d'électricité et le propriétaire responsables de l'entretien, des réparations et du remplacement du système CVC
- Suites construites sur mesure et disponibles pour répondre aux besoins des locataires - Zoned For Medical
- Idéalement situé à 800 mètres à l'ouest de l'I-95, accès direct à l'autoroute Sawgrass et à l'autoroute à péage
- Bâtiment complet de 12 356 pieds carrés disponible plus un étage complet contigu de 6 178 pieds carrés pour 19 054 pieds carrés
- À distance de marche des restaurants, de Publix, de Walgreens et d'autres établissements commerciaux
Faits sur le parc
Tous les espaces disponibles(4)
Afficher les loyers en
- Espace
- Surface
- Durée
- Loyer
- Type de bien
- Aménagement
- Disponible
Turnkey full first floor build-out! Eight perimeter window offices, conference room, kitchen area and open area for work stations.
- Le loyer ne comprend pas les services publics, les frais immobiliers ou les services de l’immeuble.
- Flexible Lease Terms
- Fully Turnkey Space in Excellent Condition
- Convient pour 15 à 47 personnes
- Lots of Natural Light and First Floor Easy Access
Nicely built out office suite with 3 private offices, open area for work stations and breakroom area with counter sink and built-in cabinetry. Juliet balconies and corner unit with a lot of windows for natural light. Available for immediate occupancy
- Le loyer ne comprend pas les services publics, les frais immobiliers ou les services de l’immeuble.
- Principalement open space
- 3 bureaux privés
- Balcon
- Hauts plafonds
- Superbe aménagement avec bureaux privés et aire ouverte
- Accès 24/7
- Entièrement aménagé comme Bureau standard
- Convient pour 4 à 12 personnes
- Espace en excellent état
- Espace d’angle
- Deuxième étage avec balcons Juliet
- Espace salle de pause sur le comptoir de l'évier
| Espace | Surface | Durée | Loyer | Type de bien | Aménagement | Disponible |
| 1er étage, bureau 100 | 543 m² | Négociable | 190,50 € /m²/an 15,87 € /m²/mois 103 443 € /an 8 620 € /mois | Bureau | - | Maintenant |
| 2e étage, bureau 210 | 129 m² | 1-3 Ans | 190,50 € /m²/an 15,87 € /m²/mois 24 494 € /an 2 041 € /mois | Bureau | Construction achevée | Maintenant |
1255 S Military Trl - 1er étage – Bureau 100
1255 S Military Trl - 2e étage – Bureau 210
- Espace
- Surface
- Durée
- Loyer
- Type de bien
- Aménagement
- Disponible
First Floor Office Suite with immediate private access off of parking lot. Corner Unit with lot of windows for natural light, new carpet, paint and open area with counter with sink and break area.
- Le loyer ne comprend pas les services publics, les frais immobiliers ou les services de l’immeuble.
- Principalement open space
- 3 bureaux privés
- Espace en excellent état
- Espace d’angle
- Open space
- Separate Private Entrance and Common Area Entrance
- First Floor Easy Access
- Partiellement aménagé comme Centre d’appels
- Convient pour 3 à 8 personnes
- Plafonds finis: 2,59 mètres
- Entièrement moquetté
- Lumière naturelle
- Quick Access to All Highways
- Nearby Publix & Walgreens Anchored Retail Center
8 perimeter window offices, full size conference room, eat-in kitchen, lots of open area for workstations.
- Le loyer ne comprend pas les services publics, les frais immobiliers ou les services de l’immeuble.
- Convient pour 10 à 32 personnes
- Espace en excellent état
- Accès rapide à toutes les autoroutes
- Centre commercial à proximité de Publix & Walgreens Anchored
- Principalement open space
- Plafonds finis: 2,59 mètres
- Lumière naturelle
- Étage complet avec espace pour agrandissement
| Espace | Surface | Durée | Loyer | Type de bien | Aménagement | Disponible |
| 1er étage, bureau 150 | 82 m² | 1-3 Ans | 190,50 € /m²/an 15,87 € /m²/mois 15 680 € /an 1 307 € /mois | Bureaux/Médical | Construction partielle | Maintenant |
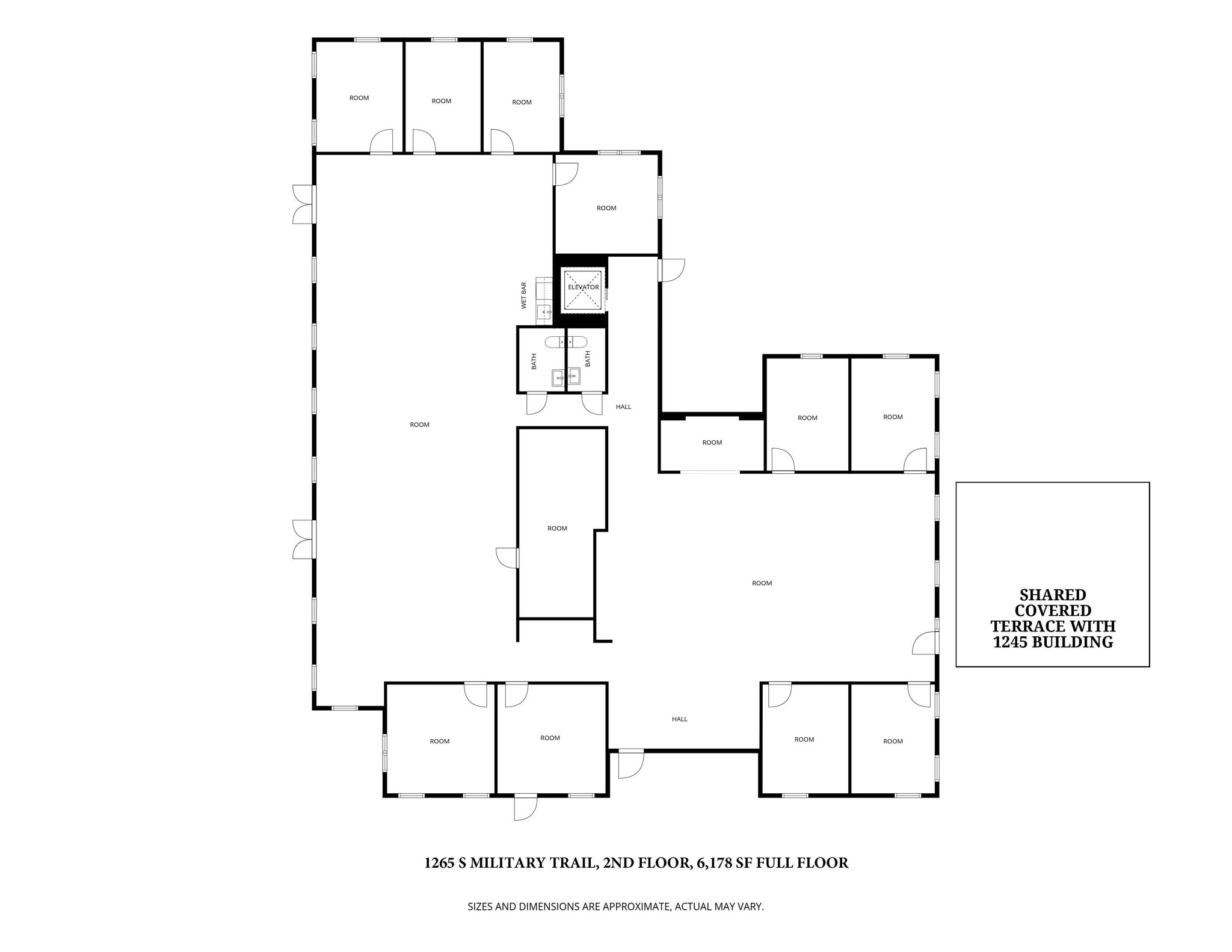
| 2e étage, bureau 200 | 370 m² | 1-3 Ans | 190,50 € /m²/an 15,87 € /m²/mois 70 419 € /an 5 868 € /mois | Bureaux/Médical | Construction partielle | Maintenant |
1265 S Military Trl - 1er étage – Bureau 150
1265 S Military Trl - 2e étage – Bureau 200
1255 S Military Trl - 1er étage – Bureau 100
| Surface | 543 m² |
| Durée | Négociable |
| Loyer | 190,50 € /m²/an |
| Type de bien | Bureau |
| Aménagement | - |
| Disponible | Maintenant |
Turnkey full first floor build-out! Eight perimeter window offices, conference room, kitchen area and open area for work stations.
- Le loyer ne comprend pas les services publics, les frais immobiliers ou les services de l’immeuble.
- Convient pour 15 à 47 personnes
- Flexible Lease Terms
- Lots of Natural Light and First Floor Easy Access
- Fully Turnkey Space in Excellent Condition
1255 S Military Trl - 2e étage – Bureau 210
| Surface | 129 m² |
| Durée | 1-3 Ans |
| Loyer | 190,50 € /m²/an |
| Type de bien | Bureau |
| Aménagement | Construction achevée |
| Disponible | Maintenant |
Nicely built out office suite with 3 private offices, open area for work stations and breakroom area with counter sink and built-in cabinetry. Juliet balconies and corner unit with a lot of windows for natural light. Available for immediate occupancy
- Le loyer ne comprend pas les services publics, les frais immobiliers ou les services de l’immeuble.
- Entièrement aménagé comme Bureau standard
- Principalement open space
- Convient pour 4 à 12 personnes
- 3 bureaux privés
- Espace en excellent état
- Balcon
- Espace d’angle
- Hauts plafonds
- Deuxième étage avec balcons Juliet
- Superbe aménagement avec bureaux privés et aire ouverte
- Espace salle de pause sur le comptoir de l'évier
- Accès 24/7
1265 S Military Trl - 1er étage – Bureau 150
| Surface | 82 m² |
| Durée | 1-3 Ans |
| Loyer | 190,50 € /m²/an |
| Type de bien | Bureaux/Médical |
| Aménagement | Construction partielle |
| Disponible | Maintenant |
First Floor Office Suite with immediate private access off of parking lot. Corner Unit with lot of windows for natural light, new carpet, paint and open area with counter with sink and break area.
- Le loyer ne comprend pas les services publics, les frais immobiliers ou les services de l’immeuble.
- Partiellement aménagé comme Centre d’appels
- Principalement open space
- Convient pour 3 à 8 personnes
- 3 bureaux privés
- Plafonds finis: 2,59 mètres
- Espace en excellent état
- Entièrement moquetté
- Espace d’angle
- Lumière naturelle
- Open space
- Quick Access to All Highways
- Separate Private Entrance and Common Area Entrance
- Nearby Publix & Walgreens Anchored Retail Center
- First Floor Easy Access
1265 S Military Trl - 2e étage – Bureau 200
| Surface | 370 m² |
| Durée | 1-3 Ans |
| Loyer | 190,50 € /m²/an |
| Type de bien | Bureaux/Médical |
| Aménagement | Construction partielle |
| Disponible | Maintenant |
8 perimeter window offices, full size conference room, eat-in kitchen, lots of open area for workstations.
- Le loyer ne comprend pas les services publics, les frais immobiliers ou les services de l’immeuble.
- Principalement open space
- Convient pour 10 à 32 personnes
- Plafonds finis: 2,59 mètres
- Espace en excellent état
- Lumière naturelle
- Accès rapide à toutes les autoroutes
- Étage complet avec espace pour agrandissement
- Centre commercial à proximité de Publix & Walgreens Anchored
Vue d’ensemble du parc
Complexe de trois bâtiments avec cour magnifiquement aménagée. Beaucoup de places de stationnement, Publix à proximité, magasins de détail, restaurants, restauration rapide et à quelques minutes des principales autoroutes. Plafonnement à 100 % des dépenses du CAM, y compris l'électricité des locataires, le concierge dans les suites, l'entretien, la réparation et le remplacement des systèmes CVC.
- Accès 24 h/24
- Cour
- CVC contrôlé par l’occupant
- Balcon
Présenté par
1245 - 1265 S Military Trl - The Commons | Deerfield Beach, FL 33442
Hum, une erreur s’est produite lors de l’envoi de votre message. Veuillez réessayer.
Merci ! Votre message a été envoyé.



