Connectez-vous/S’inscrire
Votre e-mail a été envoyé.
PDE Commercial Center 12301 NW 116th Ave Industriel/Logistique | 465–1 254 m² | À louer | Medley, FL 33178



Certaines informations ont été traduites automatiquement.
Caractéristiques
Hauteur libre
7,92 m
Portes de quai de chargement extérieures
3
Tous les espaces disponibles(2)
Afficher les loyers en
- Espace
- Surface
- Durée
- Loyer
- Type de bien
- Aménagement
- Disponible
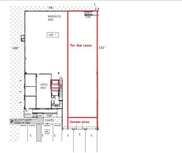
This is a sublease, shared space and the term is negotiable. Actual warehouse is 9,300 square feet.
- Comprend 46 m² d’espace de bureau dédié
- 3 quais de chargement
- Connectivité Wi-Fi
- Lumière naturelle
- Espace en excellent état
- Climatisation centrale
- Éclairage d’urgence
- Partial Turnpike Frontage
8,500 SF, 1,115 SF OFFICE, 1,115 SF MEZZANINE, 3 DOCK HEIGHT DOORS
- Comprend 103 m² d’espace de bureau dédié
- 3 quais de chargement
- Toilettes privées
- Lumière naturelle
- Espace en excellent état
- Climatisation centrale
- Éclairage d’urgence
- PARTIAL TURNPIKE FRONTAGE
| Espace | Surface | Durée | Loyer | Type de bien | Aménagement | Disponible |
| 1er étage – 101 | 465 m² | Négociable | 165,25 € /m²/an 13,77 € /m²/mois 76 761 € /an 6 397 € /mois | Industriel/Logistique | Construction achevée | Maintenant |
| 1er étage – 103 | 790 m² | Négociable | Sur demande Sur demande Sur demande Sur demande | Industriel/Logistique | Construction achevée | 30/09/2026 |
1er étage – 101
| Surface |
| 465 m² |
| Durée |
| Négociable |
| Loyer |
| 165,25 € /m²/an 13,77 € /m²/mois 76 761 € /an 6 397 € /mois |
| Type de bien |
| Industriel/Logistique |
| Aménagement |
| Construction achevée |
| Disponible |
| Maintenant |
1er étage – 103
| Surface |
| 790 m² |
| Durée |
| Négociable |
| Loyer |
| Sur demande Sur demande Sur demande Sur demande |
| Type de bien |
| Industriel/Logistique |
| Aménagement |
| Construction achevée |
| Disponible |
| 30/09/2026 |
1 sur 5
Vidéos
Visite extérieure 3D Matterport
Visite 3D
Photos
Street view
Rue
Carte
1er étage – 101
| Surface | 465 m² |
| Durée | Négociable |
| Loyer | 165,25 € /m²/an |
| Type de bien | Industriel/Logistique |
| Aménagement | Construction achevée |
| Disponible | Maintenant |
This is a sublease, shared space and the term is negotiable. Actual warehouse is 9,300 square feet.
- Comprend 46 m² d’espace de bureau dédié
- Espace en excellent état
- 3 quais de chargement
- Climatisation centrale
- Connectivité Wi-Fi
- Éclairage d’urgence
- Lumière naturelle
- Partial Turnpike Frontage
1 sur 4
Vidéos
Visite extérieure 3D Matterport
Visite 3D
Photos
Street view
Rue
Carte
1er étage – 103
| Surface | 790 m² |
| Durée | Négociable |
| Loyer | Sur demande |
| Type de bien | Industriel/Logistique |
| Aménagement | Construction achevée |
| Disponible | 30/09/2026 |
8,500 SF, 1,115 SF OFFICE, 1,115 SF MEZZANINE, 3 DOCK HEIGHT DOORS
- Comprend 103 m² d’espace de bureau dédié
- Espace en excellent état
- 3 quais de chargement
- Climatisation centrale
- Toilettes privées
- Éclairage d’urgence
- Lumière naturelle
- PARTIAL TURNPIKE FRONTAGE
Aperçu du bien
Partial Turnpike Frontage
Faits sur l’installation distribution
Surface de l’immeuble
6 308 m²
Surface du lot
1,00 ha
Année de construction
2021
Développement et livraisons
Béton armé
Terrain de camion
36,58 m
Système de sprinkler
ESFR
Alimentation électrique
Volts: 208 Phase: 3
Zonage
M-1 - Quartier Industriel
Occupants
- Étage
- Nom de l’occupant
- Secteur d’activité
- 1er
- CasAmerica Marine
- Exploitation minière, carrière et extraction de pétrole et de gaz
- 1er
- Feiya America Inc
- Grossiste
- 1er
- In Group Solutions LLC
- Services
- 1er
- Royalty Logistics, Inc.
- Transport et entreposage
- 1er
- Snif-Snax LTD
- Services
- 1er
- TDA.
- Manufacture
- 1er
- W.B. Mason Co Inc
- Services
1 1
Somewhat walkable
20/100
Exceptionally drivable
90/100
Somewhat bikeable
30/100
1 sur 9
Vidéos
Visite extérieure 3D Matterport
Visite 3D
Photos
Street view
Rue
Carte
1 sur 1
Présenté par
PDE Commerce Center
PDE Commercial Center | 12301 NW 116th Ave
Vous êtes déjà membre ? Connectez-vous
Hum, une erreur s’est produite lors de l’envoi de votre message. Veuillez réessayer.
Merci ! Votre message a été envoyé.






