Votre e-mail a été envoyé.
Certaines informations ont été traduites automatiquement.
INFORMATIONS PRINCIPALES SUR L'INVESTISSEMENT
- Less than 10 minutes from I-25 with easy access to HWY 287
- End-cap unit
- Climate controlled warehouse
- Zoned I (Developing Industrial)
INFORMATIONS SUR L’IMMEUBLE
CARACTÉRISTIQUES
- Accès 24 h/24
- Signalisation
1 LOT DISPONIBLE
Lot 123
| Surface du lot | 205 m² | Usage du lot en coprop. | Industriel/Logistique |
| Prix | 357 276 € | Type de vente | Investissement ou propriétaire occupant |
| Prix par m² | 1 741,71 € | Référence cadastrale/ID de parcelle | 95234-35-008 |
| Surface du lot | 205 m² |
| Prix | 357 276 € |
| Prix par m² | 1 741,71 € |
| Usage du lot en coprop. | Industriel/Logistique |
| Type de vente | Investissement ou propriétaire occupant |
| Référence cadastrale/ID de parcelle | 95234-35-008 |
DESCRIPTION
Espace flexible zoné pour l'industrie légère qui présente de manière professionnelle et convient aux professionnels, à la vente au détail, aux services, à la distribution, au commerce électronique, etc. Situé dans un parc industriel léger et sûr avec un bon parking et un accès pratique à l'Interstate 25 et à l'US 287. L'espace d'entrepôt dispose d'une grande porte enroulable et d'un accès pour les semi-remorques. L'ensemble des bureaux et des entrepôts est chauffé et climatisé avec un système CVC séparé pour l'entrepôt. Pratique pour rejoindre les restaurants, les divertissements et les parcs locaux du centre-ville dans une région en pleine croissance. Des services publics raisonnables et de multiples options de fournisseurs d'accès à Internet avec la construction de la fibre municipale en ce moment.
NOTES SUR LA VENTE
Well situated condo project ideal for a variety of industrial and flex users.
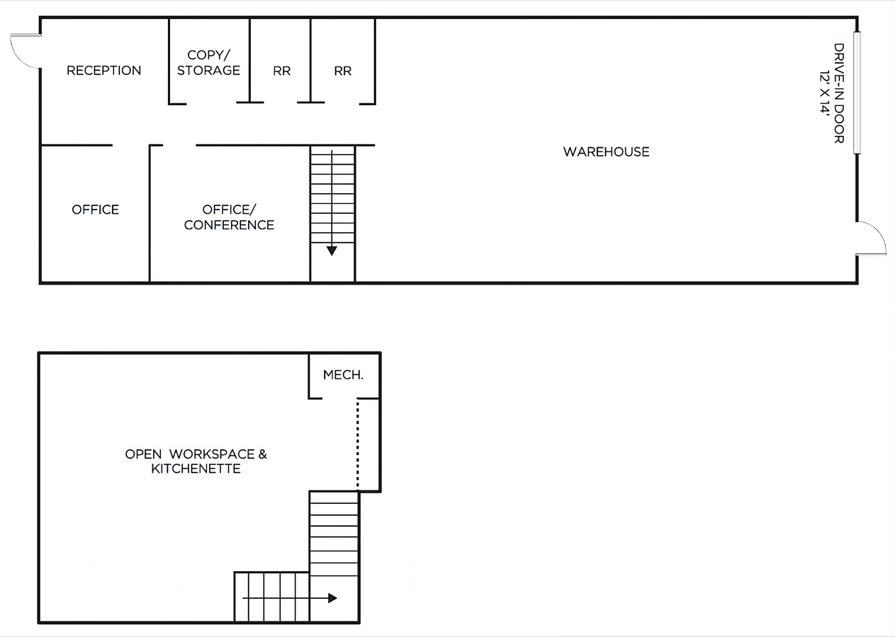
Floor Plan 123 12th Street SW
Climate controlled warehouse
Drive-in door
Second level with kitchenette
Large office
Interior restroom
INFORMATIONS IMPORTANTES SUR L’OCCUPANT Cliquez ici pour accéder à
| OCCUPANT | pi² OCCUPÉS | DATE DE FIN DE BAIL |
|---|---|---|
| Kelvin, Inc. |
-
|
Jan 0000
|
Présenté par
123-151 12th St SW
Hum, une erreur s’est produite lors de l’envoi de votre message. Veuillez réessayer.
Merci ! Votre message a été envoyé.




