Votre e-mail a été envoyé.
Kirkwood Office Center 12166 Old Big Bend Rd Bureau 4 057 m² 89 % Loué À vendre Kirkwood, MO 63122 4 095 995 € (1 009,59 €/m²) Taux de capitalisation 8,75 %



Certaines informations ont été traduites automatiquement.
RÉSUMÉ ANALYTIQUE
Originally built in 1972 and extensively renovated in 2000, the property features updated lobbies, hallways, and typical office finishes that appeal to modern professional tenants. The building is located in a quiet, low-congestion neighborhood, enhancing its appeal for businesses seeking a calm yet connected environment. With up to 12,696 square feet available for an owner-user, the asset also supports partial occupancy while generating income from a diverse tenant mix.
The current rent roll includes counseling services, marketing firms, tech repair, and professional offices, with a pro-forma net operating income of $417,589 and an 8.75% cap rate. The building’s layout includes suites ranging from 423 to 4,079 square feet, offering flexibility for future leasing strategies.
INFORMATIONS SUR L’IMMEUBLE
DISPONIBILITÉ DE L’ESPACE
- ESPACE
- SURFACE
- TYPE DE BIEN
- ÉTAT
- DISPONIBLE
Quartier calme avec faible encombrement. Personnel de maintenance sur site.
Peut être combiné avec le Ste 105. Quartier calme avec faible encombrement. Personnel de maintenance sur site.
Quartier calme avec faible encombrement. Personnel de maintenance sur site.
Quartier calme avec faible encombrement. Personnel de maintenance sur site.
Quartier calme avec faible encombrement. Personnel de maintenance sur site.
Quartier calme avec faible encombrement. Personnel de maintenance sur site.
Quartier calme avec faible encombrement. Personnel de maintenance sur site.
| Espace | Surface | Type de bien | État | Disponible |
| 1er Ét.-bureau 100 | 329 m² | Bureau | Construction achevée | 30 jours |
| 1er Ét.-bureau 101 | 118 m² | Bureau | Construction achevée | Maintenant |
| 2e Ét.-bureau 205 | 118 m² | Bureau | Construction achevée | 30 jours |
| 2e Ét.-bureau 208 | 122 m² | Bureau | Construction achevée | Maintenant |
| 3e Ét.-bureau 300E | 224 m² | Bureau | Construction achevée | Maintenant |
| 3e Ét.-bureau 307 | 98 m² | Bureau | Construction achevée | 30 jours |
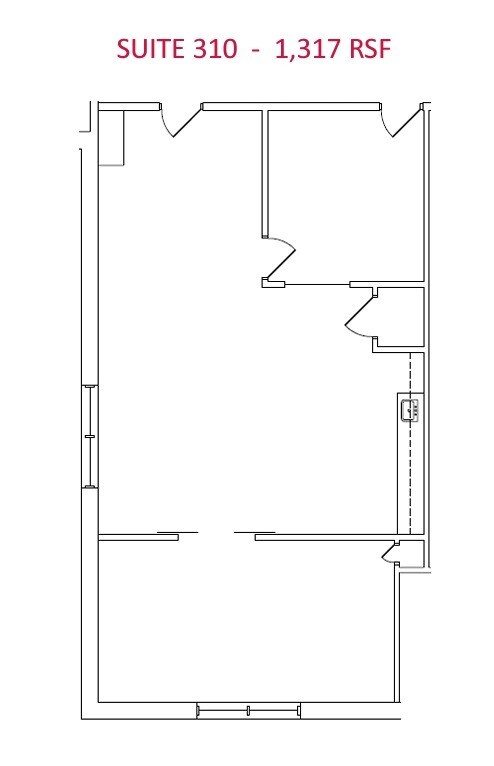
| 3e Ét.-bureau 310 | 122 m² | Bureau | Construction partielle | 30 jours |
1er Ét.-bureau 100
| Surface |
| 329 m² |
| Type de bien |
| Bureau |
| État |
| Construction achevée |
| Disponible |
| 30 jours |
1er Ét.-bureau 101
| Surface |
| 118 m² |
| Type de bien |
| Bureau |
| État |
| Construction achevée |
| Disponible |
| Maintenant |
2e Ét.-bureau 205
| Surface |
| 118 m² |
| Type de bien |
| Bureau |
| État |
| Construction achevée |
| Disponible |
| 30 jours |
2e Ét.-bureau 208
| Surface |
| 122 m² |
| Type de bien |
| Bureau |
| État |
| Construction achevée |
| Disponible |
| Maintenant |
3e Ét.-bureau 300E
| Surface |
| 224 m² |
| Type de bien |
| Bureau |
| État |
| Construction achevée |
| Disponible |
| Maintenant |
3e Ét.-bureau 307
| Surface |
| 98 m² |
| Type de bien |
| Bureau |
| État |
| Construction achevée |
| Disponible |
| 30 jours |
3e Ét.-bureau 310
| Surface |
| 122 m² |
| Type de bien |
| Bureau |
| État |
| Construction partielle |
| Disponible |
| 30 jours |
1er Ét.-bureau 100
| Surface | 329 m² |
| Type de bien | Bureau |
| État | Construction achevée |
| Disponible | 30 jours |
Quartier calme avec faible encombrement. Personnel de maintenance sur site.
1er Ét.-bureau 101
| Surface | 118 m² |
| Type de bien | Bureau |
| État | Construction achevée |
| Disponible | Maintenant |
Peut être combiné avec le Ste 105. Quartier calme avec faible encombrement. Personnel de maintenance sur site.
2e Ét.-bureau 205
| Surface | 118 m² |
| Type de bien | Bureau |
| État | Construction achevée |
| Disponible | 30 jours |
Quartier calme avec faible encombrement. Personnel de maintenance sur site.
2e Ét.-bureau 208
| Surface | 122 m² |
| Type de bien | Bureau |
| État | Construction achevée |
| Disponible | Maintenant |
Quartier calme avec faible encombrement. Personnel de maintenance sur site.
3e Ét.-bureau 300E
| Surface | 224 m² |
| Type de bien | Bureau |
| État | Construction achevée |
| Disponible | Maintenant |
Quartier calme avec faible encombrement. Personnel de maintenance sur site.
3e Ét.-bureau 307
| Surface | 98 m² |
| Type de bien | Bureau |
| État | Construction achevée |
| Disponible | 30 jours |
Quartier calme avec faible encombrement. Personnel de maintenance sur site.
3e Ét.-bureau 310
| Surface | 122 m² |
| Type de bien | Bureau |
| État | Construction partielle |
| Disponible | 30 jours |
Quartier calme avec faible encombrement. Personnel de maintenance sur site.
TAXES FONCIÈRES
| Numéro de parcelle | 24N-12-0792 | Évaluation des aménagements | 648 960 € |
| Évaluation du terrain | 309 769 € | Évaluation totale | 958 729 € |
TAXES FONCIÈRES
Présenté par
Kirkwood Office Center | 12166 Old Big Bend Rd
Hum, une erreur s’est produite lors de l’envoi de votre message. Veuillez réessayer.
Merci ! Votre message a été envoyé.














