Votre e-mail a été envoyé.
Magnolia Circle Industrial Park Riverside, CA 92503 Espace disponible | 335–3 316 m² | Industriel/Logistique



Certaines informations ont été traduites automatiquement.
Informations principales sur le parc
- Excellent accès à l'autoroute
- Stationnement abondant et larges allées d'accès pour les camions
- The site benefits from excellent freeway access and strong regional connectivity.
- Entre Pierce St/Riverwalk et McKinley
- À la frontière entre Corona/Riverside et les services publics de Riverside
Faits sur le parc
| Espace total disponible | 3 316 m² | Type de parc | Parc industriel |
| Espace total disponible | 3 316 m² |
| Type de parc | Parc industriel |
Tous les espaces disponibles(5)
Afficher les loyers en
- Espace
- Surface
- Durée
- Loyer
- Type de bien
- Aménagement
- Disponible
Reception, 2 offices, 2 restrooms, 1 shop restroom, lunch room, closet, 2 GL doors. Teaser Rate - $0.87/SF Yr 1; $1.05/SF Yr 2; $1.10/SF Yr 3 (Shorter Deals Offered)
- Il est possible que le loyer annoncé ne comprenne pas certains services publics, services d’immeuble et frais immobiliers.
- Aire de réception
- 2 accès plain-pied
- Toilettes privées
| Espace | Surface | Durée | Loyer | Type de bien | Aménagement | Disponible |
| 1er étage – 11B | 1 073 m² | 1-5 Ans | 95,84 € /m²/an 7,99 € /m²/mois 102 809 € /an 8 567 € /mois | Industriel/Logistique | Construction partielle | Maintenant |
12155 Magnolia Ave - 1er étage – 11B
- Espace
- Surface
- Durée
- Loyer
- Type de bien
- Aménagement
- Disponible
Multiple Offices, 2 Restrooms, 3 GL Doors, Large, Fenced Yard Area, Available
- Il est possible que le loyer annoncé ne comprenne pas certains services publics, services d’immeuble et frais immobiliers.
- Toilettes privées
- 3 accès plain-pied
- Cour
| Espace | Surface | Durée | Loyer | Type de bien | Aménagement | Disponible |
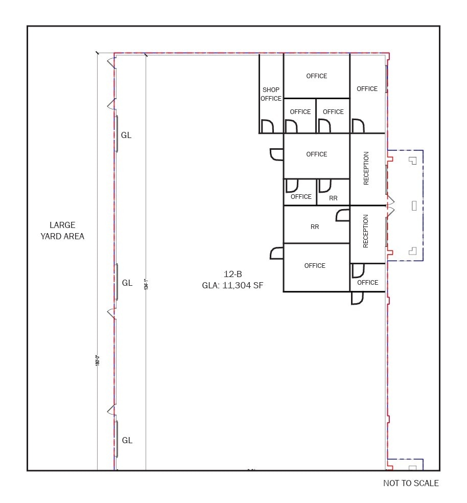
| 1er étage – 12B | 1 050 m² | 1-5 Ans | 115,67 € /m²/an 9,64 € /m²/mois 121 479 € /an 10 123 € /mois | Industriel/Logistique | Construction achevée | Maintenant |
12155 Magnolia Ave - 1er étage – 12B
- Espace
- Surface
- Durée
- Loyer
- Type de bien
- Aménagement
- Disponible
Reception, 1 Office, 1 Restroom, 1 GL Door, Available 4/1/2026
- Il est possible que le loyer annoncé ne comprenne pas certains services publics, services d’immeuble et frais immobiliers.
- Aire de réception
- 1 accès plain-pied
- Toilettes privées
| Espace | Surface | Durée | Loyer | Type de bien | Aménagement | Disponible |
| 1er étage – 2A-1 | 507 m² | 1-5 Ans | 121,18 € /m²/an 10,10 € /m²/mois 61 470 € /an 5 123 € /mois | Industriel/Logistique | Construction achevée | Maintenant |
12155 Magnolia Ave - 1er étage – 2A-1
- Espace
- Surface
- Durée
- Loyer
- Type de bien
- Aménagement
- Disponible
This 3,601 square foot unit features a reception area, two private offices, a conference room, and three restrooms. The space includes one ground-level door and is configured to accommodate both office and light industrial uses.
- Il est possible que le loyer annoncé ne comprenne pas certains services publics, services d’immeuble et frais immobiliers.
- Toilettes privées
- Multiple restrooms included
- 1 accès plain-pied
- Conference room and offices
| Espace | Surface | Durée | Loyer | Type de bien | Aménagement | Disponible |
| 1er étage – 6-G/H | 335 m² | Négociable | 121,18 € /m²/an 10,10 € /m²/mois 40 541 € /an 3 378 € /mois | Industriel/Logistique | Construction achevée | 01/06/2026 |
12155 Magnolia Ave - 1er étage – 6-G/H
- Espace
- Surface
- Durée
- Loyer
- Type de bien
- Aménagement
- Disponible
This 3,780 square foot unit includes a reception area, three private offices, one restroom, and one ground-level door. The layout supports a mix of office and warehouse functionality.
- Il est possible que le loyer annoncé ne comprenne pas certains services publics, services d’immeuble et frais immobiliers.
- Aire de réception
- Three private offices
- 1 accès plain-pied
- Toilettes privées
- Reception and warehouse space
| Espace | Surface | Durée | Loyer | Type de bien | Aménagement | Disponible |
| 1er étage – 7-D | 351 m² | Négociable | 121,18 € /m²/an 10,10 € /m²/mois 42 556 € /an 3 546 € /mois | Industriel/Logistique | Construction achevée | 01/09/2026 |
12155 Magnolia Ave - 1er étage – 7-D
12155 Magnolia Ave - 1er étage – 11B
| Surface | 1 073 m² |
| Durée | 1-5 Ans |
| Loyer | 95,84 € /m²/an |
| Type de bien | Industriel/Logistique |
| Aménagement | Construction partielle |
| Disponible | Maintenant |
Reception, 2 offices, 2 restrooms, 1 shop restroom, lunch room, closet, 2 GL doors. Teaser Rate - $0.87/SF Yr 1; $1.05/SF Yr 2; $1.10/SF Yr 3 (Shorter Deals Offered)
- Il est possible que le loyer annoncé ne comprenne pas certains services publics, services d’immeuble et frais immobiliers.
- 2 accès plain-pied
- Aire de réception
- Toilettes privées
12155 Magnolia Ave - 1er étage – 12B
| Surface | 1 050 m² |
| Durée | 1-5 Ans |
| Loyer | 115,67 € /m²/an |
| Type de bien | Industriel/Logistique |
| Aménagement | Construction achevée |
| Disponible | Maintenant |
Multiple Offices, 2 Restrooms, 3 GL Doors, Large, Fenced Yard Area, Available
- Il est possible que le loyer annoncé ne comprenne pas certains services publics, services d’immeuble et frais immobiliers.
- 3 accès plain-pied
- Toilettes privées
- Cour
12155 Magnolia Ave - 1er étage – 2A-1
| Surface | 507 m² |
| Durée | 1-5 Ans |
| Loyer | 121,18 € /m²/an |
| Type de bien | Industriel/Logistique |
| Aménagement | Construction achevée |
| Disponible | Maintenant |
Reception, 1 Office, 1 Restroom, 1 GL Door, Available 4/1/2026
- Il est possible que le loyer annoncé ne comprenne pas certains services publics, services d’immeuble et frais immobiliers.
- 1 accès plain-pied
- Aire de réception
- Toilettes privées
12155 Magnolia Ave - 1er étage – 6-G/H
| Surface | 335 m² |
| Durée | Négociable |
| Loyer | 121,18 € /m²/an |
| Type de bien | Industriel/Logistique |
| Aménagement | Construction achevée |
| Disponible | 01/06/2026 |
This 3,601 square foot unit features a reception area, two private offices, a conference room, and three restrooms. The space includes one ground-level door and is configured to accommodate both office and light industrial uses.
- Il est possible que le loyer annoncé ne comprenne pas certains services publics, services d’immeuble et frais immobiliers.
- 1 accès plain-pied
- Toilettes privées
- Conference room and offices
- Multiple restrooms included
12155 Magnolia Ave - 1er étage – 7-D
| Surface | 351 m² |
| Durée | Négociable |
| Loyer | 121,18 € /m²/an |
| Type de bien | Industriel/Logistique |
| Aménagement | Construction achevée |
| Disponible | 01/09/2026 |
This 3,780 square foot unit includes a reception area, three private offices, one restroom, and one ground-level door. The layout supports a mix of office and warehouse functionality.
- Il est possible que le loyer annoncé ne comprenne pas certains services publics, services d’immeuble et frais immobiliers.
- 1 accès plain-pied
- Aire de réception
- Toilettes privées
- Three private offices
- Reception and warehouse space
Sélectionner des occupants à ce bien
- Étage
- Nom de l’occupant
- Secteur d’activité
- 1er
- A&G Electronics
- Grossiste
- 1er
- Airbag Master Tech
- Services
- 1er
- F X Signs
- Manufacture
- 1er
- Grand Slam Hats
- Manufacture
- 1er
- HCI
- Services professionnels, scientifiques et techniques
- 1er
- Jse Office Furniture Service Inc
- Services
- 1er
- Litwin BIM Consultants
- Services professionnels, scientifiques et techniques
- 1er
- Professional Pretreat-Termite
- Services
- 1er
- Riverside Ghanain SDA Church
- Services
- 1er
- TC Quality Machining
- Manufacture
Vue d’ensemble du parc
Parc d'affaires industriel et de bureaux à locataires multiples.
Présenté par
Magnolia Circle Industrial Park | Riverside, CA 92503
Hum, une erreur s’est produite lors de l’envoi de votre message. Veuillez réessayer.
Merci ! Votre message a été envoyé.








