Votre e-mail a été envoyé.
Certaines informations ont été traduites automatiquement.
Informations principales sur le parc
- Des décors semblables à ceux d'un parc avec un aménagement paysager moderne résistant à la sécheresse
- Accès immédiat aux autoroutes 405 et 55
- Espaces de bureaux et suites d'entrepôt soigneusement conçus avec lucarnes
Faits sur le parc
| Espace total disponible | 2 499 m² | Type de parc | Parc de bureaux |
| Espace total disponible | 2 499 m² |
| Type de parc | Parc de bureaux |
Tous les espaces disponibles(10)
Afficher les loyers en
- Espace
- Surface
- Durée
- Loyer
- Type de bien
- Aménagement
- Disponible
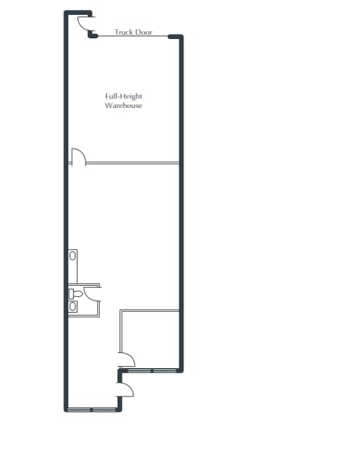
Reception - 5 Window Offices - 3 Interior Offices - Conference Room - 3 Restrooms - Kitchen - Storage Closet - Open Work Area - Ground-Level Truck Door - Approximately 1,023 sq. ft. of Full-Height Warehouse - Part of a Professionally Managed Business Park
- Le loyer ne comprend pas les services publics, les frais immobiliers ou les services de l’immeuble.
- Aire de réception
- Ground-Level Truck Door -
- Comprend 324 m² d’espace de bureau dédié
- Toilettes privées
- Approx 1,023 sq. ft. of Full-Height Warehouse
| Espace | Surface | Durée | Loyer | Type de bien | Aménagement | Disponible |
| 1er étage – A | 419 m² | 3 Ans | 192,79 € /m²/an 16,07 € /m²/mois 80 868 € /an 6 739 € /mois | Local d’activités | - | Maintenant |
18251 W McDurmott - 1er étage – A
- Espace
- Surface
- Durée
- Loyer
- Type de bien
- Aménagement
- Disponible
Reception - 5 Window Offices - Interior Office - Conference Room - Break Area - 3 Storage Closets - Large Open Work Area Part of a Professionally Managed Business Park
- Le loyer comprend les services publics, les services de l’immeuble et les frais immobiliers.
- Salles de conférence
- Conference Room -
- Convient pour 12 à 38 personnes
- Aire de réception
- Break Area -
Reception - Window Office - 3 Interior Offices - Conference Room - Kitchen - Storage Room - Large Open Work Area - Part of a Professionally Managed Business Park
- Le loyer comprend les services publics, les services de l’immeuble et les frais immobiliers.
- 1 salle de conférence
- Kitchen
- Convient pour 8 à 25 personnes
- Aire de réception
- Storage Room
Reception - 4 Window Offices - Conference Room - Kitchen - Server Closet - Open Work Area - Part of a Professionally Managed Business Park
- Convient pour 7 à 23 personnes
- Aire de réception
- Server Closet
- Kitchen
- Salles de conférence
- Open space
- 4 Window Offices
| Espace | Surface | Durée | Loyer | Type de bien | Aménagement | Disponible |
| 1er étage, bureau A | 439 m² | 3 Ans | Sur demande Sur demande Sur demande Sur demande | Bureau | - | Maintenant |
| 1er étage, bureau B | 286 m² | 3 Ans | Sur demande Sur demande Sur demande Sur demande | Bureau | - | 01/05/2026 |
| 2e étage, bureau H | 260 m² | Négociable | Sur demande Sur demande Sur demande Sur demande | Bureau | - | Maintenant |
1200 Main St - 1er étage – Bureau A
1200 Main St - 1er étage – Bureau B
1200 Main St - 2e étage – Bureau H
- Espace
- Surface
- Durée
- Loyer
- Type de bien
- Aménagement
- Disponible
Reception - 2 Window Offices - Interior Office - Restroom - Coffee Bar - Open Work Area - Part of a Professionally Managed Business Park
- Le loyer ne comprend pas les services publics, les frais immobiliers ou les services de l’immeuble.
- Aire de réception
- 2 Window Offices - Interior Office
- Comprend 135 m² d’espace de bureau dédié
- Toilettes privées
- Coffee Bar
| Espace | Surface | Durée | Loyer | Type de bien | Aménagement | Disponible |
| 1er étage – A1 | 135 m² | 3 Ans | 192,79 € /m²/an 16,07 € /m²/mois 26 007 € /an 2 167 € /mois | Local d’activités | - | Maintenant |
18271 W McDurmott - 1er étage – A1
- Espace
- Surface
- Durée
- Loyer
- Type de bien
- Aménagement
- Disponible
Reception - 5 Window Offices - 2 Interior Offices - 3 Restrooms - Kitchen - Large Open Work Area - Ground-Level Truck Door - Approximately 800 sq. ft. of Full-Height Warehouse - Part of a Professionally Managed Business Park
- Le loyer ne comprend pas les services publics, les frais immobiliers ou les services de l’immeuble.
- Aire de réception
- Ground-Level Truck Door
- Comprend 276 m² d’espace de bureau dédié
- Toilettes privées
- Approximately 800 sq. ft. of Full-Height Warehouse
| Espace | Surface | Durée | Loyer | Type de bien | Aménagement | Disponible |
| 1er étage – D & E | 350 m² | 3-5 Ans | 181,77 € /m²/an 15,15 € /m²/mois 63 666 € /an 5 305 € /mois | Local d’activités | - | 01/05/2026 |
18200 W McDurmott - 1er étage – D & E
- Espace
- Surface
- Durée
- Loyer
- Type de bien
- Aménagement
- Disponible
Reception - 2 Window Offices - Conference Room - 2 Restrooms - Coffee Bar - Large Open Work Area - Ground-Level Truck Door - Approximately 528 sq. ft. of Full-Height Warehouse - Part of a Professionally Managed Business Park
- Le loyer ne comprend pas les services publics, les frais immobiliers ou les services de l’immeuble.
- Aire de réception
- Large Open Work Area -
- Comprend 145 m² d’espace de bureau dédié
- Toilettes privées
- Ground-Level Truck Door
Reception - Restroom - Storage Closet - Large Open Work Areas - Ground-Level Truck Door - Approximately 500 sq. ft. of Full-Height Warehouse - Part of a Professionally Managed Business Park
- Le loyer ne comprend pas les services publics, les frais immobiliers ou les services de l’immeuble.
- Aire de réception
- Ground-Level Truck Door
- Comprend 74 m² d’espace de bureau dédié
- Toilettes privées
- Large Open Work Areas
Reception - 2 Interior Offices - Restroom - Coffee Bar - Large Open Work Area - Part of a Professionally Managed Business Park
- Le loyer ne comprend pas les services publics, les frais immobiliers ou les services de l’immeuble.
- Aire de réception
- Coffee Bar -
- Convient pour 5 à 16 personnes
- Toilettes privées
- Large Open Work Area -
| Espace | Surface | Durée | Loyer | Type de bien | Aménagement | Disponible |
| 1er étage – F | 145 m² | 3 Ans | 192,79 € /m²/an 16,07 € /m²/mois 27 941 € /an 2 328 € /mois | Local d’activités | - | Maintenant |
| 1er étage – G | 121 m² | 3 Ans | 192,79 € /m²/an 16,07 € /m²/mois 23 284 € /an 1 940 € /mois | Local d’activités | - | Maintenant |
| 1er étage, bureau H | 181 m² | 3 Ans | 192,79 € /m²/an 16,07 € /m²/mois 34 926 € /an 2 911 € /mois | Bureau | - | Maintenant |
18226 W McDurmott - 1er étage – F
18226 W McDurmott - 1er étage – G
18226 W McDurmott - 1er étage – Bureau H
- Espace
- Surface
- Durée
- Loyer
- Type de bien
- Aménagement
- Disponible
Reception - Window Office - Interior Office - Restroom - Storage Room - Large Open Work Area - Ground-Level Truck Door - Approximately 696 sq. ft. of Full-Height Warehouse - Part of a Professionally Managed Business Park
- Le loyer ne comprend pas les services publics, les frais immobiliers ou les services de l’immeuble.
- Aire de réception
- Ground-Level Truck Door
- Comprend 97 m² d’espace de bureau dédié
- Toilettes privées
- Approximately 696 sq. ft. of Full-Height Warehouse
| Espace | Surface | Durée | Loyer | Type de bien | Aménagement | Disponible |
| 1er étage – F | 162 m² | 3 Ans | 192,79 € /m²/an 16,07 € /m²/mois 31 165 € /an 2 597 € /mois | Local d’activités | - | Maintenant |
18242 W McDurmott - 1er étage – F
18251 W McDurmott - 1er étage – A
| Surface | 419 m² |
| Durée | 3 Ans |
| Loyer | 192,79 € /m²/an |
| Type de bien | Local d’activités |
| Aménagement | - |
| Disponible | Maintenant |
Reception - 5 Window Offices - 3 Interior Offices - Conference Room - 3 Restrooms - Kitchen - Storage Closet - Open Work Area - Ground-Level Truck Door - Approximately 1,023 sq. ft. of Full-Height Warehouse - Part of a Professionally Managed Business Park
- Le loyer ne comprend pas les services publics, les frais immobiliers ou les services de l’immeuble.
- Comprend 324 m² d’espace de bureau dédié
- Aire de réception
- Toilettes privées
- Ground-Level Truck Door -
- Approx 1,023 sq. ft. of Full-Height Warehouse
1200 Main St - 1er étage – Bureau A
| Surface | 439 m² |
| Durée | 3 Ans |
| Loyer | Sur demande |
| Type de bien | Bureau |
| Aménagement | - |
| Disponible | Maintenant |
Reception - 5 Window Offices - Interior Office - Conference Room - Break Area - 3 Storage Closets - Large Open Work Area Part of a Professionally Managed Business Park
- Le loyer comprend les services publics, les services de l’immeuble et les frais immobiliers.
- Convient pour 12 à 38 personnes
- Salles de conférence
- Aire de réception
- Conference Room -
- Break Area -
1200 Main St - 1er étage – Bureau B
| Surface | 286 m² |
| Durée | 3 Ans |
| Loyer | Sur demande |
| Type de bien | Bureau |
| Aménagement | - |
| Disponible | 01/05/2026 |
Reception - Window Office - 3 Interior Offices - Conference Room - Kitchen - Storage Room - Large Open Work Area - Part of a Professionally Managed Business Park
- Le loyer comprend les services publics, les services de l’immeuble et les frais immobiliers.
- Convient pour 8 à 25 personnes
- 1 salle de conférence
- Aire de réception
- Kitchen
- Storage Room
1200 Main St - 2e étage – Bureau H
| Surface | 260 m² |
| Durée | Négociable |
| Loyer | Sur demande |
| Type de bien | Bureau |
| Aménagement | - |
| Disponible | Maintenant |
Reception - 4 Window Offices - Conference Room - Kitchen - Server Closet - Open Work Area - Part of a Professionally Managed Business Park
- Convient pour 7 à 23 personnes
- Salles de conférence
- Aire de réception
- Open space
- Server Closet
- 4 Window Offices
- Kitchen
18271 W McDurmott - 1er étage – A1
| Surface | 135 m² |
| Durée | 3 Ans |
| Loyer | 192,79 € /m²/an |
| Type de bien | Local d’activités |
| Aménagement | - |
| Disponible | Maintenant |
Reception - 2 Window Offices - Interior Office - Restroom - Coffee Bar - Open Work Area - Part of a Professionally Managed Business Park
- Le loyer ne comprend pas les services publics, les frais immobiliers ou les services de l’immeuble.
- Comprend 135 m² d’espace de bureau dédié
- Aire de réception
- Toilettes privées
- 2 Window Offices - Interior Office
- Coffee Bar
18200 W McDurmott - 1er étage – D & E
| Surface | 350 m² |
| Durée | 3-5 Ans |
| Loyer | 181,77 € /m²/an |
| Type de bien | Local d’activités |
| Aménagement | - |
| Disponible | 01/05/2026 |
Reception - 5 Window Offices - 2 Interior Offices - 3 Restrooms - Kitchen - Large Open Work Area - Ground-Level Truck Door - Approximately 800 sq. ft. of Full-Height Warehouse - Part of a Professionally Managed Business Park
- Le loyer ne comprend pas les services publics, les frais immobiliers ou les services de l’immeuble.
- Comprend 276 m² d’espace de bureau dédié
- Aire de réception
- Toilettes privées
- Ground-Level Truck Door
- Approximately 800 sq. ft. of Full-Height Warehouse
18226 W McDurmott - 1er étage – F
| Surface | 145 m² |
| Durée | 3 Ans |
| Loyer | 192,79 € /m²/an |
| Type de bien | Local d’activités |
| Aménagement | - |
| Disponible | Maintenant |
Reception - 2 Window Offices - Conference Room - 2 Restrooms - Coffee Bar - Large Open Work Area - Ground-Level Truck Door - Approximately 528 sq. ft. of Full-Height Warehouse - Part of a Professionally Managed Business Park
- Le loyer ne comprend pas les services publics, les frais immobiliers ou les services de l’immeuble.
- Comprend 145 m² d’espace de bureau dédié
- Aire de réception
- Toilettes privées
- Large Open Work Area -
- Ground-Level Truck Door
18226 W McDurmott - 1er étage – G
| Surface | 121 m² |
| Durée | 3 Ans |
| Loyer | 192,79 € /m²/an |
| Type de bien | Local d’activités |
| Aménagement | - |
| Disponible | Maintenant |
Reception - Restroom - Storage Closet - Large Open Work Areas - Ground-Level Truck Door - Approximately 500 sq. ft. of Full-Height Warehouse - Part of a Professionally Managed Business Park
- Le loyer ne comprend pas les services publics, les frais immobiliers ou les services de l’immeuble.
- Comprend 74 m² d’espace de bureau dédié
- Aire de réception
- Toilettes privées
- Ground-Level Truck Door
- Large Open Work Areas
18226 W McDurmott - 1er étage – Bureau H
| Surface | 181 m² |
| Durée | 3 Ans |
| Loyer | 192,79 € /m²/an |
| Type de bien | Bureau |
| Aménagement | - |
| Disponible | Maintenant |
Reception - 2 Interior Offices - Restroom - Coffee Bar - Large Open Work Area - Part of a Professionally Managed Business Park
- Le loyer ne comprend pas les services publics, les frais immobiliers ou les services de l’immeuble.
- Convient pour 5 à 16 personnes
- Aire de réception
- Toilettes privées
- Coffee Bar -
- Large Open Work Area -
18242 W McDurmott - 1er étage – F
| Surface | 162 m² |
| Durée | 3 Ans |
| Loyer | 192,79 € /m²/an |
| Type de bien | Local d’activités |
| Aménagement | - |
| Disponible | Maintenant |
Reception - Window Office - Interior Office - Restroom - Storage Room - Large Open Work Area - Ground-Level Truck Door - Approximately 696 sq. ft. of Full-Height Warehouse - Part of a Professionally Managed Business Park
- Le loyer ne comprend pas les services publics, les frais immobiliers ou les services de l’immeuble.
- Comprend 97 m² d’espace de bureau dédié
- Aire de réception
- Toilettes privées
- Ground-Level Truck Door
- Approximately 696 sq. ft. of Full-Height Warehouse
Plan du site
Vue d’ensemble du parc
Le centre d'affaires Main & Redhill est un établissement commercial à usage mixte composé de quatorze bâtiments flexibles d'un étage et d'un immeuble de bureaux de 2 étages totalisant 204 083 pieds carrés. L'établissement récemment rénové offre une excellente signalisation, un vaste paysage et un accès facile aux commodités de la « région ». Le centre d'affaires Main & Redhill est situé au cœur de la zone aéroportuaire, à l'intersection très visible de Main Street et Redhill Avenue.
Présenté par
Main and Redhill Business Center | Irvine, CA 92614
Hum, une erreur s’est produite lors de l’envoi de votre message. Veuillez réessayer.
Merci ! Votre message a été envoyé.























