Votre e-mail a été envoyé.
Hacienda Fair Center 1200-1238 N Hacienda Blvd Espace disponible | 115 m² | Local commercial | La Puente, CA 91744



Certaines informations ont été traduites automatiquement.
Informations principales
- Strategically positioned along N. Hacienda Blvd with strong daily traffic counts and excellent street visibility.
- Located within a dense residential population base with consistent consumer demand.
- Surrounded by a stable residential community and nearby employment drivers supporting daily foot traffic.
- Ideal for a range of uses including retail, medical, service-based businesses, and neighborhood-serving concepts.
- Easily accessible location with on-site parking supporting strong customer flow and tenant usability.
- Opportunity to lease or invest in a well-located retail asset with long-term upside in an infill Los Angeles submarket.
Disponibilité de l’espace (1)
Afficher le tarif en
- Espace
- Surface
- Durée
- Loyer
- Type de loyer
| Espace | Surface | Durée | Loyer | Type de loyer | ||
| 1er étage, bureau 15417 | 115 m² | Négociable | 324,99 € /m²/an 27,08 € /m²/mois 37 529 € /an 3 127 € /mois | Triple net (NNN) |
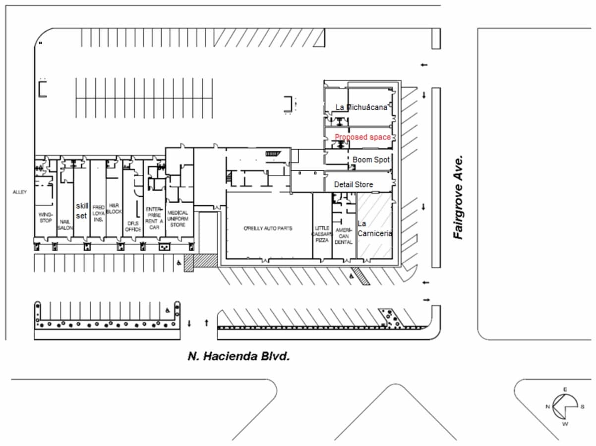
1200-1238 N Hacienda Blvd - 1er étage – Bureau 15417
Located on Fairgrove Ave. This inline space is ideal for Retail, Office or Medical use. It also has rear access from the employee parking area.
- Le loyer ne comprend pas les services publics, les frais immobiliers ou les services de l’immeuble.
- Well-trafficked retail hub in La Puente
- Two prominent pylon signs
- Anchored by national tenants
- Convenient access to major highways
Types de loyers
Le montant et le type de loyer que l’occupant (locataire) est tenu de payer au propriétaire (bailleur) sur la durée du bail sont négociés avant la signature du bail par les deux parties. Le type de loyer varie selon les services fournis. Par exemple, le prix d’un loyer triple net est habituellement inférieur à celui d’un bail à service complet puisque l’occupant est tenu d’assumer des dépenses supplémentaires par rapport au loyer de base. Contacter le broker chargé de l’annonce pour bien comprendre les coûts associés ou les dépenses supplémentaires pour chaque type de loyer.
1. Service complet: Un loyer qui comprend des services d’immeuble standards normaux fournis par le propriétaire dans le cadre d’une location annuelle de base.
2. Double net (NN): L’occupant paie seulement deux des frais de l’immeuble. Le propriétaire et l’occupant déterminent ces frais spécifiques avant la signature du bail.
3. Triple net (NNN): Un bail selon lequel l’occupant est responsable de tous les frais liés à sa part proportionnelle d’occupation de l’immeuble.
4. Brut modifié: Le brut modifié est un type général de bail dans lequel l’occupant est en général responsable de sa part proportionnelle d’une ou de plusieurs dépenses. C’est le propriétaire qui paie les frais restants. Consultez la liste ci-dessous pour connaître les structures de loyers bruts modifiés les plus courantes : 4. Plus services publics: Un type de bail brut modifié, où l’occupant est responsable à hauteur de sa part proportionnelle des services publics en plus du loyer. 4. Plus nettoyage: Un type de bail brut modifié, où l’occupant est responsable à hauteur de sa part proportionnelle du nettoyage en plus du loyer. 4. Plus électricité: Un type de bail brut modifié, où l’occupant est responsable à hauteur de sa part proportionnelle du coût de la consommation électrique en plus du loyer. 4. Plus électricité et nettoyage: Un type de bail brut modifié, où l’occupant est responsable à hauteur de sa part proportionnelle du coût de la consommation électrique et du nettoyage en plus du loyer. 4. Plus services publics et charges: Un type de bail brut modifié où l’occupant est responsable à hauteur de sa part proportionnelle des services publics et du coût de nettoyage en plus du loyer. 4. Bail industriel brut: Un type de bail brut modifié dans lequel l’occupant paie un ou plusieurs des frais en plus du loyer. Le propriétaire et l’occupant déterminent ces frais spécifiques avant la signature du bail.
5. Électricité à la charge de l’occupant: Le propriétaire paie pour tous les services et l’occupant est responsable de sa propre utilisation de l’éclairage et des prises électriques dans l’espace qu’il occupe.
6. Négociable ou sur demande: Cette option est utilisée lorsque le contact de location n’indique pas le type de loyer ou de service.
7. À déterminer: À déterminer : utilisé pour les immeubles dont le type de services ou de loyer n’est pas connu, souvent quand l’immeuble n’est pas encore construit.
Plan du site
Sélectionner des occupants à Hacienda Fair Center
- Occupant
- Description
- US localisations
- Couverture
- Enterprise Rent-A-Car
- Location de voiture
- 6 524
- International
- H&R Block
- Comptabilité/Préparation fiscale
- 13 643
- International
- La Carniceria Meat Market
- Hébergement et restauration
- 1
- -
- Little Caesars
- Pizza
- 4 790
- International
- Medical Uniform
- Enseigne
- 1
- Local
- O'Reilly Auto Parts
- Automobile
- 7 528
- International
| Occupant | Description | US localisations | Couverture |
| Enterprise Rent-A-Car | Location de voiture | 6 524 | International |
| H&R Block | Comptabilité/Préparation fiscale | 13 643 | International |
| La Carniceria Meat Market | Hébergement et restauration | 1 | - |
| Little Caesars | Pizza | 4 790 | International |
| Medical Uniform | Enseigne | 1 | Local |
| O'Reilly Auto Parts | Automobile | 7 528 | International |
Informations sur l’immeuble
| Espace total disponible | 115 m² | Façade | 4,88 m le Fairgrove Ave |
| Type de centre | Centre de quartier | Surface commerciale utile | 2 439 m² |
| Stationnement | 60 places | Surface totale du terrain | 0,91 ha |
| Magasins | 16 | Année de construction | 1970 |
| Biens du centre | 1 |
| Espace total disponible | 115 m² |
| Type de centre | Centre de quartier |
| Stationnement | 60 places |
| Magasins | 16 |
| Biens du centre | 1 |
| Façade | 4,88 m le Fairgrove Ave |
| Surface commerciale utile | 2 439 m² |
| Surface totale du terrain | 0,91 ha |
| Année de construction | 1970 |
Caractéristiques
- Terrain d’angle
- Enseigne sur pylône
- Signalisation
Principaux commerces à proximité
Présenté par
Hacienda Fair Center | 1200-1238 N Hacienda Blvd
Hum, une erreur s’est produite lors de l’envoi de votre message. Veuillez réessayer.
Merci ! Votre message a été envoyé.

