Connectez-vous/S’inscrire
Votre e-mail a été envoyé.
Eagle Rock Executive Office Center IV 120 Eagle Rock Ave Bureau | 1 080 m² | À louer | East Hanover, NJ 07936



Certaines informations ont été traduites automatiquement.
Tous les espace disponibles(1)
Afficher les loyers en
- Espace
- Surface
- Durée
- Loyer
- Type de bien
- Aménagement
- Disponible
- Espace en sous-location disponible auprès de l’occupant actuel
- Principalement open space
- Espace en excellent état
- Entièrement aménagé comme Bureau standard
- Convient pour 30 à 94 personnes
| Espace | Surface | Durée | Loyer | Type de bien | Aménagement | Disponible |
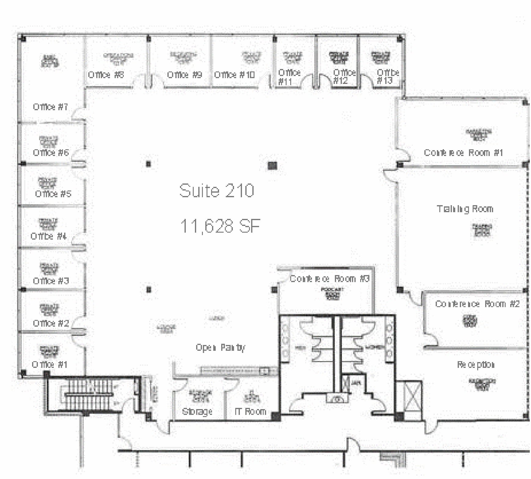
| 2e étage | 1 080 m² | Janv. 2030 | Sur demande Sur demande Sur demande Sur demande | Bureau | Construction achevée | Maintenant |
2e étage
| Surface |
| 1 080 m² |
| Durée |
| Janv. 2030 |
| Loyer |
| Sur demande Sur demande Sur demande Sur demande |
| Type de bien |
| Bureau |
| Aménagement |
| Construction achevée |
| Disponible |
| Maintenant |
1 sur 1
Vidéos
Visite extérieure 3D Matterport
Visite 3D
Photos
Street view
Rue
Carte
2e étage
| Surface | 1 080 m² |
| Durée | Janv. 2030 |
| Loyer | Sur demande |
| Type de bien | Bureau |
| Aménagement | Construction achevée |
| Disponible | Maintenant |
- Espace en sous-location disponible auprès de l’occupant actuel
- Entièrement aménagé comme Bureau standard
- Principalement open space
- Convient pour 30 à 94 personnes
- Espace en excellent état
Caractéristiques
- Atrium
- Cour
- Centre de fitness
- Service de restauration
- Étang
- Property Manager sur place
- Sièges extérieurs
Informations sur l’immeuble
Type d’immeuble
Bureau
Année de construction
1990
Hauteur du bâtiment
3 étages
Surface de l’immeuble
16 520 m²
Classe d’immeuble
B
Surface type par étage
5 507 m²
Hauteur du plafond non fini
3,05 m
Stationnement
592 places de stationnement extérieur
Stationnement Couvert
Occupants
- Étage
- Nom de l’occupant
- Secteur d’activité
- 2e
- Advanced Computer Technologies
- Information
- 3e
- Eastern Marketing Corp.
- Grossiste
- 1er
- Kessler Foundation
- Santé et assistance sociale
- 3e
- Paris & Ackerman LLP
- Services professionnels, scientifiques et techniques
- 2e
- Pillar
- Services
- 2e
- Posillico
- Construction
- 1er
- Rehabiltation Specialists Of NJ
- Santé et assistance sociale
- 3e
- SWK Technologies, Inc
- Services professionnels, scientifiques et techniques
- 3e
- The GMS Group
- Finance et assurances
- 3e
- VDA
- Services professionnels, scientifiques et techniques
1 1
Somewhat walkable
20/100
Exceptionally drivable
100/100
1 sur 16
Vidéos
Visite extérieure 3D Matterport
Visite 3D
Photos
Street view
Rue
Carte
1 sur 1
Présenté par
Eagle Rock Executive Office Center IV | 120 Eagle Rock Ave
Vous êtes déjà membre ? Connectez-vous
Hum, une erreur s’est produite lors de l’envoi de votre message. Veuillez réessayer.
Merci ! Votre message a été envoyé.



