Votre e-mail a été envoyé.
Certaines informations ont été traduites automatiquement.
Informations principales
- Situé juste en face de Carnegie Hall et à quelques pas de Central Park.
- Bureaux et locaux médicaux de premier ordre disponibles à la location dans un charmant bâtiment d'avant-guerre de Manhattan. Les équipements modernes rencontrent l'élégance classique dans un lieu prestigieux
- Les lignes 1, A, B, C et D à la hauteur de la 59e rue, à Columbus Circle et les lignes B, D et E à la hauteur de la 7e Avenue.
Afficher les loyers en
- Espace
- Surface
- Durée
- Loyer
- Type de bien
- Aménagement
- Disponible
Modern Furnished Duplex Space Available (3rd & 4th Floors) Virtual Tour: https://my.matterport.com/show/?m=63eNetdopA7 - Expansive, modern commercial kitchen - Oversized windows with west-facing views on West 57th Street - Contemporary installations throughout - Brand-new pantry - Excellent natural light and air The building is currently undergoing a high-end renovation, with upcoming upgrades to: Lobby, Elevators, Entrance doors, Corridors Located directly across the street from Carnegie Hall and only steps from Central Park.
- Espace en excellent état
Prime office space available for rent in a charming prewar Manhattan building. Modern amenities meet classic elegance in a prestigious location SPACE IS DIVISIBLE • Building Features: o Attended Lobby o 24 / 7 / 365 Access o 3 passenger & 1 Freight elevator o Wired for FIOS, Spectrum, & Pilot o Additional Entrance on West 58th Street The building is currently undergoing a high-end renovation, with upcoming upgrades to: Lobby, Elevators, Entrance doors, Corridors Located directly across the street from Carnegie Hall and only steps from Central Park.
- Loyer annoncé plus part proportionnelle des coûts de la consommation électrique
- Loyer annoncé plus part proportionnelle des coûts de la consommation électrique
| Espace | Surface | Durée | Loyer | Type de bien | Aménagement | Disponible |
| 3e étage, bureau 300 | 808 m² | Négociable | 506,69 € /m²/an 42,22 € /m²/mois 409 534 € /an 34 128 € /mois | Bureau | Construction achevée | Maintenant |
| 3e étage, bureau 311 | 69 m² | Négociable | 543,54 € /m²/an 45,29 € /m²/mois 37 367 € /an 3 114 € /mois | Bureau | - | Maintenant |
| 3e étage, bureau 316 | 385 m² | Négociable | 543,54 € /m²/an 45,29 € /m²/mois 209 055 € /an 17 421 € /mois | Bureaux/Médical | - | Maintenant |
| 4e étage, bureau 402 | 143 m² | Négociable | 543,54 € /m²/an 45,29 € /m²/mois 77 764 € /an 6 480 € /mois | Bureau | - | Maintenant |
| 6e étage, bureau 601 | 271 m² | Négociable | Sur demande Sur demande Sur demande Sur demande | Bureaux/Médical | - | Maintenant |
3e étage, bureau 300
| Surface |
| 808 m² |
| Durée |
| Négociable |
| Loyer |
| 506,69 € /m²/an 42,22 € /m²/mois 409 534 € /an 34 128 € /mois |
| Type de bien |
| Bureau |
| Aménagement |
| Construction achevée |
| Disponible |
| Maintenant |
3e étage, bureau 311
| Surface |
| 69 m² |
| Durée |
| Négociable |
| Loyer |
| 543,54 € /m²/an 45,29 € /m²/mois 37 367 € /an 3 114 € /mois |
| Type de bien |
| Bureau |
| Aménagement |
| - |
| Disponible |
| Maintenant |
3e étage, bureau 316
| Surface |
| 385 m² |
| Durée |
| Négociable |
| Loyer |
| 543,54 € /m²/an 45,29 € /m²/mois 209 055 € /an 17 421 € /mois |
| Type de bien |
| Bureaux/Médical |
| Aménagement |
| - |
| Disponible |
| Maintenant |
4e étage, bureau 402
| Surface |
| 143 m² |
| Durée |
| Négociable |
| Loyer |
| 543,54 € /m²/an 45,29 € /m²/mois 77 764 € /an 6 480 € /mois |
| Type de bien |
| Bureau |
| Aménagement |
| - |
| Disponible |
| Maintenant |
6e étage, bureau 601
| Surface |
| 271 m² |
| Durée |
| Négociable |
| Loyer |
| Sur demande Sur demande Sur demande Sur demande |
| Type de bien |
| Bureaux/Médical |
| Aménagement |
| - |
| Disponible |
| Maintenant |
- Espace
- Surface
- Durée
- Loyer
- Type de bien
- Aménagement
- Disponible
Modern Furnished Duplex Space Available (3rd & 4th Floors) Virtual Tour: https://my.matterport.com/show/?m=63eNetdopA7 - Expansive, modern commercial kitchen - Oversized windows with west-facing views on West 57th Street - Contemporary installations throughout - Brand-new pantry - Excellent natural light and air The building is currently undergoing a high-end renovation, with upcoming upgrades to: Lobby, Elevators, Entrance doors, Corridors Located directly across the street from Carnegie Hall and only steps from Central Park.
- Espace en excellent état
Prime office space available for rent in a charming prewar Manhattan building. Modern amenities meet classic elegance in a prestigious location SPACE IS DIVISIBLE • Building Features: o Attended Lobby o 24 / 7 / 365 Access o 3 passenger & 1 Freight elevator o Wired for FIOS, Spectrum, & Pilot o Additional Entrance on West 58th Street The building is currently undergoing a high-end renovation, with upcoming upgrades to: Lobby, Elevators, Entrance doors, Corridors Located directly across the street from Carnegie Hall and only steps from Central Park.
- Loyer annoncé plus part proportionnelle des coûts de la consommation électrique
- Loyer annoncé plus part proportionnelle des coûts de la consommation électrique
Dentist Office Reception Area 6 Chairs Ready for immediate occupancy. Attended Lobby
- Loyer annoncé plus part proportionnelle des services publics
| Espace | Surface | Durée | Loyer | Type de bien | Aménagement | Disponible |
| 3e étage, bureau 300 | 808 m² | Négociable | 506,69 € /m²/an 42,22 € /m²/mois 409 534 € /an 34 128 € /mois | Bureau | Construction achevée | Maintenant |
| 3e étage, bureau 311 | 69 m² | Négociable | 543,54 € /m²/an 45,29 € /m²/mois 37 367 € /an 3 114 € /mois | Bureau | - | Maintenant |
| 3e étage, bureau 316 | 385 m² | Négociable | 543,54 € /m²/an 45,29 € /m²/mois 209 055 € /an 17 421 € /mois | Bureaux/Médical | - | Maintenant |
| 4e étage, bureau 402 | 143 m² | Négociable | 543,54 € /m²/an 45,29 € /m²/mois 77 764 € /an 6 480 € /mois | Bureau | - | Maintenant |
| 6e étage, bureau 601 | 271 m² | Négociable | Sur demande Sur demande Sur demande Sur demande | Bureaux/Médical | - | Maintenant |
| 14e étage, bureau 1420 | 255 m² | Négociable | 543,54 € /m²/an 45,29 € /m²/mois 138 865 € /an 11 572 € /mois | Médical | - | Maintenant |
3e étage, bureau 300
| Surface |
| 808 m² |
| Durée |
| Négociable |
| Loyer |
| 506,69 € /m²/an 42,22 € /m²/mois 409 534 € /an 34 128 € /mois |
| Type de bien |
| Bureau |
| Aménagement |
| Construction achevée |
| Disponible |
| Maintenant |
3e étage, bureau 311
| Surface |
| 69 m² |
| Durée |
| Négociable |
| Loyer |
| 543,54 € /m²/an 45,29 € /m²/mois 37 367 € /an 3 114 € /mois |
| Type de bien |
| Bureau |
| Aménagement |
| - |
| Disponible |
| Maintenant |
3e étage, bureau 316
| Surface |
| 385 m² |
| Durée |
| Négociable |
| Loyer |
| 543,54 € /m²/an 45,29 € /m²/mois 209 055 € /an 17 421 € /mois |
| Type de bien |
| Bureaux/Médical |
| Aménagement |
| - |
| Disponible |
| Maintenant |
4e étage, bureau 402
| Surface |
| 143 m² |
| Durée |
| Négociable |
| Loyer |
| 543,54 € /m²/an 45,29 € /m²/mois 77 764 € /an 6 480 € /mois |
| Type de bien |
| Bureau |
| Aménagement |
| - |
| Disponible |
| Maintenant |
6e étage, bureau 601
| Surface |
| 271 m² |
| Durée |
| Négociable |
| Loyer |
| Sur demande Sur demande Sur demande Sur demande |
| Type de bien |
| Bureaux/Médical |
| Aménagement |
| - |
| Disponible |
| Maintenant |
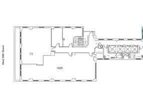
14e étage, bureau 1420
| Surface |
| 255 m² |
| Durée |
| Négociable |
| Loyer |
| 543,54 € /m²/an 45,29 € /m²/mois 138 865 € /an 11 572 € /mois |
| Type de bien |
| Médical |
| Aménagement |
| - |
| Disponible |
| Maintenant |
3e étage, bureau 300
| Surface | 808 m² |
| Durée | Négociable |
| Loyer | 506,69 € /m²/an |
| Type de bien | Bureau |
| Aménagement | Construction achevée |
| Disponible | Maintenant |
Modern Furnished Duplex Space Available (3rd & 4th Floors) Virtual Tour: https://my.matterport.com/show/?m=63eNetdopA7 - Expansive, modern commercial kitchen - Oversized windows with west-facing views on West 57th Street - Contemporary installations throughout - Brand-new pantry - Excellent natural light and air The building is currently undergoing a high-end renovation, with upcoming upgrades to: Lobby, Elevators, Entrance doors, Corridors Located directly across the street from Carnegie Hall and only steps from Central Park.
- Espace en excellent état
3e étage, bureau 311
| Surface | 69 m² |
| Durée | Négociable |
| Loyer | 543,54 € /m²/an |
| Type de bien | Bureau |
| Aménagement | - |
| Disponible | Maintenant |
3e étage, bureau 316
| Surface | 385 m² |
| Durée | Négociable |
| Loyer | 543,54 € /m²/an |
| Type de bien | Bureaux/Médical |
| Aménagement | - |
| Disponible | Maintenant |
Prime office space available for rent in a charming prewar Manhattan building. Modern amenities meet classic elegance in a prestigious location SPACE IS DIVISIBLE • Building Features: o Attended Lobby o 24 / 7 / 365 Access o 3 passenger & 1 Freight elevator o Wired for FIOS, Spectrum, & Pilot o Additional Entrance on West 58th Street The building is currently undergoing a high-end renovation, with upcoming upgrades to: Lobby, Elevators, Entrance doors, Corridors Located directly across the street from Carnegie Hall and only steps from Central Park.
4e étage, bureau 402
| Surface | 143 m² |
| Durée | Négociable |
| Loyer | 543,54 € /m²/an |
| Type de bien | Bureau |
| Aménagement | - |
| Disponible | Maintenant |
- Loyer annoncé plus part proportionnelle des coûts de la consommation électrique
6e étage, bureau 601
| Surface | 271 m² |
| Durée | Négociable |
| Loyer | Sur demande |
| Type de bien | Bureaux/Médical |
| Aménagement | - |
| Disponible | Maintenant |
- Loyer annoncé plus part proportionnelle des coûts de la consommation électrique
14e étage, bureau 1420
| Surface | 255 m² |
| Durée | Négociable |
| Loyer | 543,54 € /m²/an |
| Type de bien | Médical |
| Aménagement | - |
| Disponible | Maintenant |
Dentist Office Reception Area 6 Chairs Ready for immediate occupancy. Attended Lobby
- Loyer annoncé plus part proportionnelle des services publics
Aperçu du bien
Bureaux et locaux médicaux de premier ordre disponibles à la location dans un charmant bâtiment d'avant-guerre de Manhattan. Les équipements modernes rencontrent l'élégance classique dans un lieu prestigieux Le 119 West 57th Street est un bâtiment construit en 1926 par l'architecte emblématique Emery Roth. Cet immeuble de bureaux d'avant-guerre abritait à l'origine d'anciens locataires aussi connus que les Chas. H. Hansen Music Corp, dont les publications ont été interprétées par des artistes tels que les Beatles et Elton John, en passant par Hank Williams, Jr. Situé juste en face de Carnegie Hall et à quelques pas de Central Park. L'emplacement permet d'accéder facilement à de nombreuses lignes de métro principales. Il s'agit notamment de la ligne F à la station 57th Street et de la Sixième Avenue. Les lignes N, Q, R et W à la station 57th Street et à la 7e Avenue. Les lignes 1, A, B, C et D à la hauteur de la 59e rue, à Columbus Circle et les lignes B, D et E à la hauteur de la 7e Avenue.
- Accès 24 h/24
- Property Manager sur place
- Système de sécurité
- Réception
- Climatisation
Informations sur l’immeuble
Présenté par
119-121 W 57th St
Hum, une erreur s’est produite lors de l’envoi de votre message. Veuillez réessayer.
Merci ! Votre message a été envoyé.











