Connectez-vous/S’inscrire
Votre e-mail a été envoyé.
Certaines informations ont été traduites automatiquement.
Caractéristiques
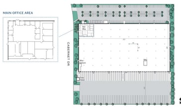
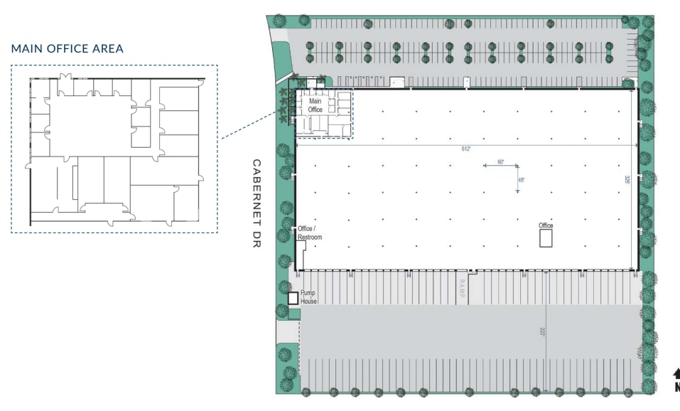
Hauteur libre
9,14 m
Accès plain-pied
2
Portes de quai de chargement extérieures
38
Niveleurs
38
Places de stationnement standard
150
Tous les espace disponibles(1)
Afficher les loyers en
- Espace
- Surface
- Durée
- Loyer
- Type de bien
- Aménagement
- Disponible
- Comprend 940 m² d’espace de bureau dédié
| Espace | Surface | Durée | Loyer | Type de bien | Aménagement | Disponible |
| 1er étage | 18 478 m² | Négociable | Sur demande Sur demande Sur demande Sur demande | Industriel/Logistique | Construction achevée | 30 jours |
1er étage
| Surface |
| 18 478 m² |
| Durée |
| Négociable |
| Loyer |
| Sur demande Sur demande Sur demande Sur demande |
| Type de bien |
| Industriel/Logistique |
| Aménagement |
| Construction achevée |
| Disponible |
| 30 jours |
1 sur 1
Vidéos
Visite extérieure 3D Matterport
Visite 3D
Photos
Street view
Rue
Carte
1er étage
| Surface | 18 478 m² |
| Durée | Négociable |
| Loyer | Sur demande |
| Type de bien | Industriel/Logistique |
| Aménagement | Construction achevée |
| Disponible | 30 jours |
- Comprend 940 m² d’espace de bureau dédié
Faits sur l’installation entrepôt
Surface de l’immeuble
18 478 m²
Surface du lot
4,32 ha
Année de construction
1996
Développement et livraisons
Béton armé
Système de sprinkler
ESFR
Alimentation électrique
Ampères: 800 Volts: 277-480 Phase: 3
Occupants
- Étage
- Nom de l’occupant
- Secteur d’activité
- 1er
- Home Legend
- Construction
1 1
Somewhat walkable
30/100
Exceptionally drivable
100/100
Some public transit
40/100
Fairly bikeable
50/100
1 sur 9
Vidéos
Visite extérieure 3D Matterport
Visite 3D
Photos
Street view
Rue
Carte
1 sur 1
Présenté par
11875 Cabernet Dr
Vous êtes déjà membre ? Connectez-vous
Hum, une erreur s’est produite lors de l’envoi de votre message. Veuillez réessayer.
Merci ! Votre message a été envoyé.






