Votre e-mail a été envoyé.
Heartland Centre Fort Saskatchewan, AB T8L 0K1 Espace disponible | 70–7 265 m²



Certaines informations ont été traduites automatiquement.
Informations principales sur le parc
- Various spaces/sizes available which are zoned for a wide range of commercial and industrial uses
- Ample on-site surface parking and loading capabilities
- Close proximity to world-scale operations (Shell, Dow, Sherritt) ensures strong industrial synergies
- Abundant natural light, efficient layouts and customizable interior configurations
- Access to regional amenities, restaurants and services - perfect for supporting staff and client needs
Faits sur le parc
| Espace total disponible | 7 265 m² | Type de parc | Parc industriel |
| Espace total disponible | 7 265 m² |
| Type de parc | Parc industriel |
Tous les espaces disponibles(14)
Afficher les loyers en
- Espace
- Surface
- Durée
- Loyer
- Type de bien
- Aménagement
- Disponible
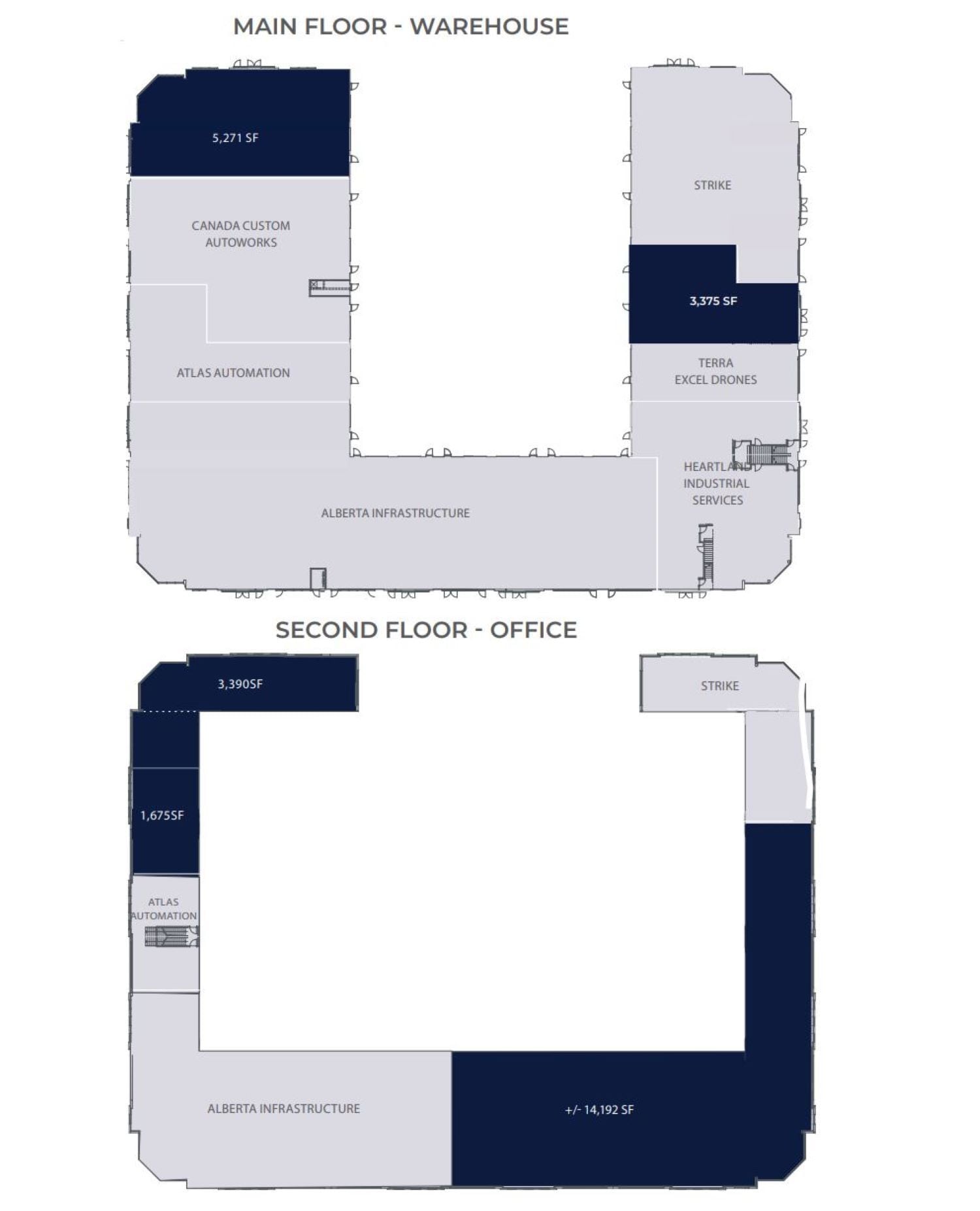
MAIN FLOOR // DEMISABLE FLEX SPACE
- Le loyer ne comprend pas les services publics, les frais immobiliers ou les services de l’immeuble.
- 22’ clear
- 2 accès plain-pied
3,381 square feet of office and industrial space for lease available immediately. Please contact James Malkin at jmalkin@tag.ca for further information.
- Comprend 77 m² d’espace de bureau dédié
- 22’ clear
- 2 accès plain-pied
Second floor // Demisable office space
- Le loyer ne comprend pas les services publics, les frais immobiliers ou les services de l’immeuble.
- 22’ clear
SECOND FLOOR // DEMISABLE OFFICE SPACE
- Le loyer ne comprend pas les services publics, les frais immobiliers ou les services de l’immeuble.
- 22’ clear
SECOND FLOOR // BASE BUILDING // DEMISABLE FLEX SPACE
- Le loyer ne comprend pas les services publics, les frais immobiliers ou les services de l’immeuble.
- 22’ clear
| Espace | Surface | Durée | Loyer | Type de bien | Aménagement | Disponible |
| 1er étage – 100 | 490 m² | Négociable | Sur demande Sur demande Sur demande Sur demande | Local d’activités | Espace brut | Maintenant |
| 1er étage – 180 | 314 m² | Négociable | Sur demande Sur demande Sur demande Sur demande | Industriel/Logistique | Construction partielle | Maintenant |
| Mezzanine – 200 | 315 m² | Négociable | Sur demande Sur demande Sur demande Sur demande | Local d’activités | Construction partielle | Maintenant |
| Mezzanine – 208 | 156 m² | Négociable | Sur demande Sur demande Sur demande Sur demande | Local d’activités | Construction achevée | Maintenant |
| Mezzanine – 228-268 | 1 318 m² | Négociable | Sur demande Sur demande Sur demande Sur demande | Local d’activités | Espace brut | Maintenant |
11602 88th Ave - 1er étage – 100
11602 88th Ave - 1er étage – 180
11602 88th Ave - Mezzanine – 200
11602 88th Ave - Mezzanine – 208
11602 88th Ave - Mezzanine – 228-268
- Espace
- Surface
- Durée
- Loyer
- Type de bien
- Aménagement
- Disponible
Ample surface parking, 22’ warehouse ceilings and a tilt-up concrete foundation make Heartland Centre an excellent choice for companies looking for first-class office and warehouse workspaces.
- Entièrement aménagé comme Bureau standard
- Convient pour 15 à 48 personnes
- Ample surface stalls
- Principalement open space
- Climatisation centrale
Ample surface parking, 22’ warehouse ceilings and a tilt-up concrete foundation make Heartland Centre an excellent choice for companies looking for first-class office and warehouse workspaces.
- Entièrement aménagé comme Bureau standard
- Ample surface stalls
- Convient pour 9 à 29 personnes
Ample surface parking, 22’ warehouse ceilings and a tilt-up concrete foundation make Heartland Centre an excellent choice for companies looking for first-class office and warehouse workspaces.
- Entièrement aménagé comme Bureau standard
- Ample surface stalls
- Convient pour 20 à 63 personnes
Ample surface parking, 22’ warehouse ceilings and a tilt-up concrete foundation make Heartland Centre an excellent choice for companies looking for first-class office and warehouse workspaces.
- Le loyer ne comprend pas les services publics, les frais immobiliers ou les services de l’immeuble.
- Ample surface stalls
Ample surface parking, 22’ warehouse ceilings and a tilt-up concrete foundation make Heartland Centre an excellent choice for companies looking for first-class office and warehouse workspaces. 2 floors space.
- Entièrement aménagé comme Bureau standard
- Ample surface stalls
- Convient pour 17 à 55 personnes
Ample surface parking, 22’ warehouse ceilings and a tilt-up concrete foundation make Heartland Centre an excellent choice for companies looking for first-class office and warehouse workspaces.
- Entièrement aménagé comme Bureau standard
- Plafonds de 22 pouces
- Convient pour 5 à 13 personnes
Ample surface parking, 22’ warehouse ceilings and a tilt-up concrete foundation make Heartland Centre an excellent choice for companies looking for first-class office and warehouse workspaces.
- Entièrement aménagé comme Bureau standard
- Plafonds de 22 pouces
- Convient pour 38 à 119 personnes
Ample surface parking, 22’ warehouse ceilings and a tilt-up concrete foundation make Heartland Centre an excellent choice for companies looking for first-class office and warehouse workspaces.
- Entièrement aménagé comme Bureau standard
- Plafonds de 22 pouces
- Convient pour 17 à 52 personnes
Ample surface parking, 22’ warehouse ceilings and a tilt-up concrete foundation make Heartland Centre an excellent choice for companies looking for first-class office and warehouse workspaces.
- Entièrement aménagé comme Bureau standard
- Convient pour 2 à 7 personnes
| Espace | Surface | Durée | Loyer | Type de bien | Aménagement | Disponible |
| 1er étage, bureau 128 | 548 m² | Négociable | Sur demande Sur demande Sur demande Sur demande | Bureau | Construction achevée | Maintenant |
| 1er étage, bureau 152 | 330 m² | Négociable | Sur demande Sur demande Sur demande Sur demande | Bureau | Construction achevée | Maintenant |
| 1er étage, bureau 168 | 724 m² | Négociable | Sur demande Sur demande Sur demande Sur demande | Bureau | Construction achevée | Maintenant |
| 1er étage – 184 | 248 m² | Négociable | Sur demande Sur demande Sur demande Sur demande | Industriel/Logistique | Construction achevée | 30 jours |
| 1er étage, bureau 196/296 | 629 m² | Négociable | Sur demande Sur demande Sur demande Sur demande | Bureau | Construction achevée | 31/08/2026 |
| 2e étage | 149 m² | Négociable | Sur demande Sur demande Sur demande Sur demande | Bureau | Construction achevée | Maintenant |
| 2e étage | 1 377 m² | Négociable | Sur demande Sur demande Sur demande Sur demande | Bureau | Construction achevée | Maintenant |
| 2e étage | 596 m² | Négociable | Sur demande Sur demande Sur demande Sur demande | Bureau | Construction achevée | Maintenant |
| 2e étage, bureau 216 | 70 m² | Négociable | Sur demande Sur demande Sur demande Sur demande | Bureau | Construction achevée | Maintenant |
11870 88th Ave - 1er étage – Bureau 128
11870 88th Ave - 1er étage – Bureau 152
11870 88th Ave - 1er étage – Bureau 168
11870 88th Ave - 1er étage – 184
11870 88th Ave - 1er étage – Bureau 196/296
11870 88th Ave - 2e étage
11870 88th Ave - 2e étage
11870 88th Ave - 2e étage
11870 88th Ave - 2e étage – Bureau 216
11602 88th Ave - 1er étage – 100
| Surface | 490 m² |
| Durée | Négociable |
| Loyer | Sur demande |
| Type de bien | Local d’activités |
| Aménagement | Espace brut |
| Disponible | Maintenant |
MAIN FLOOR // DEMISABLE FLEX SPACE
- Le loyer ne comprend pas les services publics, les frais immobiliers ou les services de l’immeuble.
- 2 accès plain-pied
- 22’ clear
11602 88th Ave - 1er étage – 180
| Surface | 314 m² |
| Durée | Négociable |
| Loyer | Sur demande |
| Type de bien | Industriel/Logistique |
| Aménagement | Construction partielle |
| Disponible | Maintenant |
3,381 square feet of office and industrial space for lease available immediately. Please contact James Malkin at jmalkin@tag.ca for further information.
- Comprend 77 m² d’espace de bureau dédié
- 2 accès plain-pied
- 22’ clear
11602 88th Ave - Mezzanine – 200
| Surface | 315 m² |
| Durée | Négociable |
| Loyer | Sur demande |
| Type de bien | Local d’activités |
| Aménagement | Construction partielle |
| Disponible | Maintenant |
Second floor // Demisable office space
- Le loyer ne comprend pas les services publics, les frais immobiliers ou les services de l’immeuble.
- 22’ clear
11602 88th Ave - Mezzanine – 208
| Surface | 156 m² |
| Durée | Négociable |
| Loyer | Sur demande |
| Type de bien | Local d’activités |
| Aménagement | Construction achevée |
| Disponible | Maintenant |
SECOND FLOOR // DEMISABLE OFFICE SPACE
- Le loyer ne comprend pas les services publics, les frais immobiliers ou les services de l’immeuble.
- 22’ clear
11602 88th Ave - Mezzanine – 228-268
| Surface | 1 318 m² |
| Durée | Négociable |
| Loyer | Sur demande |
| Type de bien | Local d’activités |
| Aménagement | Espace brut |
| Disponible | Maintenant |
SECOND FLOOR // BASE BUILDING // DEMISABLE FLEX SPACE
- Le loyer ne comprend pas les services publics, les frais immobiliers ou les services de l’immeuble.
- 22’ clear
11870 88th Ave - 1er étage – Bureau 128
| Surface | 548 m² |
| Durée | Négociable |
| Loyer | Sur demande |
| Type de bien | Bureau |
| Aménagement | Construction achevée |
| Disponible | Maintenant |
Ample surface parking, 22’ warehouse ceilings and a tilt-up concrete foundation make Heartland Centre an excellent choice for companies looking for first-class office and warehouse workspaces.
- Entièrement aménagé comme Bureau standard
- Principalement open space
- Convient pour 15 à 48 personnes
- Climatisation centrale
- Ample surface stalls
11870 88th Ave - 1er étage – Bureau 152
| Surface | 330 m² |
| Durée | Négociable |
| Loyer | Sur demande |
| Type de bien | Bureau |
| Aménagement | Construction achevée |
| Disponible | Maintenant |
Ample surface parking, 22’ warehouse ceilings and a tilt-up concrete foundation make Heartland Centre an excellent choice for companies looking for first-class office and warehouse workspaces.
- Entièrement aménagé comme Bureau standard
- Convient pour 9 à 29 personnes
- Ample surface stalls
11870 88th Ave - 1er étage – Bureau 168
| Surface | 724 m² |
| Durée | Négociable |
| Loyer | Sur demande |
| Type de bien | Bureau |
| Aménagement | Construction achevée |
| Disponible | Maintenant |
Ample surface parking, 22’ warehouse ceilings and a tilt-up concrete foundation make Heartland Centre an excellent choice for companies looking for first-class office and warehouse workspaces.
- Entièrement aménagé comme Bureau standard
- Convient pour 20 à 63 personnes
- Ample surface stalls
11870 88th Ave - 1er étage – 184
| Surface | 248 m² |
| Durée | Négociable |
| Loyer | Sur demande |
| Type de bien | Industriel/Logistique |
| Aménagement | Construction achevée |
| Disponible | 30 jours |
Ample surface parking, 22’ warehouse ceilings and a tilt-up concrete foundation make Heartland Centre an excellent choice for companies looking for first-class office and warehouse workspaces.
- Le loyer ne comprend pas les services publics, les frais immobiliers ou les services de l’immeuble.
- Ample surface stalls
11870 88th Ave - 1er étage – Bureau 196/296
| Surface | 629 m² |
| Durée | Négociable |
| Loyer | Sur demande |
| Type de bien | Bureau |
| Aménagement | Construction achevée |
| Disponible | 31/08/2026 |
Ample surface parking, 22’ warehouse ceilings and a tilt-up concrete foundation make Heartland Centre an excellent choice for companies looking for first-class office and warehouse workspaces. 2 floors space.
- Entièrement aménagé comme Bureau standard
- Convient pour 17 à 55 personnes
- Ample surface stalls
11870 88th Ave - 2e étage
| Surface | 149 m² |
| Durée | Négociable |
| Loyer | Sur demande |
| Type de bien | Bureau |
| Aménagement | Construction achevée |
| Disponible | Maintenant |
Ample surface parking, 22’ warehouse ceilings and a tilt-up concrete foundation make Heartland Centre an excellent choice for companies looking for first-class office and warehouse workspaces.
- Entièrement aménagé comme Bureau standard
- Convient pour 5 à 13 personnes
- Plafonds de 22 pouces
11870 88th Ave - 2e étage
| Surface | 1 377 m² |
| Durée | Négociable |
| Loyer | Sur demande |
| Type de bien | Bureau |
| Aménagement | Construction achevée |
| Disponible | Maintenant |
Ample surface parking, 22’ warehouse ceilings and a tilt-up concrete foundation make Heartland Centre an excellent choice for companies looking for first-class office and warehouse workspaces.
- Entièrement aménagé comme Bureau standard
- Convient pour 38 à 119 personnes
- Plafonds de 22 pouces
11870 88th Ave - 2e étage
| Surface | 596 m² |
| Durée | Négociable |
| Loyer | Sur demande |
| Type de bien | Bureau |
| Aménagement | Construction achevée |
| Disponible | Maintenant |
Ample surface parking, 22’ warehouse ceilings and a tilt-up concrete foundation make Heartland Centre an excellent choice for companies looking for first-class office and warehouse workspaces.
- Entièrement aménagé comme Bureau standard
- Convient pour 17 à 52 personnes
- Plafonds de 22 pouces
11870 88th Ave - 2e étage – Bureau 216
| Surface | 70 m² |
| Durée | Négociable |
| Loyer | Sur demande |
| Type de bien | Bureau |
| Aménagement | Construction achevée |
| Disponible | Maintenant |
Ample surface parking, 22’ warehouse ceilings and a tilt-up concrete foundation make Heartland Centre an excellent choice for companies looking for first-class office and warehouse workspaces.
- Entièrement aménagé comme Bureau standard
- Convient pour 2 à 7 personnes
Sélectionner des occupants à ce bien
- Étage
- Nom de l’occupant
- Secteur d’activité
- Multi
- Alberta Infrastructure
- -
- 1er
- Canada Custom Autoworks
- Grossiste
- 1er
- Carey Industrial Services Ltd.
- Services administratifs et de soutien
- 1er
- ChemTreat - Canada
- Manufacture
- Multi
- Control Tech
- -
- Multi
- Providence Grain Group Inc
- Grossiste
- Multi
- Strike
- Construction
- 1er
- Trinity Automotive
- Services
- 1er
- Vallen - Fort Saskatchewan
- Enseigne
Vue d’ensemble du parc
Heartland Centre I and II are office/warehouse buildings totaling 177,200 square feet. High warehouse ceilings, ample surface parking and a tilt-up concrete foundation make Heartland Centre an excellent choice for companies looking for first-class office and warehouse workspaces. MUNICIPAL ADDRESS 11870 88 Avenue, (Josephburg Road) Fort Saskatchewan AB LEGAL DESCRIPTION Plan: 1025045; Block: 1; Lot: 4 NEIGHBOURHOOD Alsten Lands ZONING IL (Light Industrial) PARKING Ample surface stalls HEATING Rooftop units SPRINKLERED Yes CEILING HEIGHT 22’ clear LEASE RATE Market OP COSTS $3.92/ sq ft TI ALLOWANCE Market POSSESSION Negotiable
Présenté par
Heartland Centre | Fort Saskatchewan, AB T8L 0K1
Hum, une erreur s’est produite lors de l’envoi de votre message. Veuillez réessayer.
Merci ! Votre message a été envoyé.




























