Connectez-vous/S’inscrire
Votre e-mail a été envoyé.
1170 Kensington Cres NW Bureau | 316–467 m² | À louer | Calgary, AB T2N 1X6



Certaines informations ont été traduites automatiquement.
Informations principales
- À distance de marche de la station LRT Sunnyside.
- L'établissement propose un parking en surface.
- De nombreux restaurants, cafés et services personnels dans les environs immédiats.
Tous les espace disponibles(1)
Afficher les loyers en
- Espace
- Surface
- Durée
- Loyer
- Type de bien
- État
- Disponible
Office or medical space available for lease. Term is flexible. Contact listing agent for additional information.
- Le loyer ne comprend pas les services publics, les frais immobiliers ou les services de l’immeuble.
- Disposition open space
- 3 bureaux privés
- Lumière naturelle
- Lumière naturelle
- Stationnement souterrain disponible
- Entièrement aménagé comme Bureau de services professionnels
- Convient pour 9 à 41 personnes
- Ventilation et chauffage centraux
- Open space
- Mobilier disponible
| Espace | Surface | Durée | Loyer | Type de bien | État | Disponible |
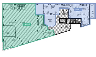
| 2e étage, bureau 201 | 316 – 467 m² | 3-5 Ans | Sur demande Sur demande Sur demande Sur demande | Bureau | Construction achevée | Maintenant |
2e étage, bureau 201
| Surface |
| 316 – 467 m² |
| Durée |
| 3-5 Ans |
| Loyer |
| Sur demande Sur demande Sur demande Sur demande |
| Type de bien |
| Bureau |
| État |
| Construction achevée |
| Disponible |
| Maintenant |
1 sur 2
Vidéos
Visite extérieure 3D Matterport
Visite 3D
Photos
Street view
Rue
Carte
2e étage, bureau 201
| Surface | 316 – 467 m² |
| Durée | 3-5 Ans |
| Loyer | Sur demande |
| Type de bien | Bureau |
| État | Construction achevée |
| Disponible | Maintenant |
Office or medical space available for lease. Term is flexible. Contact listing agent for additional information.
- Le loyer ne comprend pas les services publics, les frais immobiliers ou les services de l’immeuble.
- Entièrement aménagé comme Bureau de services professionnels
- Disposition open space
- Convient pour 9 à 41 personnes
- 3 bureaux privés
- Ventilation et chauffage centraux
- Lumière naturelle
- Open space
- Lumière naturelle
- Mobilier disponible
- Stationnement souterrain disponible
Aperçu du bien
Espace de bureau/médical attrayant situé à Kensington, l'un des quartiers les plus prisés de Calgary.
- Ligne d’autobus
- Signalisation
Informations sur l’immeuble
Type d’immeuble
Bureau
Année de construction
1950
Hauteur du bâtiment
3 étages
Surface de l’immeuble
1 271 m²
Classe d’immeuble
B
Surface type par étage
424 m²
Hauteur du plafond non fini
2,44 m
Stationnement
4 places de stationnement extérieur
Stationnement Couvert
1 1
Walk Score®
Idéal pour les promeneurs (97)
Transit Score®
Excellent réseau de transport en commun (78)
Bike Score®
Un paradis pour les cyclistes (99)
1 sur 17
Vidéos
Visite extérieure 3D Matterport
Visite 3D
Photos
Street view
Rue
Carte
1 sur 1
Présenté par
1170 Kensington Cres NW
Vous êtes déjà membre ? Connectez-vous
Hum, une erreur s’est produite lors de l’envoi de votre message. Veuillez réessayer.
Merci ! Votre message a été envoyé.




