Votre e-mail a été envoyé.
Certaines informations ont été traduites automatiquement.
Tous les espace disponibles(1)
Afficher les loyers en
- Espace
- Surface
- Durée
- Loyer
- Type de bien
- Aménagement
- Disponible
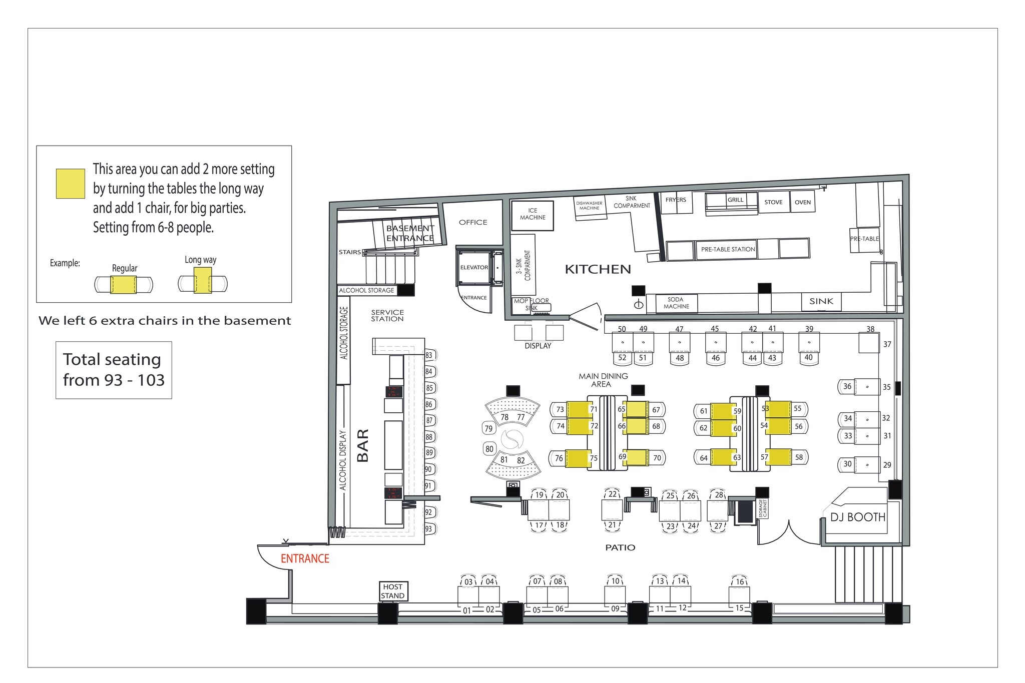
Fully Fixturized Bar/Restaurant Asset Sale will come with a long term lease agreement and an alcohol license- Formerly ProAbition DTLA, the operation is currently being ran as the ‘Drunken Labatory’. Any prospective Tenant will need to be accepted by the Landlord for an Assignment of Lease. CUB (Type 47) Liquor License For Sale and 15’ Hood in place. We are asking $195,000 for the transfer of the license, FFE and assignment of the lease.
- Espace en sous-location disponible auprès de l’occupant actuel
- Entièrement aménagé comme un débit de boissons
- Climatisation centrale
- Chambres de congélation
- Espace d’angle
- Fully Fixturized Restaurant/Bar (CUB in Place)
- Outdoor Covered and Heated Patio
- Beautiful Underground Speakeasy
- Le loyer ne comprend pas les services publics, les frais immobiliers ou les services de l’immeuble.
- Espace haut de gamme
- Toilettes privées
- Système de sécurité
- Sous-sol
- Full Kitchen with 15’ Hood
- Full Bar/Kitchen
- (2) Bars on Site
| Espace | Surface | Durée | Loyer | Type de bien | Aménagement | Disponible |
| 1er étage, bureau 101 | 260 m² | Févr. 2031 | Sur demande Sur demande Sur demande Sur demande | Local commercial | Construction achevée | 01/07/2026 |
1er étage, bureau 101
| Surface |
| 260 m² |
| Durée |
| Févr. 2031 |
| Loyer |
| Sur demande Sur demande Sur demande Sur demande |
| Type de bien |
| Local commercial |
| Aménagement |
| Construction achevée |
| Disponible |
| 01/07/2026 |
1er étage, bureau 101
| Surface | 260 m² |
| Durée | Févr. 2031 |
| Loyer | Sur demande |
| Type de bien | Local commercial |
| Aménagement | Construction achevée |
| Disponible | 01/07/2026 |
Fully Fixturized Bar/Restaurant Asset Sale will come with a long term lease agreement and an alcohol license- Formerly ProAbition DTLA, the operation is currently being ran as the ‘Drunken Labatory’. Any prospective Tenant will need to be accepted by the Landlord for an Assignment of Lease. CUB (Type 47) Liquor License For Sale and 15’ Hood in place. We are asking $195,000 for the transfer of the license, FFE and assignment of the lease.
- Espace en sous-location disponible auprès de l’occupant actuel
- Le loyer ne comprend pas les services publics, les frais immobiliers ou les services de l’immeuble.
- Entièrement aménagé comme un débit de boissons
- Espace haut de gamme
- Climatisation centrale
- Toilettes privées
- Chambres de congélation
- Système de sécurité
- Espace d’angle
- Sous-sol
- Fully Fixturized Restaurant/Bar (CUB in Place)
- Full Kitchen with 15’ Hood
- Outdoor Covered and Heated Patio
- Full Bar/Kitchen
- Beautiful Underground Speakeasy
- (2) Bars on Site
Informations sur l’immeuble
| Espace total disponible | 260 m² | Style d’appartement | De hauteur moyenne |
| Nb de lots | 43 | Surface de l’immeuble | 4 840 m² |
| Type de bien | Immeuble residentiel | Année de construction/rénovation | 1960/2012 |
| Sous-type de bien | Appartement |
| Espace total disponible | 260 m² |
| Nb de lots | 43 |
| Type de bien | Immeuble residentiel |
| Sous-type de bien | Appartement |
| Style d’appartement | De hauteur moyenne |
| Surface de l’immeuble | 4 840 m² |
| Année de construction/rénovation | 1960/2012 |
Principaux commerces à proximité
Présenté par
PROABITION DTLA | 117 Winston St
Hum, une erreur s’est produite lors de l’envoi de votre message. Veuillez réessayer.
Merci ! Votre message a été envoyé.






