Votre e-mail a été envoyé.
Certaines informations ont été traduites automatiquement.
Informations principales sur le parc
- Regents Park est l'occasion de louer diverses suites de bureaux entièrement construites dans un environnement serein semblable à un parc à Gold River, en Californie.
- Le 1134 Coloma Road s'étend sur huit bâtiments reliés par des espaces de cour offrant un patio extérieur, un accès direct aux suites et une lumière naturelle abondante.
- Profitez des équipements sur place tels qu'un centre de remise en forme, un service de gestion immobilière, une salle de conférence commune, un vaste salon pour locataires et un grand parking.
- Vous trouverez une multitude de boutiques, de restaurants et de commodités quotidiennes au coin de la rue, depuis Regents Park, le long de l'US Highway 50 et du Sunrise Boulevard.
Faits sur le parc
| Espace total disponible | 3 139 m² | Type de parc | Parc de bureaux |
| Espace total disponible | 3 139 m² |
| Type de parc | Parc de bureaux |
Tous les espaces disponibles(18)
Afficher les loyers en
- Espace
- Surface
- Durée
- Loyer
- Type de bien
- Aménagement
- Disponible
- Entièrement aménagé comme Bureau standard
- Convient pour 3 à 9 personnes
- Principalement open space
- 3 bureaux privés
- Le loyer comprend les services publics, les services de l’immeuble et les frais immobiliers.
- Principalement open space
- Entièrement aménagé comme Bureau standard
- Convient pour 7 à 21 personnes
- Le loyer comprend les services publics, les services de l’immeuble et les frais immobiliers.
- Principalement open space
- 4 bureaux privés
- Entièrement aménagé comme Bureau standard
- Convient pour 6 à 17 personnes
| Espace | Surface | Durée | Loyer | Type de bien | Aménagement | Disponible |
| 1er étage, bureau 110 | 103 m² | Négociable | Sur demande Sur demande Sur demande Sur demande | Bureau | Construction achevée | Maintenant |
| 2e étage, bureau 170 | 233 m² | Négociable | 170,76 € /m²/an 14,23 € /m²/mois 39 834 € /an 3 320 € /mois | Bureau | Construction achevée | 30 jours |
| 2e étage, bureau 190 | 197 m² | Négociable | 170,76 € /m²/an 14,23 € /m²/mois 33 616 € /an 2 801 € /mois | Bureau | Construction achevée | Maintenant |
11344 Coloma Rd - 1er étage – Bureau 110
11344 Coloma Rd - 2e étage – Bureau 170
11344 Coloma Rd - 2e étage – Bureau 190
- Espace
- Surface
- Durée
- Loyer
- Type de bien
- Aménagement
- Disponible
- Le loyer comprend les services publics, les services de l’immeuble et les frais immobiliers.
- Principalement open space
- Entièrement aménagé comme Bureau standard
- Convient pour 5 à 14 personnes
| Espace | Surface | Durée | Loyer | Type de bien | Aménagement | Disponible |
| 1er étage, bureau 345 | 155 m² | Négociable | 170,76 € /m²/an 14,23 € /m²/mois 26 525 € /an 2 210 € /mois | Bureau | Construction achevée | Maintenant |
11344 Coloma Rd - 1er étage – Bureau 345
- Espace
- Surface
- Durée
- Loyer
- Type de bien
- Aménagement
- Disponible
- Le loyer comprend les services publics, les services de l’immeuble et les frais immobiliers.
- Principalement open space
- Entièrement aménagé comme Bureau standard
- Convient pour 4 à 13 personnes
- Le loyer comprend les services publics, les services de l’immeuble et les frais immobiliers.
- Principalement open space
- Partiellement aménagé comme Bureau standard
- Convient pour 5 à 14 personnes
| Espace | Surface | Durée | Loyer | Type de bien | Aménagement | Disponible |
| 1er étage, bureau 405 | 148 m² | Négociable | 170,76 € /m²/an 14,23 € /m²/mois 25 319 € /an 2 110 € /mois | Bureau | Construction achevée | Maintenant |
| 2e étage, bureau 470 | 152 m² | 1-5 Ans | 170,76 € /m²/an 14,23 € /m²/mois 26 017 € /an 2 168 € /mois | Bureau | Construction partielle | Maintenant |
11344 Coloma Rd - 1er étage – Bureau 405
11344 Coloma Rd - 2e étage – Bureau 470
- Espace
- Surface
- Durée
- Loyer
- Type de bien
- Aménagement
- Disponible
- Le loyer comprend les services publics, les services de l’immeuble et les frais immobiliers.
- Principalement open space
- Entièrement aménagé comme Bureau standard
- Convient pour 5 à 13 personnes
- Le loyer comprend les services publics, les services de l’immeuble et les frais immobiliers.
- Convient pour 3 à 7 personnes
- Le loyer comprend les services publics, les services de l’immeuble et les frais immobiliers.
- Principalement open space
- Entièrement aménagé comme Bureau standard
- Convient pour 3 à 10 personnes
- Le loyer comprend les services publics, les services de l’immeuble et les frais immobiliers.
- Principalement open space
- Entièrement aménagé comme Bureau standard
- Convient pour 6 à 19 personnes
| Espace | Surface | Durée | Loyer | Type de bien | Aménagement | Disponible |
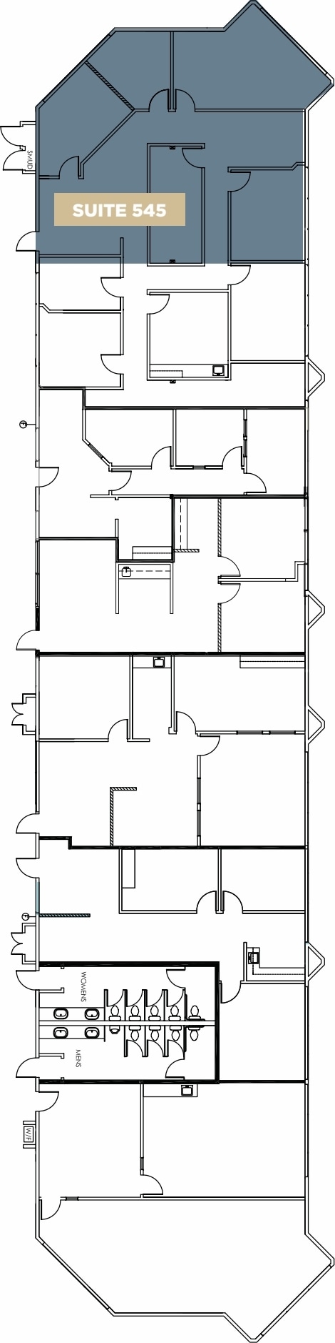
| 1er étage, bureau 545 | 149 m² | Négociable | 170,76 € /m²/an 14,23 € /m²/mois 25 398 € /an 2 117 € /mois | Bureau | Construction achevée | 30 jours |
| 2e étage, bureau 560 | 77 m² | Négociable | 170,76 € /m²/an 14,23 € /m²/mois 13 104 € /an 1 092 € /mois | Bureau | Construction achevée | Maintenant |
| 2e étage, bureau 570 | 105 m² | Négociable | 170,76 € /m²/an 14,23 € /m²/mois 17 910 € /an 1 493 € /mois | Bureau | Construction achevée | 30 jours |
| 2e étage, bureau 580 | 213 m² | Négociable | 170,76 € /m²/an 14,23 € /m²/mois 36 376 € /an 3 031 € /mois | Bureau | Construction achevée | 30 jours |
11344 Coloma Rd - 1er étage – Bureau 545
11344 Coloma Rd - 2e étage – Bureau 560
11344 Coloma Rd - 2e étage – Bureau 570
11344 Coloma Rd - 2e étage – Bureau 580
- Espace
- Surface
- Durée
- Loyer
- Type de bien
- Aménagement
- Disponible
- Le loyer comprend les services publics, les services de l’immeuble et les frais immobiliers.
- Principalement open space
- Entièrement aménagé comme Bureau standard
- Convient pour 7 à 20 personnes
| Espace | Surface | Durée | Loyer | Type de bien | Aménagement | Disponible |
| 1er étage, bureau 635 | 226 m² | Négociable | 170,76 € /m²/an 14,23 € /m²/mois 38 676 € /an 3 223 € /mois | Bureau | Construction achevée | Maintenant |
11344 Coloma Rd - 1er étage – Bureau 635
- Espace
- Surface
- Durée
- Loyer
- Type de bien
- Aménagement
- Disponible
- Le loyer comprend les services publics, les services de l’immeuble et les frais immobiliers.
- Principalement open space
- Entièrement aménagé comme Bureau standard
- Convient pour 4 à 11 personnes
- Le loyer comprend les services publics, les services de l’immeuble et les frais immobiliers.
- Principalement open space
- 4 bureaux privés
- Entièrement aménagé comme Bureau standard
- Convient pour 9 à 27 personnes
- Le loyer comprend les services publics, les services de l’immeuble et les frais immobiliers.
- Principalement open space
- Entièrement aménagé comme Bureau standard
- Convient pour 9 à 27 personnes
| Espace | Surface | Durée | Loyer | Type de bien | Aménagement | Disponible |
| 1er étage, bureau 825 | 121 m² | Négociable | 170,76 € /m²/an 14,23 € /m²/mois 20 623 € /an 1 719 € /mois | Bureau | Construction achevée | Maintenant |
| 1er étage, bureau 845 | 303 m² | Négociable | 170,76 € /m²/an 14,23 € /m²/mois 51 716 € /an 4 310 € /mois | Bureau | Construction achevée | 30 jours |
| 2e étage, bureau 890 | 309 m² | Négociable | 170,76 € /m²/an 14,23 € /m²/mois 52 779 € /an 4 398 € /mois | Bureau | Construction achevée | 30 jours |
11344 Coloma Rd - 1er étage – Bureau 825
11344 Coloma Rd - 1er étage – Bureau 845
11344 Coloma Rd - 2e étage – Bureau 890
- Espace
- Surface
- Durée
- Loyer
- Type de bien
- Aménagement
- Disponible
- Le loyer comprend les services publics, les services de l’immeuble et les frais immobiliers.
- Principalement open space
- Entièrement aménagé comme Bureau standard
- Convient pour 2 à 7 personnes
- Le loyer comprend les services publics, les services de l’immeuble et les frais immobiliers.
- Principalement open space
- Entièrement aménagé comme Bureau standard
- Convient pour 7 à 21 personnes
| Espace | Surface | Durée | Loyer | Type de bien | Aménagement | Disponible |
| 2e étage, bureau 255 | 71 m² | Négociable | 170,76 € /m²/an 14,23 € /m²/mois 12 120 € /an 1 010 € /mois | Bureau | Construction achevée | Maintenant |
| 2e étage, bureau 270 | 233 m² | Négociable | 170,76 € /m²/an 14,23 € /m²/mois 39 803 € /an 3 317 € /mois | Bureau | Construction achevée | Maintenant |
11344 Coloma Rd - 2e étage – Bureau 255
11344 Coloma Rd - 2e étage – Bureau 270
- Espace
- Surface
- Durée
- Loyer
- Type de bien
- Aménagement
- Disponible
- Le loyer comprend les services publics, les services de l’immeuble et les frais immobiliers.
- Principalement open space
- Entièrement aménagé comme Bureau standard
- Convient pour 5 à 15 personnes
- Le loyer comprend les services publics, les services de l’immeuble et les frais immobiliers.
- Principalement open space
- Entièrement aménagé comme Bureau standard
- Convient pour 5 à 16 personnes
| Espace | Surface | Durée | Loyer | Type de bien | Aménagement | Disponible |
| 2e étage, bureau 740 | 169 m² | Négociable | 170,76 € /m²/an 14,23 € /m²/mois 28 888 € /an 2 407 € /mois | Bureau | Construction achevée | Maintenant |
| 2e étage, bureau 745 | 175 m² | Négociable | 170,76 € /m²/an 14,23 € /m²/mois 29 840 € /an 2 487 € /mois | Bureau | Construction achevée | Maintenant |
11344 Coloma Rd - 2e étage – Bureau 740
11344 Coloma Rd - 2e étage – Bureau 745
11344 Coloma Rd - 1er étage – Bureau 110
| Surface | 103 m² |
| Durée | Négociable |
| Loyer | Sur demande |
| Type de bien | Bureau |
| Aménagement | Construction achevée |
| Disponible | Maintenant |
- Entièrement aménagé comme Bureau standard
- Principalement open space
- Convient pour 3 à 9 personnes
- 3 bureaux privés
11344 Coloma Rd - 2e étage – Bureau 170
| Surface | 233 m² |
| Durée | Négociable |
| Loyer | 170,76 € /m²/an |
| Type de bien | Bureau |
| Aménagement | Construction achevée |
| Disponible | 30 jours |
- Le loyer comprend les services publics, les services de l’immeuble et les frais immobiliers.
- Entièrement aménagé comme Bureau standard
- Principalement open space
- Convient pour 7 à 21 personnes
11344 Coloma Rd - 2e étage – Bureau 190
| Surface | 197 m² |
| Durée | Négociable |
| Loyer | 170,76 € /m²/an |
| Type de bien | Bureau |
| Aménagement | Construction achevée |
| Disponible | Maintenant |
- Le loyer comprend les services publics, les services de l’immeuble et les frais immobiliers.
- Entièrement aménagé comme Bureau standard
- Principalement open space
- Convient pour 6 à 17 personnes
- 4 bureaux privés
11344 Coloma Rd - 1er étage – Bureau 345
| Surface | 155 m² |
| Durée | Négociable |
| Loyer | 170,76 € /m²/an |
| Type de bien | Bureau |
| Aménagement | Construction achevée |
| Disponible | Maintenant |
- Le loyer comprend les services publics, les services de l’immeuble et les frais immobiliers.
- Entièrement aménagé comme Bureau standard
- Principalement open space
- Convient pour 5 à 14 personnes
11344 Coloma Rd - 1er étage – Bureau 405
| Surface | 148 m² |
| Durée | Négociable |
| Loyer | 170,76 € /m²/an |
| Type de bien | Bureau |
| Aménagement | Construction achevée |
| Disponible | Maintenant |
- Le loyer comprend les services publics, les services de l’immeuble et les frais immobiliers.
- Entièrement aménagé comme Bureau standard
- Principalement open space
- Convient pour 4 à 13 personnes
11344 Coloma Rd - 2e étage – Bureau 470
| Surface | 152 m² |
| Durée | 1-5 Ans |
| Loyer | 170,76 € /m²/an |
| Type de bien | Bureau |
| Aménagement | Construction partielle |
| Disponible | Maintenant |
- Le loyer comprend les services publics, les services de l’immeuble et les frais immobiliers.
- Partiellement aménagé comme Bureau standard
- Principalement open space
- Convient pour 5 à 14 personnes
11344 Coloma Rd - 1er étage – Bureau 545
| Surface | 149 m² |
| Durée | Négociable |
| Loyer | 170,76 € /m²/an |
| Type de bien | Bureau |
| Aménagement | Construction achevée |
| Disponible | 30 jours |
- Le loyer comprend les services publics, les services de l’immeuble et les frais immobiliers.
- Entièrement aménagé comme Bureau standard
- Principalement open space
- Convient pour 5 à 13 personnes
11344 Coloma Rd - 2e étage – Bureau 560
| Surface | 77 m² |
| Durée | Négociable |
| Loyer | 170,76 € /m²/an |
| Type de bien | Bureau |
| Aménagement | Construction achevée |
| Disponible | Maintenant |
- Le loyer comprend les services publics, les services de l’immeuble et les frais immobiliers.
- Convient pour 3 à 7 personnes
11344 Coloma Rd - 2e étage – Bureau 570
| Surface | 105 m² |
| Durée | Négociable |
| Loyer | 170,76 € /m²/an |
| Type de bien | Bureau |
| Aménagement | Construction achevée |
| Disponible | 30 jours |
- Le loyer comprend les services publics, les services de l’immeuble et les frais immobiliers.
- Entièrement aménagé comme Bureau standard
- Principalement open space
- Convient pour 3 à 10 personnes
11344 Coloma Rd - 2e étage – Bureau 580
| Surface | 213 m² |
| Durée | Négociable |
| Loyer | 170,76 € /m²/an |
| Type de bien | Bureau |
| Aménagement | Construction achevée |
| Disponible | 30 jours |
- Le loyer comprend les services publics, les services de l’immeuble et les frais immobiliers.
- Entièrement aménagé comme Bureau standard
- Principalement open space
- Convient pour 6 à 19 personnes
11344 Coloma Rd - 1er étage – Bureau 635
| Surface | 226 m² |
| Durée | Négociable |
| Loyer | 170,76 € /m²/an |
| Type de bien | Bureau |
| Aménagement | Construction achevée |
| Disponible | Maintenant |
- Le loyer comprend les services publics, les services de l’immeuble et les frais immobiliers.
- Entièrement aménagé comme Bureau standard
- Principalement open space
- Convient pour 7 à 20 personnes
11344 Coloma Rd - 1er étage – Bureau 825
| Surface | 121 m² |
| Durée | Négociable |
| Loyer | 170,76 € /m²/an |
| Type de bien | Bureau |
| Aménagement | Construction achevée |
| Disponible | Maintenant |
- Le loyer comprend les services publics, les services de l’immeuble et les frais immobiliers.
- Entièrement aménagé comme Bureau standard
- Principalement open space
- Convient pour 4 à 11 personnes
11344 Coloma Rd - 1er étage – Bureau 845
| Surface | 303 m² |
| Durée | Négociable |
| Loyer | 170,76 € /m²/an |
| Type de bien | Bureau |
| Aménagement | Construction achevée |
| Disponible | 30 jours |
- Le loyer comprend les services publics, les services de l’immeuble et les frais immobiliers.
- Entièrement aménagé comme Bureau standard
- Principalement open space
- Convient pour 9 à 27 personnes
- 4 bureaux privés
11344 Coloma Rd - 2e étage – Bureau 890
| Surface | 309 m² |
| Durée | Négociable |
| Loyer | 170,76 € /m²/an |
| Type de bien | Bureau |
| Aménagement | Construction achevée |
| Disponible | 30 jours |
- Le loyer comprend les services publics, les services de l’immeuble et les frais immobiliers.
- Entièrement aménagé comme Bureau standard
- Principalement open space
- Convient pour 9 à 27 personnes
11344 Coloma Rd - 2e étage – Bureau 255
| Surface | 71 m² |
| Durée | Négociable |
| Loyer | 170,76 € /m²/an |
| Type de bien | Bureau |
| Aménagement | Construction achevée |
| Disponible | Maintenant |
- Le loyer comprend les services publics, les services de l’immeuble et les frais immobiliers.
- Entièrement aménagé comme Bureau standard
- Principalement open space
- Convient pour 2 à 7 personnes
11344 Coloma Rd - 2e étage – Bureau 270
| Surface | 233 m² |
| Durée | Négociable |
| Loyer | 170,76 € /m²/an |
| Type de bien | Bureau |
| Aménagement | Construction achevée |
| Disponible | Maintenant |
- Le loyer comprend les services publics, les services de l’immeuble et les frais immobiliers.
- Entièrement aménagé comme Bureau standard
- Principalement open space
- Convient pour 7 à 21 personnes
11344 Coloma Rd - 2e étage – Bureau 740
| Surface | 169 m² |
| Durée | Négociable |
| Loyer | 170,76 € /m²/an |
| Type de bien | Bureau |
| Aménagement | Construction achevée |
| Disponible | Maintenant |
- Le loyer comprend les services publics, les services de l’immeuble et les frais immobiliers.
- Entièrement aménagé comme Bureau standard
- Principalement open space
- Convient pour 5 à 15 personnes
11344 Coloma Rd - 2e étage – Bureau 745
| Surface | 175 m² |
| Durée | Négociable |
| Loyer | 170,76 € /m²/an |
| Type de bien | Bureau |
| Aménagement | Construction achevée |
| Disponible | Maintenant |
- Le loyer comprend les services publics, les services de l’immeuble et les frais immobiliers.
- Entièrement aménagé comme Bureau standard
- Principalement open space
- Convient pour 5 à 16 personnes
Visites 3D Matterport
Sélectionner des occupants à ce bien
- Grace Psychological Associates Inc
- Fondé en 2008, un fournisseur de psychologues à Gold River, en Californie
- Professional Training Institute
- Fondée en 2001, une école de formation d'urgence située à Gold River, en Californie
- Shaw Aviation Insurance Service
- Fournisseur mondial de solutions commerciales.
- Sherwin-Williams Company
- Producteur et distributeur international de peintures et de produits de revêtement dans le monde entier.
Vue d’ensemble du parc
Profitez d'un environnement serein semblable à un parc pour travailler, communiquer et collaborer à Regents Park, 11344 Coloma Road. Le parc s'étend sur un parc de bureaux de 140 500 pieds carrés entouré d'un aménagement paysager luxuriant et de nombreux coins salons extérieurs, abritant les Martin's Famous Street Tacos. Le centre propose des équipements sur place, notamment un centre de remise en forme, des douches, un salon intérieur/extérieur pour les locataires, une gestion immobilière, des salles de conférence communes et un grand parking. Situé à côté de la piste cyclable American River, Regents Park se trouve dans la banlieue de Gold River, qui regorge de possibilités de loisirs de plein air, juste à l'extérieur de Sacramento. L'établissement se trouve à proximité de nombreux cafés, restaurants, boutiques et lieux de divertissement, ce qui permet aux locataires de cocher rapidement les éléments de leur liste de choses à faire avant et après le travail. Profitez de trajets faciles depuis et vers Regents Park, à 1,6 km de l'US Highway 50. Regents Park est idéal pour les entreprises à la recherche d'espaces de bureaux dotés de nombreux équipements et d'une destination tranquille.
Brochure du parc
À proximité
Restaurants |
|||
|---|---|---|---|
| Martin’s Famous Street Tacos | - | - | 3 min. à pied |
| Cafe Amore | - | €€ | 10 min. à pied |
| Mimosa House | - | - | 10 min. à pied |
| Arigato Sushi | Japonais | €€€ | 11 min. à pied |
| Starbucks | Café | USD | 11 min. à pied |
| El Pollo Loco | - | - | 11 min. à pied |
| Carl's Jr. | - | - | 11 min. à pied |
| Chipotle | - | - | 12 min. à pied |
| Five Guys | - | - | 11 min. à pied |
Local commercial |
||
|---|---|---|
| La Petite Academy | Garderie | 7 min. à pied |
| State Farm | Assurance | 8 min. à pied |
| The UPS Store | Services commerciaux/Photocopies/Poste | 8 min. à pied |
| am/pm | Supermarché de quartier | 10 min. à pied |
| Bank of America | Banque | 10 min. à pied |
| Great Clips | Coiffeur/Barbier/Spa | 12 min. à pied |
| Dollar Tree | Magasin à prix unique/Friperie | 13 min. à pied |
| Smart & Final | Supermarché | 14 min. à pied |
| Sally Beauty | Parapharmacie | 16 min. à pied |
Hôtels |
|
|---|---|
| Marriott |
265 chambres
5 min en voiture
|
| Courtyard |
145 chambres
7 min en voiture
|
Équipe de location
Sean Mullen, Managing Director
Avant de se lancer dans le domaine de l'immobilier commercial, Sean a travaillé pendant huit ans dans le secteur de l'édition de papier journal en tant que directeur général, directeur de district et directeur des opérations régionales. Chacun de ces postes s'est accompagné d'une expérience considérable en gestion des profits et pertes, ce qui a permis à Sean de bien comprendre les défis de ses clients. Le fait d'avoir personnellement traité des problèmes liés à l'espace, de négocier des baux et de déménager des bureaux du point de vue des locataires lui a permis de mieux comprendre la situation dans laquelle se trouvent ses clients et de mieux comprendre les défis que peut présenter l'immobilier.
Kevin Partington, Executive Managing Director
En 2012, Kevin a participé à plus de 77 transactions totalisant plus de 1,9 million de pieds carrés. Il a été régulièrement nominé pour le titre de courtier de l'année à Sacramento au cours des 12 dernières années et a remporté le prestigieux Broker's Choice Award, décerné par la communauté des courtiers. En janvier 2011, lui et toute l'équipe de CROS ont rejoint Cushman & Wakefield pour développer les activités de courtage de Sacramento. En 2012, Kevin a réalisé la plus grande mission de représentation de locataires de l'histoire de Sacramento pour Sutter Health. En 2013, le titre de Kevin a été élevé au poste de directeur exécutif du bureau de Sacramento de Cushman & Wakefield.
Spencer Nielsen, Director
Spencer Nielsen a rejoint le bureau de Cushman and Wakefield à Sacramento en tant qu'associé au sein de la division de location et de vente de bureaux en septembre 2016 après avoir obtenu son diplôme de la California Polytechnic State University à San Luis Obispo. Depuis qu'il s'est joint à l'équipe, il a effectué plus de 120 transactions totalisant plus de 30 000 000$ en contrepartie et 300 000 pieds carrés.
Spencer a participé à des programmes et à des clubs pendant son séjour à Cal Poly. En 2016, Spencer a participé au concours de gestion de la construction résidentielle de la National Association of Home Builders au sein de l'équipe immobilière de Cal Poly, qui s'est classée deuxième au classement général du pays parmi 40 universités. Spencer a également été membre du Cal Poly Entrepreneurs Club et coordinateur d'événements pour Cal Poly Athletics. Aujourd'hui, Spencer est un membre actif de la section Echelon de Sacramento de l'Armée du Salut.
À propos du propriétaire
Autres biens dans le portefeuille GRACEADA PARTNERS
Présenté par
Regents Park | Gold River, CA 95670
Hum, une erreur s’est produite lors de l’envoi de votre message. Veuillez réessayer.
Merci ! Votre message a été envoyé.




























