Connectez-vous/S’inscrire
Votre e-mail a été envoyé.
1125 Innovation Dr Bureau | 1 437–2 883 m² | À louer | Ottawa, ON K2K 1X7



Certaines informations ont été traduites automatiquement.
TOUS LES ESPACES DISPONIBLES(2)
Afficher les loyers en
- ESPACE
- SURFACE
- DURÉE
- LOYER
- TYPE DE BIEN
- ÉTAT
- DISPONIBLE
15,564 SF of office space coming available on Feb 1, 2025.
- Entièrement aménagé comme Bureau standard
- Convient pour 39 à 125 personnes
- Principalement open space
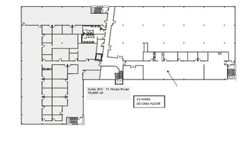
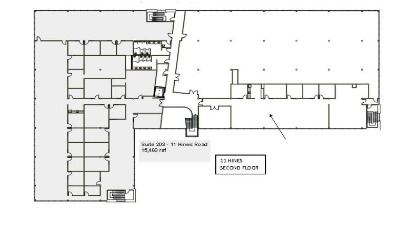
15,469 SF of office space coming available on June 1, 2026.
- Entièrement aménagé comme Bureau standard
- Convient pour 39 à 124 personnes
- 1 salle de conférence
- Accès aux ascenseurs
- Principalement open space
- 20 bureaux privés
- Cuisine
- Toilettes privées
| Espace | Surface | Durée | Loyer | Type de bien | État | Disponible |
| 1er étage, bureau 100 | 1 446 m² | 1-10 Ans | Sur demande Sur demande Sur demande Sur demande | Bureau | Construction achevée | Maintenant |
| 2e étage, bureau 203 | 1 437 m² | 1-10 Ans | Sur demande Sur demande Sur demande Sur demande | Bureau | Construction achevée | 01/06/2026 |
1er étage, bureau 100
| Surface |
| 1 446 m² |
| Durée |
| 1-10 Ans |
| Loyer |
| Sur demande Sur demande Sur demande Sur demande |
| Type de bien |
| Bureau |
| État |
| Construction achevée |
| Disponible |
| Maintenant |
2e étage, bureau 203
| Surface |
| 1 437 m² |
| Durée |
| 1-10 Ans |
| Loyer |
| Sur demande Sur demande Sur demande Sur demande |
| Type de bien |
| Bureau |
| État |
| Construction achevée |
| Disponible |
| 01/06/2026 |
1er étage, bureau 100
| Surface | 1 446 m² |
| Durée | 1-10 Ans |
| Loyer | Sur demande |
| Type de bien | Bureau |
| État | Construction achevée |
| Disponible | Maintenant |
15,564 SF of office space coming available on Feb 1, 2025.
- Entièrement aménagé comme Bureau standard
- Principalement open space
- Convient pour 39 à 125 personnes
1 sur 1
VIDÉOS
VISITE EXTÉRIEURE 3D MATTERPORT
VISITE 3D
PHOTOS
STREET VIEW
RUE
CARTE
2e étage, bureau 203
| Surface | 1 437 m² |
| Durée | 1-10 Ans |
| Loyer | Sur demande |
| Type de bien | Bureau |
| État | Construction achevée |
| Disponible | 01/06/2026 |
15,469 SF of office space coming available on June 1, 2026.
- Entièrement aménagé comme Bureau standard
- Principalement open space
- Convient pour 39 à 124 personnes
- 20 bureaux privés
- 1 salle de conférence
- Cuisine
- Accès aux ascenseurs
- Toilettes privées
CARACTÉRISTIQUES
- Ligne d’autobus
- Accès contrôlé
- Système de sécurité
- Signalisation
INFORMATIONS SUR L’IMMEUBLE
Type d’immeuble
Bureau
Année de construction
2001
Hauteur du bâtiment
2 étages
Surface de l’immeuble
3 252 m²
Classe d’immeuble
B
Surface type par étage
1 569 m²
Hauteur du plafond non fini
3,35 m
Stationnement
38 places de stationnement extérieur
Stationnement Couvert
1 1
1 sur 7
VIDÉOS
VISITE EXTÉRIEURE 3D MATTERPORT
VISITE 3D
PHOTOS
STREET VIEW
RUE
CARTE
1 sur 1
Présenté par
1125 Innovation Dr
Vous êtes déjà membre ? Connectez-vous
Hum, une erreur s’est produite lors de l’envoi de votre message. Veuillez réessayer.
Merci ! Votre message a été envoyé.



