Connectez-vous/S’inscrire
Votre e-mail a été envoyé.
Certaines informations ont été traduites automatiquement.
INFORMATIONS PRINCIPALES SUR L'INVESTISSEMENT
- Historical Building that has been completely updated in it's same historical beauty. There's a potential of a dual residency for Business & Home.
RÉSUMÉ ANALYTIQUE
For Sale: Historic Commercial Building with Dual-Use Potential Near Downtown Paris, TX
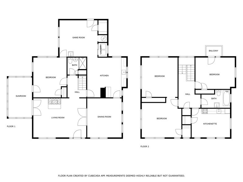
This beautifully restored commercial building is ideally located near the intersection of 12th Street and Lamar Avenue (Business 271 & 82), just half a mile from Historic Downtown Paris, TX. Nestled adjacent to Paris Regional Health, 1055 Walker Building, this property offers prime visibility and versatility—perfect for a professional office, mixed-use residence, or a unique vacation rental.
Built in 1915 and thoughtfully renovated in 2023, the structure spans approximately 2,874 sq ft and includes 4 bedrooms, 2 bathrooms, 3 living areas, and 3 kitchen/dining spaces. The flexible layout is ideal for configuring a downstairs office with upstairs living quarters, or fully converting the space into offices and client areas.
The first floor features a living room, formal dining room, kitchen, sunroom, game room, full bathroom, and one bedroom—many of which can easily be adapted into a reception area, showrooms, breakroom, or private offices. Rich hardwood floors have been meticulously restored, complemented by a charming brick-floor sunroom and classic wainscoting throughout.
Upstairs, you'll find three additional bedrooms, a full bath, and a kitchenette—offering the perfect setup for executive housing, guest accommodation, or additional office use.
Major mechanical and structural upgrades completed in 2023 include: All new electrical wiring, Upgraded lighting and plumbing fixtures, New water heater, New HVAC system, New roof, Refinished Hardwood Flooring, Brick flooring in Sunroom, Improved Landscaping, Remodeled kitchen, Refinished walls throughout the building
Additional highlights include restored antique wood and gas-burning stove, refinished kitchen counters, and a classic farm sink—adding both charm and value.
This property is a rare opportunity to own a distinctive piece of Paris history with modern upgrades and business-ready potential.
This beautifully restored commercial building is ideally located near the intersection of 12th Street and Lamar Avenue (Business 271 & 82), just half a mile from Historic Downtown Paris, TX. Nestled adjacent to Paris Regional Health, 1055 Walker Building, this property offers prime visibility and versatility—perfect for a professional office, mixed-use residence, or a unique vacation rental.
Built in 1915 and thoughtfully renovated in 2023, the structure spans approximately 2,874 sq ft and includes 4 bedrooms, 2 bathrooms, 3 living areas, and 3 kitchen/dining spaces. The flexible layout is ideal for configuring a downstairs office with upstairs living quarters, or fully converting the space into offices and client areas.
The first floor features a living room, formal dining room, kitchen, sunroom, game room, full bathroom, and one bedroom—many of which can easily be adapted into a reception area, showrooms, breakroom, or private offices. Rich hardwood floors have been meticulously restored, complemented by a charming brick-floor sunroom and classic wainscoting throughout.
Upstairs, you'll find three additional bedrooms, a full bath, and a kitchenette—offering the perfect setup for executive housing, guest accommodation, or additional office use.
Major mechanical and structural upgrades completed in 2023 include: All new electrical wiring, Upgraded lighting and plumbing fixtures, New water heater, New HVAC system, New roof, Refinished Hardwood Flooring, Brick flooring in Sunroom, Improved Landscaping, Remodeled kitchen, Refinished walls throughout the building
Additional highlights include restored antique wood and gas-burning stove, refinished kitchen counters, and a classic farm sink—adding both charm and value.
This property is a rare opportunity to own a distinctive piece of Paris history with modern upgrades and business-ready potential.
DATA ROOM Cliquez ici pour accéder à
- Offering Memorandum
- Market Information
INFORMATIONS SUR L’IMMEUBLE
Type de vente
Investissement ou propriétaire occupant
Type de bien
Bureau
Surface de l’immeuble
267 m²
Classe d’immeuble
C
Année de construction
1917
Prix
278 571 €
Prix par m²
1 043,32 €
Occupation
Mono
Hauteur du bâtiment
2 étages
Surface type par étage
134 m²
Coefficient d’occupation des sols de l’immeuble
0,26
Surface du lot
0,10 ha
Zonage
C-2 - Commercial
1 sur 35
VIDÉOS
VISITE EXTÉRIEURE 3D MATTERPORT
VISITE 3D
PHOTOS
STREET VIEW
RUE
CARTE
1 sur 1
Présenté par
1116 Lamar Avenue | 1116 Lamar Ave
Vous êtes déjà membre ? Connectez-vous
Hum, une erreur s’est produite lors de l’envoi de votre message. Veuillez réessayer.
Merci ! Votre message a été envoyé.




