Votre e-mail a été envoyé.
Certaines informations ont été traduites automatiquement.
Informations principales
- The business park offers modern Class A industrial construction designed for operational efficiency.
- The site provides convenient access to the 91, 60, and 215 freeways for regional mobility.
- Professional office elements allow for integrated administrative operations.
- Secured truck courts support smooth circulation and enhance logistic workflows.
- Clear heights and infrastructure support warehousing, distribution, and fulfillment uses.
Caractéristiques
Tous les espace disponibles(1)
Afficher les loyers en
- Espace
- Surface
- Durée
- Loyer
- Type de bien
- Aménagement
- Disponible
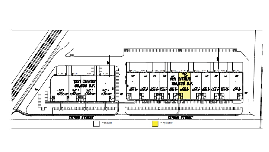
Unit 6 offers a highly functional industrial layout featuring a dedicated office area, ample warehouse volume, and efficient loading capabilities. The space includes four dock-high loading positions and one ground-level door, offering flexibility for both inbound and outbound logistics. A secured truck court enhances maneuvering and operational convenience, while the 24-foot minimum clear height supports racking and storage solutions. With direct access to major Inland Empire freeways, the unit is well-suited for distribution, manufacturing, and service-oriented operations seeking immediate regional connectivity.
- Le loyer ne comprend pas les services publics, les frais immobiliers ou les services de l’immeuble.
- 1 accès plain-pied
- 4 quais de chargement
- Ground-level loading access provided
- Comprend 93 m² d’espace de bureau dédié
- Espace en excellent état
- Four dock-high doors included
- Secured truck court enhances efficiency
| Espace | Surface | Durée | Loyer | Type de bien | Aménagement | Disponible |
| 1er étage – 6 | 1 277 m² | Négociable | 115,67 € /m²/an 9,64 € /m²/mois 147 765 € /an 12 314 € /mois | Industriel/Logistique | Construction achevée | Maintenant |
1er étage – 6
| Surface |
| 1 277 m² |
| Durée |
| Négociable |
| Loyer |
| 115,67 € /m²/an 9,64 € /m²/mois 147 765 € /an 12 314 € /mois |
| Type de bien |
| Industriel/Logistique |
| Aménagement |
| Construction achevée |
| Disponible |
| Maintenant |
1er étage – 6
| Surface | 1 277 m² |
| Durée | Négociable |
| Loyer | 115,67 € /m²/an |
| Type de bien | Industriel/Logistique |
| Aménagement | Construction achevée |
| Disponible | Maintenant |
Unit 6 offers a highly functional industrial layout featuring a dedicated office area, ample warehouse volume, and efficient loading capabilities. The space includes four dock-high loading positions and one ground-level door, offering flexibility for both inbound and outbound logistics. A secured truck court enhances maneuvering and operational convenience, while the 24-foot minimum clear height supports racking and storage solutions. With direct access to major Inland Empire freeways, the unit is well-suited for distribution, manufacturing, and service-oriented operations seeking immediate regional connectivity.
- Le loyer ne comprend pas les services publics, les frais immobiliers ou les services de l’immeuble.
- Comprend 93 m² d’espace de bureau dédié
- 1 accès plain-pied
- Espace en excellent état
- 4 quais de chargement
- Four dock-high doors included
- Ground-level loading access provided
- Secured truck court enhances efficiency
Aperçu du bien
Citrus Business Park is a quality multi-tenant industrial environment designed to support a wide range of distribution, logistics, and operational users. Developed with modern industrial standards in mind, the property features Class A construction, secured truck circulation areas, and efficient site planning that supports seamless vehicle movement. Generous clear heights help accommodate racking and storage needs, while professional office components provide comfortable administrative space. The business park benefits from direct connectivity to the 91, 60, and 215 freeways, offering excellent regional access throughout Riverside County and the Inland Empire. Its location within a highly active industrial corridor makes it particularly attractive for tenants seeking accessibility, reliability, and modern functionality. Purpose-built for operational efficiency, the property combines durable infrastructure with thoughtful design to create a dependable and well-positioned industrial setting suited for a variety of industrial users.
Faits sur l’installation entrepôt
Occupants
- Étage
- Nom de l’occupant
- Secteur d’activité
- 1er
- EPE
- Transport et entreposage
- 1er
- Factory Motor Parts
- Grossiste
- 1er
- FMR
- Services professionnels, scientifiques et techniques
- 1er
- Rapid Care
- Grossiste
- 1er
- Red Fox Powersports
- Enseigne
- 1er
- Restoration Management Company
- Construction
- 1er
- Romanoff Renovations
- Construction
Présenté par
1111 Citrus St
Hum, une erreur s’est produite lors de l’envoi de votre message. Veuillez réessayer.
Merci ! Votre message a été envoyé.





