Votre e-mail a été envoyé.
Certaines informations ont été traduites automatiquement.
Informations principales
- Full service lease.
- Shared conference rooms.
- Direct elevator access.
- Secured access.
- Floor plans available upon request.
- B-4 Zoning (City of Richmond)
Tous les espaces disponibles(10)
Afficher les loyers en
- Espace
- Surface
- Durée
- Loyer
- Type de bien
- Aménagement
- Disponible
- Le loyer comprend les services publics, les services de l’immeuble et les frais immobiliers.
- 4 bureaux privés
- Entièrement aménagé comme Bureau standard
- Espace en excellent état
Reception area with 9 private offices, conference room and a storage room.
- Le loyer comprend les services publics, les services de l’immeuble et les frais immobiliers.
- 1 salle de conférence
- Entreposage sécurisé
- 9 bureaux privés
- Ventilation et chauffage centraux
Large reception area with 4 private offices. Very private office suite just off the elevator lobby on 3rd floor.
- Le loyer comprend les services publics, les services de l’immeuble et les frais immobiliers.
- 4 bureaux privés
- Ventilation et chauffage centraux
- Suite privée !
- Partiellement aménagé comme Bureau standard
- Espace en excellent état
- Aire de réception
- Le loyer comprend les services publics, les services de l’immeuble et les frais immobiliers.
- Plan d’étage avec bureaux fermés
- Entièrement aménagé comme Bureau standard
- Espace en excellent état
Very nicely configured office with large offices and several rooms with the original 1910 heart pine hardwood floors.
- Le loyer comprend les services publics, les services de l’immeuble et les frais immobiliers.
- Principalement open space
- 1 salle de conférence
- Ventilation et chauffage centraux
- Planchers de bois franc d'origine en pin cœur de 1910.
- Entièrement aménagé comme Bureau standard
- 8 bureaux privés
- 5 postes de travail
- Local à vélos
Reception area, conference room, kitchenette and 4 private offices, two are oversized. Main Street views. Directly off elevator lobby on the 8th floor.
- Le loyer comprend les services publics, les services de l’immeuble et les frais immobiliers.
- 4 bureaux privés
- Espace en excellent état
- Aire de réception
- Vues sur Main Street
- Partiellement aménagé comme Bureau standard
- 1 salle de conférence
- Ventilation et chauffage centraux
- Cuisine
Large open plan divided into three spaces. Coffee sink in office. 115 year old distressed hardwood floors throughout. Fiber in the suite.
- Le loyer comprend les services publics, les services de l’immeuble et les frais immobiliers.
- Great windows in all offices
- Ventilation et chauffage centraux
- Le loyer comprend les services publics, les services de l’immeuble et les frais immobiliers.
- Disposition open space
- Entièrement aménagé comme Bureau standard
- Espace en excellent état
Reception area, storage and 3 above average sized offices. Great views of Main Street and the James River.
- Le loyer comprend les services publics, les services de l’immeuble et les frais immobiliers.
- 3 bureaux privés
- Espace en excellent état
- Aire de réception
- Emplacement de choix
- Partiellement aménagé comme Bureau standard
- 2 postes de travail
- Ventilation et chauffage centraux
- Lumière naturelle
Large portion of the 14th (2548 SF) and front portion of the 15th (1642) floors. Served by an interior open stairwell from reception area to the additional open plan space on 15th. Kitchen and restroom with shower within suite. Some offices have 18' ceilings, some lower. Very unique space. Minor wall alteration included, plus painting and carpeting LVT. Comcast fiber in the suite.
- Le loyer comprend les services publics, les services de l’immeuble et les frais immobiliers.
- 8 bureaux privés
- 25 postes de travail
- Ventilation et chauffage centraux
- Cuisine
- Vues sur le James River et le Capitole de l'État.
- Entièrement aménagé comme Bureau standard
- 1 salle de conférence
- Plafonds finis: 2,44 mètres - 5,49 mètres
- Aire de réception
- Toilettes privées
| Espace | Surface | Durée | Loyer | Type de bien | Aménagement | Disponible |
| 2e étage, bureau 210 | 119 m² | Négociable | 133,12 € /m²/an 11,09 € /m²/mois 15 793 € /an 1 316 € /mois | Bureau | Construction achevée | Maintenant |
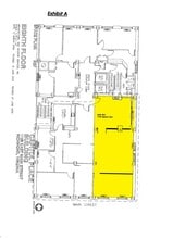
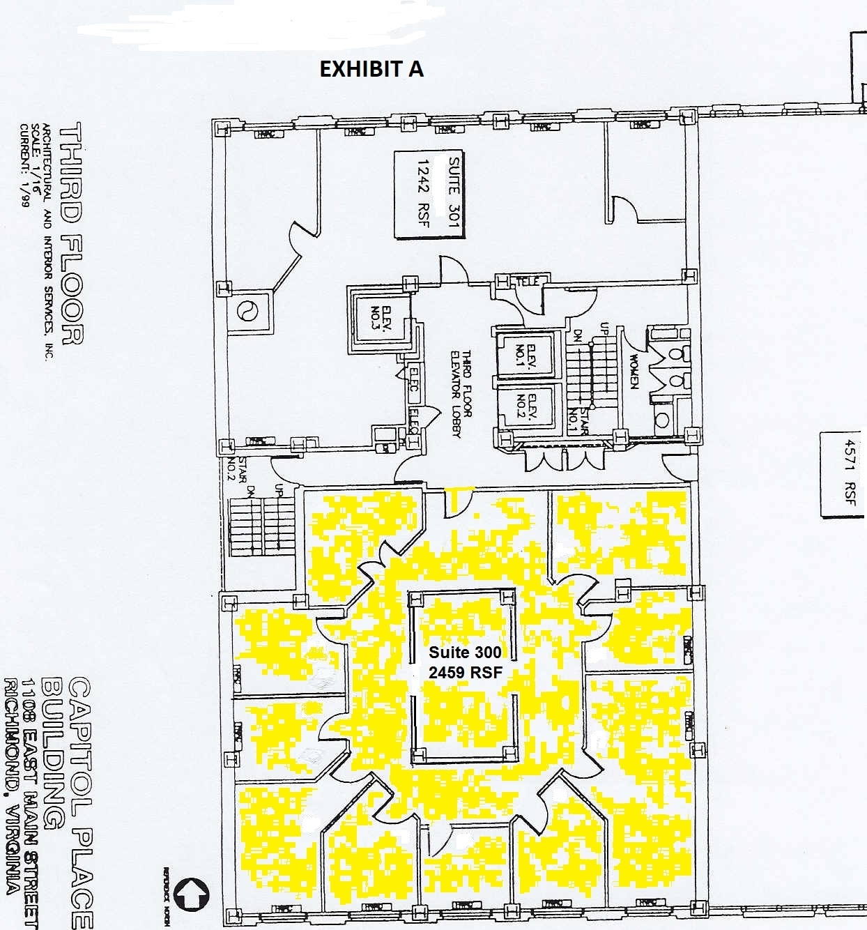
| 3e étage, bureau 300 | 228 m² | Négociable | 133,12 € /m²/an 11,09 € /m²/mois 30 411 € /an 2 534 € /mois | Bureau | - | Maintenant |
| 3e étage, bureau 301 | 115 m² | 1-5 Ans | 133,12 € /m²/an 11,09 € /m²/mois 15 360 € /an 1 280 € /mois | Bureau | Construction partielle | Maintenant |
| 5e étage, bureau 500 | 129 m² | 1-7 Ans | 151,48 € /m²/an 12,62 € /m²/mois 19 533 € /an 1 628 € /mois | Bureau | Construction achevée | Maintenant |
| 7e étage, bureau 700 | 207 m² | 3-5 Ans | 151,48 € /m²/an 12,62 € /m²/mois 31 382 € /an 2 615 € /mois | Bureau | Construction achevée | Maintenant |
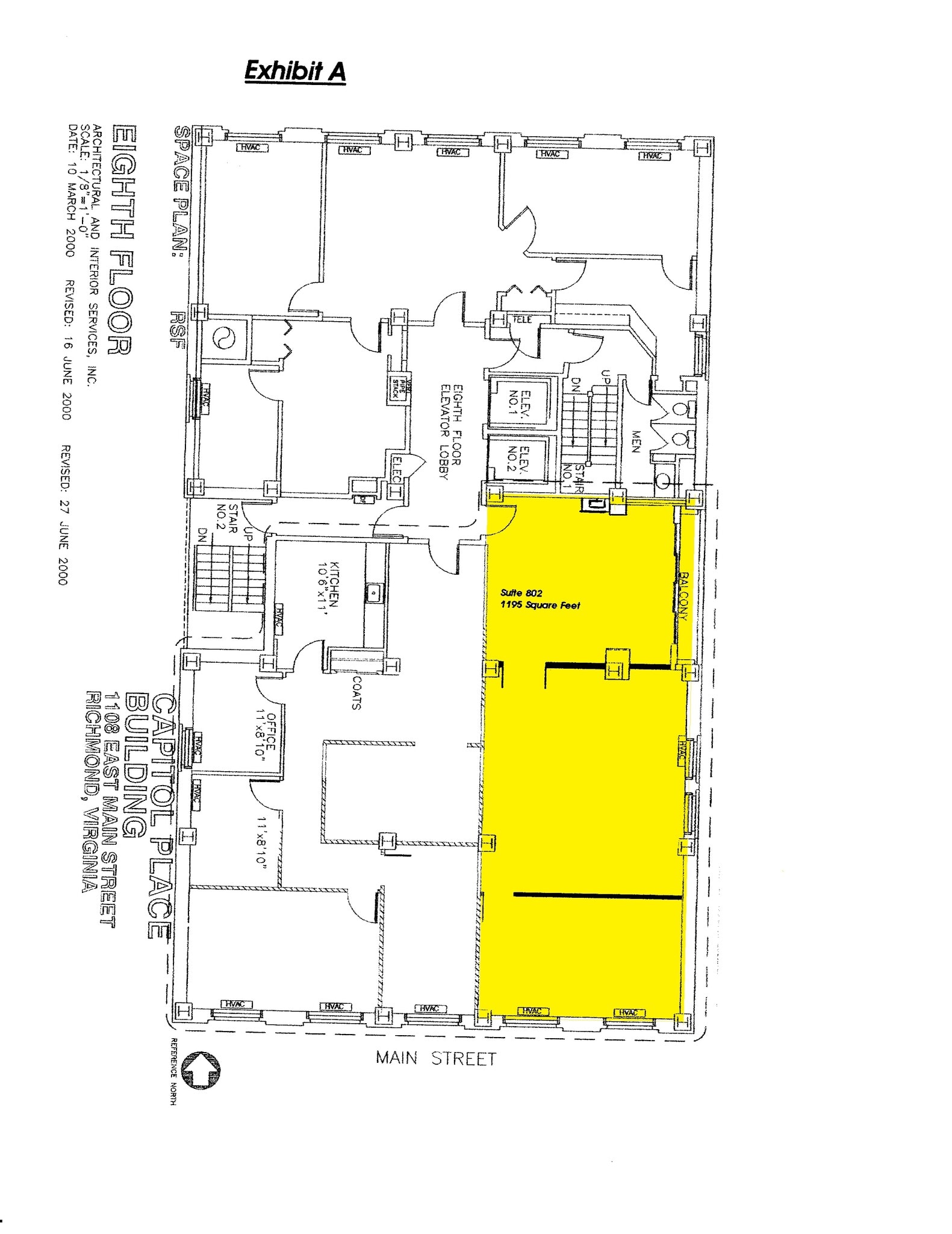
| 8e étage, bureau 800 | 129 m² | 3-5 Ans | 151,48 € /m²/an 12,62 € /m²/mois 19 533 € /an 1 628 € /mois | Bureau | Construction partielle | Maintenant |
| 8e étage, bureau 802 | 111 m² | Négociable | 151,48 € /m²/an 12,62 € /m²/mois 16 817 € /an 1 401 € /mois | Bureau | - | Maintenant |
| 9e étage, bureau 901 | 48 m² | 1-5 Ans | 156,07 € /m²/an 13,01 € /m²/mois 7 424 € /an 618,64 € /mois | Bureau | Construction achevée | Maintenant |
| 11e étage, bureau 1100 | 105 m² | 3-5 Ans | 151,48 € /m²/an 12,62 € /m²/mois 15 902 € /an 1 325 € /mois | Bureau | Construction partielle | Maintenant |
| 14e étage, bureau 1400 | 389 m² | 3-5 Ans | 126,23 € /m²/an 10,52 € /m²/mois 49 138 € /an 4 095 € /mois | Bureau | Construction achevée | Maintenant |
2e étage, bureau 210
| Surface |
| 119 m² |
| Durée |
| Négociable |
| Loyer |
| 133,12 € /m²/an 11,09 € /m²/mois 15 793 € /an 1 316 € /mois |
| Type de bien |
| Bureau |
| Aménagement |
| Construction achevée |
| Disponible |
| Maintenant |
3e étage, bureau 300
| Surface |
| 228 m² |
| Durée |
| Négociable |
| Loyer |
| 133,12 € /m²/an 11,09 € /m²/mois 30 411 € /an 2 534 € /mois |
| Type de bien |
| Bureau |
| Aménagement |
| - |
| Disponible |
| Maintenant |
3e étage, bureau 301
| Surface |
| 115 m² |
| Durée |
| 1-5 Ans |
| Loyer |
| 133,12 € /m²/an 11,09 € /m²/mois 15 360 € /an 1 280 € /mois |
| Type de bien |
| Bureau |
| Aménagement |
| Construction partielle |
| Disponible |
| Maintenant |
5e étage, bureau 500
| Surface |
| 129 m² |
| Durée |
| 1-7 Ans |
| Loyer |
| 151,48 € /m²/an 12,62 € /m²/mois 19 533 € /an 1 628 € /mois |
| Type de bien |
| Bureau |
| Aménagement |
| Construction achevée |
| Disponible |
| Maintenant |
7e étage, bureau 700
| Surface |
| 207 m² |
| Durée |
| 3-5 Ans |
| Loyer |
| 151,48 € /m²/an 12,62 € /m²/mois 31 382 € /an 2 615 € /mois |
| Type de bien |
| Bureau |
| Aménagement |
| Construction achevée |
| Disponible |
| Maintenant |
8e étage, bureau 800
| Surface |
| 129 m² |
| Durée |
| 3-5 Ans |
| Loyer |
| 151,48 € /m²/an 12,62 € /m²/mois 19 533 € /an 1 628 € /mois |
| Type de bien |
| Bureau |
| Aménagement |
| Construction partielle |
| Disponible |
| Maintenant |
8e étage, bureau 802
| Surface |
| 111 m² |
| Durée |
| Négociable |
| Loyer |
| 151,48 € /m²/an 12,62 € /m²/mois 16 817 € /an 1 401 € /mois |
| Type de bien |
| Bureau |
| Aménagement |
| - |
| Disponible |
| Maintenant |
9e étage, bureau 901
| Surface |
| 48 m² |
| Durée |
| 1-5 Ans |
| Loyer |
| 156,07 € /m²/an 13,01 € /m²/mois 7 424 € /an 618,64 € /mois |
| Type de bien |
| Bureau |
| Aménagement |
| Construction achevée |
| Disponible |
| Maintenant |
11e étage, bureau 1100
| Surface |
| 105 m² |
| Durée |
| 3-5 Ans |
| Loyer |
| 151,48 € /m²/an 12,62 € /m²/mois 15 902 € /an 1 325 € /mois |
| Type de bien |
| Bureau |
| Aménagement |
| Construction partielle |
| Disponible |
| Maintenant |
14e étage, bureau 1400
| Surface |
| 389 m² |
| Durée |
| 3-5 Ans |
| Loyer |
| 126,23 € /m²/an 10,52 € /m²/mois 49 138 € /an 4 095 € /mois |
| Type de bien |
| Bureau |
| Aménagement |
| Construction achevée |
| Disponible |
| Maintenant |
2e étage, bureau 210
| Surface | 119 m² |
| Durée | Négociable |
| Loyer | 133,12 € /m²/an |
| Type de bien | Bureau |
| Aménagement | Construction achevée |
| Disponible | Maintenant |
- Le loyer comprend les services publics, les services de l’immeuble et les frais immobiliers.
- Entièrement aménagé comme Bureau standard
- 4 bureaux privés
- Espace en excellent état
3e étage, bureau 300
| Surface | 228 m² |
| Durée | Négociable |
| Loyer | 133,12 € /m²/an |
| Type de bien | Bureau |
| Aménagement | - |
| Disponible | Maintenant |
Reception area with 9 private offices, conference room and a storage room.
- Le loyer comprend les services publics, les services de l’immeuble et les frais immobiliers.
- 9 bureaux privés
- 1 salle de conférence
- Ventilation et chauffage centraux
- Entreposage sécurisé
3e étage, bureau 301
| Surface | 115 m² |
| Durée | 1-5 Ans |
| Loyer | 133,12 € /m²/an |
| Type de bien | Bureau |
| Aménagement | Construction partielle |
| Disponible | Maintenant |
Large reception area with 4 private offices. Very private office suite just off the elevator lobby on 3rd floor.
- Le loyer comprend les services publics, les services de l’immeuble et les frais immobiliers.
- Partiellement aménagé comme Bureau standard
- 4 bureaux privés
- Espace en excellent état
- Ventilation et chauffage centraux
- Aire de réception
- Suite privée !
5e étage, bureau 500
| Surface | 129 m² |
| Durée | 1-7 Ans |
| Loyer | 151,48 € /m²/an |
| Type de bien | Bureau |
| Aménagement | Construction achevée |
| Disponible | Maintenant |
- Le loyer comprend les services publics, les services de l’immeuble et les frais immobiliers.
- Entièrement aménagé comme Bureau standard
- Plan d’étage avec bureaux fermés
- Espace en excellent état
7e étage, bureau 700
| Surface | 207 m² |
| Durée | 3-5 Ans |
| Loyer | 151,48 € /m²/an |
| Type de bien | Bureau |
| Aménagement | Construction achevée |
| Disponible | Maintenant |
Very nicely configured office with large offices and several rooms with the original 1910 heart pine hardwood floors.
- Le loyer comprend les services publics, les services de l’immeuble et les frais immobiliers.
- Entièrement aménagé comme Bureau standard
- Principalement open space
- 8 bureaux privés
- 1 salle de conférence
- 5 postes de travail
- Ventilation et chauffage centraux
- Local à vélos
- Planchers de bois franc d'origine en pin cœur de 1910.
8e étage, bureau 800
| Surface | 129 m² |
| Durée | 3-5 Ans |
| Loyer | 151,48 € /m²/an |
| Type de bien | Bureau |
| Aménagement | Construction partielle |
| Disponible | Maintenant |
Reception area, conference room, kitchenette and 4 private offices, two are oversized. Main Street views. Directly off elevator lobby on the 8th floor.
- Le loyer comprend les services publics, les services de l’immeuble et les frais immobiliers.
- Partiellement aménagé comme Bureau standard
- 4 bureaux privés
- 1 salle de conférence
- Espace en excellent état
- Ventilation et chauffage centraux
- Aire de réception
- Cuisine
- Vues sur Main Street
8e étage, bureau 802
| Surface | 111 m² |
| Durée | Négociable |
| Loyer | 151,48 € /m²/an |
| Type de bien | Bureau |
| Aménagement | - |
| Disponible | Maintenant |
Large open plan divided into three spaces. Coffee sink in office. 115 year old distressed hardwood floors throughout. Fiber in the suite.
- Le loyer comprend les services publics, les services de l’immeuble et les frais immobiliers.
- Ventilation et chauffage centraux
- Great windows in all offices
9e étage, bureau 901
| Surface | 48 m² |
| Durée | 1-5 Ans |
| Loyer | 156,07 € /m²/an |
| Type de bien | Bureau |
| Aménagement | Construction achevée |
| Disponible | Maintenant |
- Le loyer comprend les services publics, les services de l’immeuble et les frais immobiliers.
- Entièrement aménagé comme Bureau standard
- Disposition open space
- Espace en excellent état
11e étage, bureau 1100
| Surface | 105 m² |
| Durée | 3-5 Ans |
| Loyer | 151,48 € /m²/an |
| Type de bien | Bureau |
| Aménagement | Construction partielle |
| Disponible | Maintenant |
Reception area, storage and 3 above average sized offices. Great views of Main Street and the James River.
- Le loyer comprend les services publics, les services de l’immeuble et les frais immobiliers.
- Partiellement aménagé comme Bureau standard
- 3 bureaux privés
- 2 postes de travail
- Espace en excellent état
- Ventilation et chauffage centraux
- Aire de réception
- Lumière naturelle
- Emplacement de choix
14e étage, bureau 1400
| Surface | 389 m² |
| Durée | 3-5 Ans |
| Loyer | 126,23 € /m²/an |
| Type de bien | Bureau |
| Aménagement | Construction achevée |
| Disponible | Maintenant |
Large portion of the 14th (2548 SF) and front portion of the 15th (1642) floors. Served by an interior open stairwell from reception area to the additional open plan space on 15th. Kitchen and restroom with shower within suite. Some offices have 18' ceilings, some lower. Very unique space. Minor wall alteration included, plus painting and carpeting LVT. Comcast fiber in the suite.
- Le loyer comprend les services publics, les services de l’immeuble et les frais immobiliers.
- Entièrement aménagé comme Bureau standard
- 8 bureaux privés
- 1 salle de conférence
- 25 postes de travail
- Plafonds finis: 2,44 mètres - 5,49 mètres
- Ventilation et chauffage centraux
- Aire de réception
- Cuisine
- Toilettes privées
- Vues sur le James River et le Capitole de l'État.
Aperçu du bien
Historic 1910 Building in the heart of the financial district. Wonderful views of the river and Capitol building. Located next to the Federal Court of Appeals building and directly across from the Bank of America Building, near the intersection of 12th and Main Streets.
- Ligne d’autobus
- Installations de conférences
- Cour
- Property Manager sur place
- Restaurant
Informations sur l’immeuble
Présenté par
Capitol Place | 1108 E Main St
Hum, une erreur s’est produite lors de l’envoi de votre message. Veuillez réessayer.
Merci ! Votre message a été envoyé.



















