Votre e-mail a été envoyé.
Certaines informations ont été traduites automatiquement.
Informations principales sur le parc
- Heavy Daily Traffic
- Owner willing to do TI's
- Close to shopping and food
- Exterior of property fenced
- Well established neighboring tenants
Faits sur le parc
Caractéristiques
- Accès 24 h/24
- Terrain d’angle
- Terrain clôturé
- Système de sécurité
- CVC contrôlé par l’occupant
- Climatisation
Tous les espaces disponibles(2)
Afficher les loyers en
- Espace
- Surface
- Durée
- Loyer
- Type de bien
- Aménagement
- Disponible
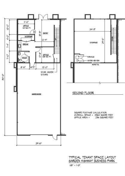
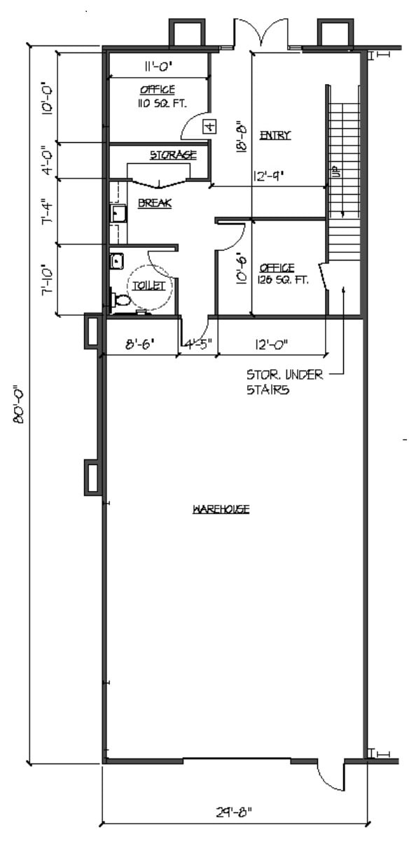
Coming Soon — Prime Commercial Space in Yuba City Position your business at one of Yuba City’s most visible locations! This 11,360± sq. ft. suite sits prominently at the intersection of Garden Highway and Epley Road, the gateway to Yuba City’s Industrial Park. Currently utilized as a church, this flexible space can easily be reconfigured into three individual suites of approximately 3,300± sq. ft. each, offering endless possibilities for office, retail, or light industrial use. With a daily traffic count exceeding 27,000 vehicles, this location provides exceptional exposure and convenient access for employees and customers alike. Highlights: 11,360± sq. ft. total space Convertible to three 3,300± sq. ft. suites Excellent visibility at a high-traffic intersection Direct entry to Yuba City’s Industrial Park Ample parking and easy access
- Espace en excellent état
- Ventilation et chauffage centraux
- Aire de réception
- Lumière naturelle
- Entrance of Yuba City Industrial Park
- Easy access for trucks and deliveries
- Monument signage and lighted parking lot
- 1 quai de chargement
- Bureaux cloisonnés
- Toilettes privées
- Détecteur de fumée
- Surrounded by long-term tenants and landscaping
- Owner willing to do TI's
- High traffic count - approximately 27,000 vehicles
Positioned at the gateway to Yuba City Industrial Park, 1100 Garden Hwy offers a highly visible and versatile leasing opportunity ideal for businesses seeking exposure and accessibility. With frontage along Garden Highway and a daily traffic count of approximately 27,000 vehicles, this property ensures strong visibility and brand presence. The current layout, formerly used as a church, can be reconfigured into three distinct suites ranging from 2,400 to 11,360 square feet. Tenants benefit from ample on-site parking, a lighted lot, landscaped grounds, and monument signage that enhances visibility from the main road. The partially fenced and gated complex supports a mix of long-term tenants and offers easy truck access, making it suitable for light industrial, retail, or service-oriented uses. Located just blocks from major freeway access, the site provides logistical convenience for deliveries and customer access. The surrounding area includes a mix of industrial users, service businesses, and residential neighborhoods, contributing to consistent traffic and demand. Whether you're expanding operations or launching a new venture, this flexible space offers the infrastructure and location to support growth. Owner is willing to do TI work if needed to suite your individual needs.
- Le loyer ne comprend pas les services publics, les frais immobiliers ou les services de l’immeuble.
- 1 quai de chargement
- Toilettes privées
- Monument signage and lighted parking lot
- Approximately 27,000 vehicles pass by daily
- Surrounded by long-term tenants and landscaping
- Espace en excellent état
- Ventilation et chauffage centraux
- At the entrance of Yuba City Industrial Park
- Flexible layout with potential for multiple suites
- Easy access for trucks and deliveries
| Espace | Surface | Durée | Loyer | Type de bien | Aménagement | Disponible |
| 1er étage – 400-800 | 223 – 1 055 m² | Négociable | Sur demande Sur demande Sur demande Sur demande | Industriel/Logistique | Construction achevée | 30 jours |
| 1er étage – 900 | 307 m² | Négociable | Sur demande Sur demande Sur demande Sur demande | Local d’activités | Construction achevée | 30 jours |
1100 Garden Hwy - 1er étage – 400-800
1100 Garden Hwy - 1er étage – 900
1100 Garden Hwy - 1er étage – 400-800
| Surface | 223 – 1 055 m² |
| Durée | Négociable |
| Loyer | Sur demande |
| Type de bien | Industriel/Logistique |
| Aménagement | Construction achevée |
| Disponible | 30 jours |
Coming Soon — Prime Commercial Space in Yuba City Position your business at one of Yuba City’s most visible locations! This 11,360± sq. ft. suite sits prominently at the intersection of Garden Highway and Epley Road, the gateway to Yuba City’s Industrial Park. Currently utilized as a church, this flexible space can easily be reconfigured into three individual suites of approximately 3,300± sq. ft. each, offering endless possibilities for office, retail, or light industrial use. With a daily traffic count exceeding 27,000 vehicles, this location provides exceptional exposure and convenient access for employees and customers alike. Highlights: 11,360± sq. ft. total space Convertible to three 3,300± sq. ft. suites Excellent visibility at a high-traffic intersection Direct entry to Yuba City’s Industrial Park Ample parking and easy access
- Espace en excellent état
- 1 quai de chargement
- Ventilation et chauffage centraux
- Bureaux cloisonnés
- Aire de réception
- Toilettes privées
- Lumière naturelle
- Détecteur de fumée
- Entrance of Yuba City Industrial Park
- Surrounded by long-term tenants and landscaping
- Easy access for trucks and deliveries
- Owner willing to do TI's
- Monument signage and lighted parking lot
- High traffic count - approximately 27,000 vehicles
1100 Garden Hwy - 1er étage – 900
| Surface | 307 m² |
| Durée | Négociable |
| Loyer | Sur demande |
| Type de bien | Local d’activités |
| Aménagement | Construction achevée |
| Disponible | 30 jours |
Positioned at the gateway to Yuba City Industrial Park, 1100 Garden Hwy offers a highly visible and versatile leasing opportunity ideal for businesses seeking exposure and accessibility. With frontage along Garden Highway and a daily traffic count of approximately 27,000 vehicles, this property ensures strong visibility and brand presence. The current layout, formerly used as a church, can be reconfigured into three distinct suites ranging from 2,400 to 11,360 square feet. Tenants benefit from ample on-site parking, a lighted lot, landscaped grounds, and monument signage that enhances visibility from the main road. The partially fenced and gated complex supports a mix of long-term tenants and offers easy truck access, making it suitable for light industrial, retail, or service-oriented uses. Located just blocks from major freeway access, the site provides logistical convenience for deliveries and customer access. The surrounding area includes a mix of industrial users, service businesses, and residential neighborhoods, contributing to consistent traffic and demand. Whether you're expanding operations or launching a new venture, this flexible space offers the infrastructure and location to support growth. Owner is willing to do TI work if needed to suite your individual needs.
- Le loyer ne comprend pas les services publics, les frais immobiliers ou les services de l’immeuble.
- Espace en excellent état
- 1 quai de chargement
- Ventilation et chauffage centraux
- Toilettes privées
- At the entrance of Yuba City Industrial Park
- Monument signage and lighted parking lot
- Flexible layout with potential for multiple suites
- Approximately 27,000 vehicles pass by daily
- Easy access for trucks and deliveries
- Surrounded by long-term tenants and landscaping
Sélectionner des occupants à ce bien
- Étage
- Nom de l’occupant
- Secteur d’activité
- 1er
- Centerline Industrial Product
- Manufacture
- 1er
- Golden Gate Electrical Services
- Construction
- 1er
- Harjit International
- Grossiste
- 1er
- Hernandez Boxing
- Arts, divertissement et loisirs
- 1er
- Immortal
- Hébergement et restauration
- 1er
- LINE-X
- Services
- 1er
- Norcal Basketball
- Arts, divertissement et loisirs
- 1er
- Sightpath Medical
- Services professionnels, scientifiques et techniques
- 1er
- Venetian Stone and Tile
- Construction
Vue d’ensemble du parc
Versatile Commercial Suite Approximately 11,360± sq. ft. available at the intersection of Garden Highway and Epley Road, located at the entrance to Yuba City’s Industrial Park. Currently utilized as a church, the space can be reconfigured into three individual suites of approximately 3,300± sq. ft. each. This high-visibility location benefits from a daily traffic count of over 27,000 vehicles, offering excellent exposure and accessibility.
Présenté par
1100 Garden Hwy | Yuba City, CA 95991
Hum, une erreur s’est produite lors de l’envoi de votre message. Veuillez réessayer.
Merci ! Votre message a été envoyé.





