Votre e-mail a été envoyé.
Certaines informations ont été traduites automatiquement.
Informations principales
- Ground-floor suite on busy Route 35
- Minutes to downtown Red Bank, shopping, dining, and major highways
- 915 sq. ft. open floor plan
- Excellent exposure with high traffic counts
- Ample on-site parking for clients & staff
- Freshly painted & carpeted, move-in ready
Tous les espace disponibles(1)
Afficher les loyers en
- Espace
- Surface
- Durée
- Loyer
- Type de bien
- Aménagement
- Disponible
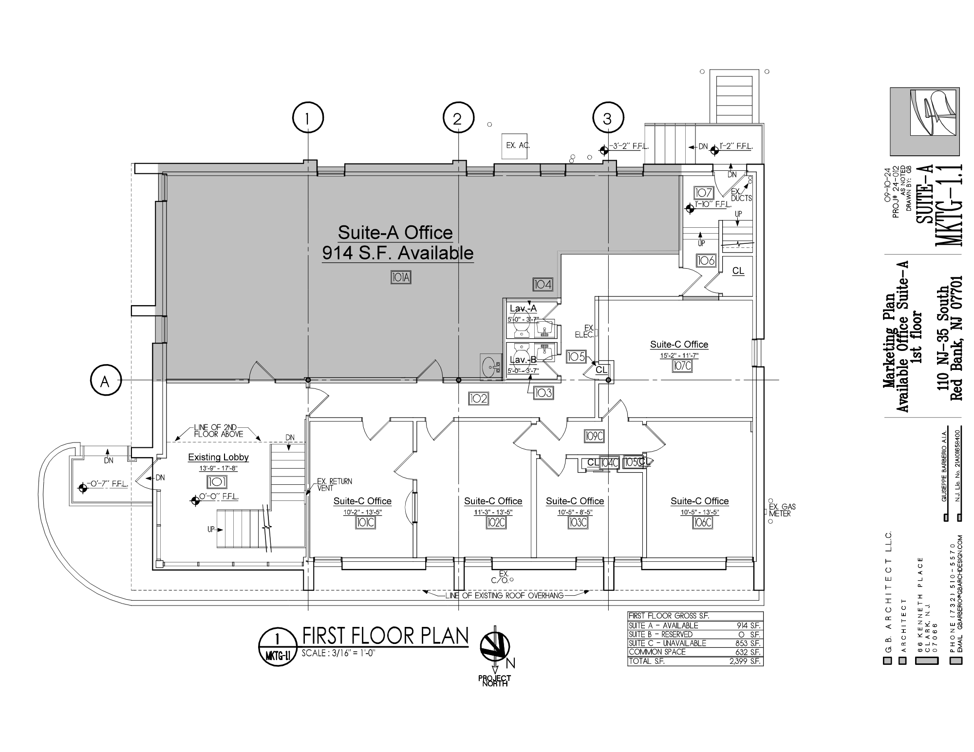
Prime 914 sq. ft. ground-floor suite at 110 NJ-35, Red Bank. This open, versatile space has been freshly painted and carpeted, offering a professional setting ready for immediate occupancy. Perfect for office, medical, or retail use, the property provides excellent visibility along Route 35 with high daily traffic counts. Ample on-site parking ensures convenience for clients and staff. Just minutes from downtown Red Bank, restaurants, shopping, and major roadways, this location combines accessibility, exposure, and functionality.
- Il est possible que le loyer annoncé ne comprenne pas certains services publics, services d’immeuble et frais immobiliers.
- Disposition open space
- Espace en excellent état
- Entièrement moquetté
- Hauts plafonds
- Éclairage d’urgence
- Partiellement aménagé comme Bureau standard
- Convient pour 3 à 8 personnes
- Climatisation centrale
- Espace d’angle
- Lumière naturelle
- Open space
| Espace | Surface | Durée | Loyer | Type de bien | Aménagement | Disponible |
| 1er étage, bureau A | 85 m² | Négociable | 257,06 € /m²/an 21,42 € /m²/mois 21 827 € /an 1 819 € /mois | Bureau | Construction partielle | Maintenant |
1er étage, bureau A
| Surface |
| 85 m² |
| Durée |
| Négociable |
| Loyer |
| 257,06 € /m²/an 21,42 € /m²/mois 21 827 € /an 1 819 € /mois |
| Type de bien |
| Bureau |
| Aménagement |
| Construction partielle |
| Disponible |
| Maintenant |
1er étage, bureau A
| Surface | 85 m² |
| Durée | Négociable |
| Loyer | 257,06 € /m²/an |
| Type de bien | Bureau |
| Aménagement | Construction partielle |
| Disponible | Maintenant |
Prime 914 sq. ft. ground-floor suite at 110 NJ-35, Red Bank. This open, versatile space has been freshly painted and carpeted, offering a professional setting ready for immediate occupancy. Perfect for office, medical, or retail use, the property provides excellent visibility along Route 35 with high daily traffic counts. Ample on-site parking ensures convenience for clients and staff. Just minutes from downtown Red Bank, restaurants, shopping, and major roadways, this location combines accessibility, exposure, and functionality.
- Il est possible que le loyer annoncé ne comprenne pas certains services publics, services d’immeuble et frais immobiliers.
- Partiellement aménagé comme Bureau standard
- Disposition open space
- Convient pour 3 à 8 personnes
- Espace en excellent état
- Climatisation centrale
- Entièrement moquetté
- Espace d’angle
- Hauts plafonds
- Lumière naturelle
- Éclairage d’urgence
- Open space
Aperçu du bien
Prime 915 sq. ft. ground-floor suite at 110 NJ-35, Red Bank. This open, versatile space has been freshly painted and carpeted, offering a professional setting ready for immediate occupancy. Perfect for office, medical, or retail use, the property provides excellent visibility along Route 35 with high daily traffic counts. Ample on-site parking ensures convenience for clients and staff. Just minutes from downtown Red Bank, restaurants, shopping, and major roadways, this location combines accessibility, exposure, and functionality.
- Property Manager sur place
- Climatisation
- Détecteur de fumée
Informations sur l’immeuble
Présenté par
110 Route 35
Hum, une erreur s’est produite lors de l’envoi de votre message. Veuillez réessayer.
Merci ! Votre message a été envoyé.






