Votre e-mail a été envoyé.
Certaines informations ont été traduites automatiquement.
Informations principales
- 210 places de parking en surface gratuites sont disponibles.
- À moins d'une heure de 3 aéroports : Dulles, Ronald Reagan et Baltimore Washington.
- Accès très facile au périphérique et à proximité de nombreux commerces.
- Arrêt de bus à la porte et à proximité du Silver Spring et du Kensington Commuter Rail.
Tous les espaces disponibles(5)
Afficher les loyers en
- Espace
- Surface
- Durée
- Loyer
- Type de bien
- Aménagement
- Disponible
- Loyer annoncé plus part proportionnelle des coûts de nettoyage
- Loyer annoncé plus part proportionnelle des coûts des services publics et du nettoyage
Suite 210 is a flexible space suitable for medical or office use, featuring one private office complemented by a reception and waiting area. The layout includes a workstation area, three exam rooms, a breakroom, and a bathroom for convenience. Additional amenities include a utility closet, making this suite well-equipped for professional or healthcare operations.
- Entièrement aménagé comme Cabinet médical standard
- 1 poste de travail
- Toilettes privées
- 1 bureau privé
- Aire de réception
Recently built out medical suite.
- Le loyer comprend les services publics, les services de l’immeuble et les frais immobiliers.
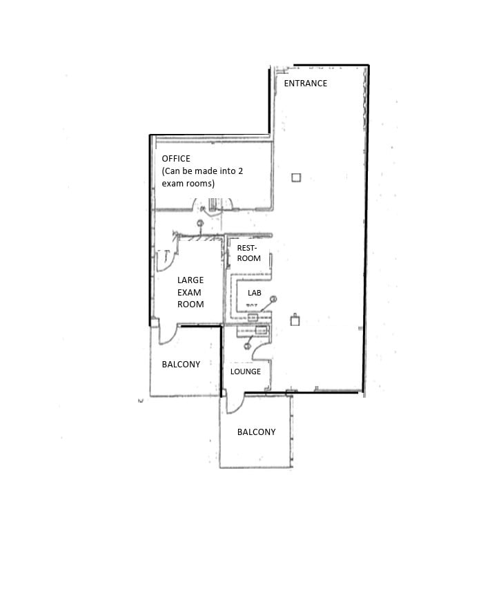
Suite 325 offers a versatile layout featuring an existing office that can be converted into two exam rooms, a large exam room, and two private balconies. The space includes a lounge area, dedicated lab space, and a private restroom for convenience. At the entrance, patients are welcomed by a waiting area and reception space, creating an efficient and comfortable environment for medical or professional use.
- Le loyer comprend les services publics, les services de l’immeuble et les frais immobiliers.
- Toilettes privées
- Entièrement aménagé comme Cabinet médical standard
- Balcon
| Espace | Surface | Durée | Loyer | Type de bien | Aménagement | Disponible |
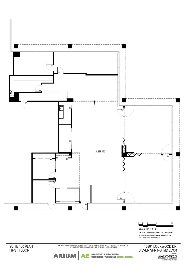
| 1er étage, bureau 150 | 232 – 393 m² | Négociable | 313,23 € /m²/an 26,10 € /m²/mois 123 091 € /an 10 258 € /mois | Bureau | - | 30 jours |
| 1er étage, bureau 190 | 112 m² | Négociable | 313,23 € /m²/an 26,10 € /m²/mois 35 210 € /an 2 934 € /mois | Bureaux/Médical | - | Maintenant |
| 2e étage, bureau 210 | 122 m² | Négociable | 294,80 € /m²/an 24,57 € /m²/mois 36 097 € /an 3 008 € /mois | Bureaux/Médical | Construction achevée | Maintenant |
| 2e étage, bureau 285 | 169 m² | 3-10 Ans | 294,80 € /m²/an 24,57 € /m²/mois 49 682 € /an 4 140 € /mois | Médical | - | Maintenant |
| 3e étage, bureau 325 | 207 m² | 3-10 Ans | 294,80 € /m²/an 24,57 € /m²/mois 61 075 € /an 5 090 € /mois | Bureaux/Médical | Construction achevée | Maintenant |
1er étage, bureau 150
| Surface |
| 232 – 393 m² |
| Durée |
| Négociable |
| Loyer |
| 313,23 € /m²/an 26,10 € /m²/mois 123 091 € /an 10 258 € /mois |
| Type de bien |
| Bureau |
| Aménagement |
| - |
| Disponible |
| 30 jours |
1er étage, bureau 190
| Surface |
| 112 m² |
| Durée |
| Négociable |
| Loyer |
| 313,23 € /m²/an 26,10 € /m²/mois 35 210 € /an 2 934 € /mois |
| Type de bien |
| Bureaux/Médical |
| Aménagement |
| - |
| Disponible |
| Maintenant |
2e étage, bureau 210
| Surface |
| 122 m² |
| Durée |
| Négociable |
| Loyer |
| 294,80 € /m²/an 24,57 € /m²/mois 36 097 € /an 3 008 € /mois |
| Type de bien |
| Bureaux/Médical |
| Aménagement |
| Construction achevée |
| Disponible |
| Maintenant |
2e étage, bureau 285
| Surface |
| 169 m² |
| Durée |
| 3-10 Ans |
| Loyer |
| 294,80 € /m²/an 24,57 € /m²/mois 49 682 € /an 4 140 € /mois |
| Type de bien |
| Médical |
| Aménagement |
| - |
| Disponible |
| Maintenant |
3e étage, bureau 325
| Surface |
| 207 m² |
| Durée |
| 3-10 Ans |
| Loyer |
| 294,80 € /m²/an 24,57 € /m²/mois 61 075 € /an 5 090 € /mois |
| Type de bien |
| Bureaux/Médical |
| Aménagement |
| Construction achevée |
| Disponible |
| Maintenant |
1er étage, bureau 150
| Surface | 232 – 393 m² |
| Durée | Négociable |
| Loyer | 313,23 € /m²/an |
| Type de bien | Bureau |
| Aménagement | - |
| Disponible | 30 jours |
- Loyer annoncé plus part proportionnelle des coûts de nettoyage
1er étage, bureau 190
| Surface | 112 m² |
| Durée | Négociable |
| Loyer | 313,23 € /m²/an |
| Type de bien | Bureaux/Médical |
| Aménagement | - |
| Disponible | Maintenant |
- Loyer annoncé plus part proportionnelle des coûts des services publics et du nettoyage
2e étage, bureau 210
| Surface | 122 m² |
| Durée | Négociable |
| Loyer | 294,80 € /m²/an |
| Type de bien | Bureaux/Médical |
| Aménagement | Construction achevée |
| Disponible | Maintenant |
Suite 210 is a flexible space suitable for medical or office use, featuring one private office complemented by a reception and waiting area. The layout includes a workstation area, three exam rooms, a breakroom, and a bathroom for convenience. Additional amenities include a utility closet, making this suite well-equipped for professional or healthcare operations.
- Entièrement aménagé comme Cabinet médical standard
- 1 bureau privé
- 1 poste de travail
- Aire de réception
- Toilettes privées
2e étage, bureau 285
| Surface | 169 m² |
| Durée | 3-10 Ans |
| Loyer | 294,80 € /m²/an |
| Type de bien | Médical |
| Aménagement | - |
| Disponible | Maintenant |
Recently built out medical suite.
- Le loyer comprend les services publics, les services de l’immeuble et les frais immobiliers.
3e étage, bureau 325
| Surface | 207 m² |
| Durée | 3-10 Ans |
| Loyer | 294,80 € /m²/an |
| Type de bien | Bureaux/Médical |
| Aménagement | Construction achevée |
| Disponible | Maintenant |
Suite 325 offers a versatile layout featuring an existing office that can be converted into two exam rooms, a large exam room, and two private balconies. The space includes a lounge area, dedicated lab space, and a private restroom for convenience. At the entrance, patients are welcomed by a waiting area and reception space, creating an efficient and comfortable environment for medical or professional use.
- Le loyer comprend les services publics, les services de l’immeuble et les frais immobiliers.
- Entièrement aménagé comme Cabinet médical standard
- Toilettes privées
- Balcon
Aperçu du bien
Cet immeuble de bureaux situé sur Lockwood Drive est idéalement situé dans le sous-marché de North Silver Spring, à seulement 1,6 km du périphérique. L'établissement se trouve également à quelques minutes de l'hôpital Holy Cross et à quelques pas des boutiques et des restaurants. L'établissement dispose de balcons utilisables et d'un système de climatisation individuel après les heures d'ouverture, ainsi que d'un excellent accès après les heures de bureau pour les clients, les patients et les visiteurs.
- Atrium
- Panneau monumental
- Balcon
Informations sur l’immeuble
Présenté par
Colewood Centre | 10801 Lockwood Dr
Hum, une erreur s’est produite lors de l’envoi de votre message. Veuillez réessayer.
Merci ! Votre message a été envoyé.









