Votre e-mail a été envoyé.
Certaines informations ont été traduites automatiquement.
INFORMATIONS PRINCIPALES SUR LE PARC
- Situé dans le centre-ville de Narberth, à proximité de nombreux restaurants, boutiques et entreprises
- Facilement accessible aux autoroutes I-76, 476, 422 et à l'autoroute à péage PA
- Le lac Sep's Paoli/Thorndale est situé à seulement 100 mètres
- Score de marche : Walkers Paradise (90)
FAITS SUR LE PARC
TOUS LES ESPACES DISPONIBLES(2)
Afficher les loyers en
- ESPACE
- SURFACE
- DURÉE
- LOYER
- TYPE DE BIEN
- ÉTAT
- DISPONIBLE
- Loyer annoncé plus part proportionnelle des coûts de la consommation électrique
- Disposition open space
- Entièrement aménagé comme Bureau standard
| Espace | Surface | Durée | Loyer | Type de bien | État | Disponible |
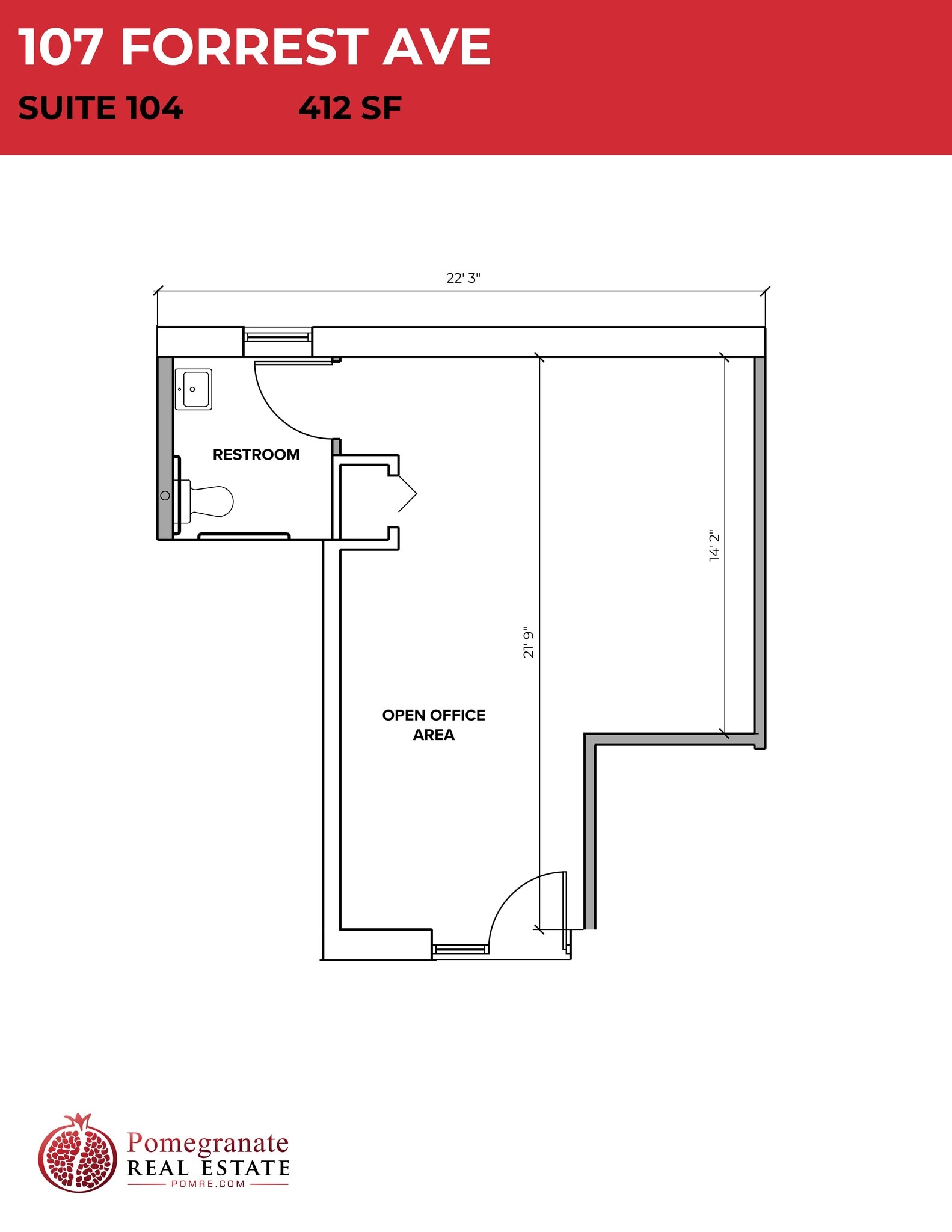
| 1er étage, bureau 104 | 38 m² | Négociable | 320,64 € /m²/an 26,72 € /m²/mois 12 273 € /an 1 023 € /mois | Bureau | Construction achevée | 01/01/2026 |
107-113 Forrest Ave - 1er étage – Bureau 104
- ESPACE
- SURFACE
- DURÉE
- LOYER
- TYPE DE BIEN
- ÉTAT
- DISPONIBLE
- Loyer annoncé plus part proportionnelle des coûts de la consommation électrique
- Principalement open space
- Cuisine
- Hauts plafonds
- Entièrement aménagé comme Bureau de services professionnels
- Espace en excellent état
- Toilettes privées
- Plafonds voûtés ouverts
| Espace | Surface | Durée | Loyer | Type de bien | État | Disponible |
| 2e étage, bureau 200 | 209 m² | 2-5 Ans | 265,67 € /m²/an 22,14 € /m²/mois 55 534 € /an 4 628 € /mois | Bureau | Construction achevée | En attente |
105 Forrest Ave - 2e étage – Bureau 200
107-113 Forrest Ave - 1er étage – Bureau 104
| Surface | 38 m² |
| Durée | Négociable |
| Loyer | 320,64 € /m²/an |
| Type de bien | Bureau |
| État | Construction achevée |
| Disponible | 01/01/2026 |
- Loyer annoncé plus part proportionnelle des coûts de la consommation électrique
- Entièrement aménagé comme Bureau standard
- Disposition open space
105 Forrest Ave - 2e étage – Bureau 200
| Surface | 209 m² |
| Durée | 2-5 Ans |
| Loyer | 265,67 € /m²/an |
| Type de bien | Bureau |
| État | Construction achevée |
| Disponible | En attente |
- Loyer annoncé plus part proportionnelle des coûts de la consommation électrique
- Entièrement aménagé comme Bureau de services professionnels
- Principalement open space
- Espace en excellent état
- Cuisine
- Toilettes privées
- Hauts plafonds
- Plafonds voûtés ouverts
VUE D’ENSEMBLE DU PARC
Les meilleurs petits immeubles de bureaux de Narberth sont situés sur Forrest Avenue, dans l'arrondissement de Narberth. Il comprend une série de quatre bâtiments historiques qui ont été convertis en bureaux. Des suites de différentes tailles sont disponibles, chacune étant unique. Ces bureaux sont idéaux pour les entrepreneurs qui souhaitent desservir les résidents de la ligne principale. L'arrondissement de Narberth est situé dans le canton de Lower Merion, dans le comté de Montgomery. Il se trouve à l'extrémité ouest de la ville de Philadelphie, sur la Main Line, une série de banlieues pittoresques qui s'étendent de Philadelphie le long du chemin de fer de Pennsylvanie. * Situé dans le centre-ville de Narberth, à proximité de nombreux restaurants, boutiques et entreprises * Le lac Sep's Paoli/Thorndale est situé à seulement 350 pieds * Facilement accessible aux autoroutes I-76, 476, 422 et à l'autoroute à péage PA * Score de marche : Walkers Paradise (90)
- Accès 24 h/24
- CVC contrôlé par l’occupant
- Climatisation
Présenté par
Forrest Ave | Narberth, PA 19072
Hum, une erreur s’est produite lors de l’envoi de votre message. Veuillez réessayer.
Merci ! Votre message a été envoyé.






