Votre e-mail a été envoyé.
105 S First Colonial Rd Industriel/Logistique | 279 m² | 268 093 € | À vendre | Virginia Beach, VA 23454



Certaines informations ont été traduites automatiquement.
INFORMATIONS PRINCIPALES SUR L'INVESTISSEMENT
- newly renovated
RÉSUMÉ ANALYTIQUE
FOR SALE: Prime Commercial Office Condo | I-1 Zoning | Hilltop Area – Virginia Beach Blvd Tennant in place with a Lease until 10/01/2027 Paying $2550/month with a 90 Days cancelation term notice. ?? Location: Virginia Beach Blvd near Hilltop ?? Zoning: I-1 Light Industrial | APZ-1 ?? Access: Minutes to I-264, Oceanfront, Oceana, and major commercial corridors Property Highlights: Versatile Commercial Condo in highly desirable Hilltop area Zoned I-1 (Light Industrial) with APZ-1 overlay – suitable for office, flex space, service business, light warehousing, or contractor use Potential to install roll-up doors for added functionality Ideal for small businesses, owner-users, or investors Ample on-site parking and efficient layout Easy access to highways, major retailers, and business hubs
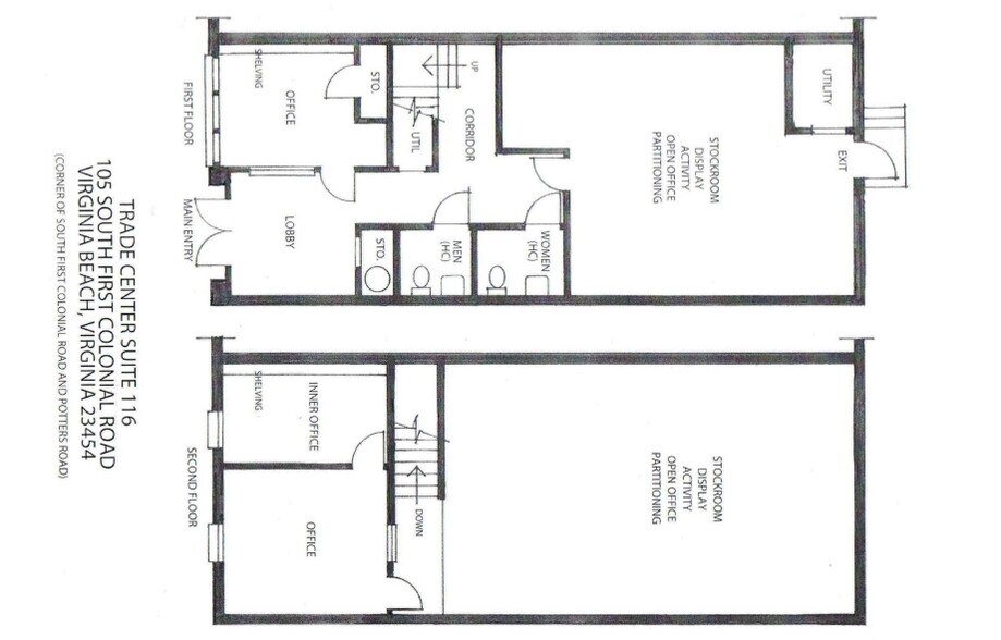
INFORMATIONS SUR L’IMMEUBLE
| Surface totale de l’immeuble | 1 124 m² | Surface type par étage | 139 m² |
| Type de bien | Local d'activités (Lot en copropriété) | Année de construction | 1984 |
| Classe d’immeuble | C | Ratio de stationnement | 0,93/1 000 m² |
| Étages | 2 | Zone de développement économique [USA] |
Oui
|
| Zonage | I-1, APZ-1 - Industrie légère | ||
| Surface totale de l’immeuble | 1 124 m² |
| Type de bien | Local d'activités (Lot en copropriété) |
| Classe d’immeuble | C |
| Étages | 2 |
| Surface type par étage | 139 m² |
| Année de construction | 1984 |
| Ratio de stationnement | 0,93/1 000 m² |
| Zone de développement économique [USA] |
Oui |
| Zonage | I-1, APZ-1 - Industrie légère |
CARACTÉRISTIQUES
- Accès 24 h/24
1 LOT DISPONIBLE
Lot 116
| Surface du lot | 279 m² | Usage du lot en coprop. | Industriel/Logistique |
| Prix | 268 093 € | Type de vente | Investissement ou propriétaire occupant |
| Prix par m² | 961,91 € |
| Surface du lot | 279 m² |
| Prix | 268 093 € |
| Prix par m² | 961,91 € |
| Usage du lot en coprop. | Industriel/Logistique |
| Type de vente | Investissement ou propriétaire occupant |
DESCRIPTION
Location: Virginia Beach Blvd near Hilltop
Zoning: I-1 Light Industrial | APZ-1
Tennant in place with a Lease until 10/01/2027 Paying $2550/month with a 90 Days cancelation term notice.
Access: Minutes to I-264, Oceanfront, Oceana, and major commercial corridors
Property Highlights:
Versatile Commercial Condo in highly desirable Hilltop area
Zoned I-1 (Light Industrial) with APZ-1 overlay – suitable for office, flex space, service business, light warehousing, or contractor use
Potential to install roll-up doors for added functionality
Ideal for small businesses, owner-users, or investors
Ample on-site parking and efficient layout
Easy access to highways, major retailers, and business hubs
NOTES SUR LA VENTE
Location: Virginia Beach Blvd near Hilltop
Tennant in place with a Lease until 10/01/2027 Paying $2550/month with a 90 Days cancelation term notice.
Zoning: I-1 Light Industrial | APZ-1
Access: Minutes to I-264, Oceanfront, Oceana, and major commercial corridors
Property Highlights:
Versatile Commercial Condo in highly desirable Hilltop area
Zoned I-1 (Light Industrial) with APZ-1 overlay – suitable for office, flex space, service business, light warehousing, or contractor use
Potential to install roll-up doors for added functionality
Ideal for small businesses, owner-users, or investors
Ample on-site parking and efficient layout
Easy access to highways, major retailers, and business hubs
main
3-web-or-mls-IMG_9164
1-web-or-mls-IMG_9174
Lobby
First Floor Office
First Floor Studio room
First Floor Studio room
First Floor Studio room
18-web-or-mls-IMG_9089
Second Floor Room
Second Floor Room
Second Floor Room
Second Floor Room
Second Floor Office
Second floor Office
Second Floor Office
Second Floor 2nd Office
Second Floor 2nd Office
21-web-or-mls-IMG_9074
20-web-or-mls-IMG_9079
19-web-or-mls-IMG_9084
INFORMATIONS IMPORTANTES SUR L’OCCUPANT
| OCCUPANT | m² OCCUPÉS | DATE DE FIN DE BAIL |
|---|---|---|
| Road Reapers |
-
|
avril 2019
|
Présenté par
Akela llc
105 S First Colonial Rd
Hum, une erreur s’est produite lors de l’envoi de votre message. Veuillez réessayer.
Merci ! Votre message a été envoyé.

