Votre e-mail a été envoyé.
Certaines informations ont été traduites automatiquement.
Tous les espaces disponibles(2)
Afficher les loyers en
- Espace
- Surface
- Durée
- Loyer
- Type de bien
- Aménagement
- Disponible
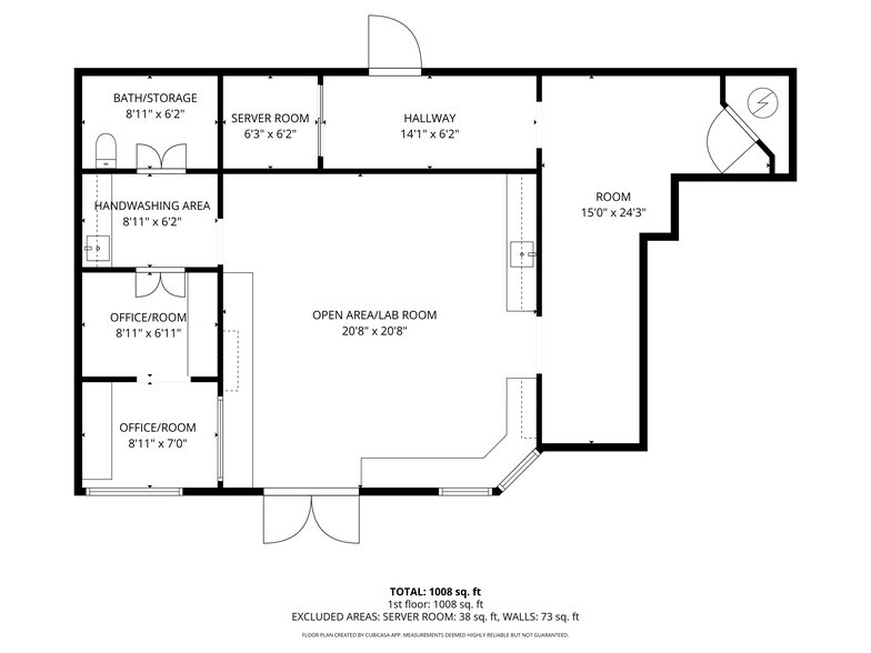
Suite 106 was previously utilized as a laboratory. The attached floorplan reflects the former layout, which is currently being opened up as the landlord removes walls to allow flexible reconfiguration for future tenant needs. Ideally situated between Loop 1604 and North Central Baptist Hospital, the property offers excellent visibility and accessibility for a variety of professional users. For those requiring additional space, Suite 108 is also available and may be combined. Reserved employee parking and ample customer parking are provided. Lease Breakdown: $20.00/SF+10.60NNN ($1,633.33/Month Base Rent + $865.67NNN = $2,499.00/Month)+$250/month for CPS Electric Bill.
- Le loyer ne comprend pas les services publics, les frais immobiliers ou les services de l’immeuble.
- Laboratoire
- Espace nécessitant des rénovations
- Connectivité Wi-Fi
Suite 108 offers a functional layout with a reception area, multiple private offices, a conference room, kitchenette, and single restroom. Reserved employee parking and ample customer parking are available. For those requiring additional or specialized space, Suite 106 is also available in the building and was previously used as a lab. The suite can be combined or reconfigured to accommodate tenant needs, subject to terms and approvals.
- Le loyer ne comprend pas les services publics, les frais immobiliers ou les services de l’immeuble.
- Ventilation et chauffage centraux
- Connectivité Wi-Fi
- Lumière naturelle
- Accessible fauteuils roulants
- Salles de conférence
- Aire de réception
- Toilettes privées
- Détecteur de fumée
| Espace | Surface | Durée | Loyer | Type de bien | Aménagement | Disponible |
| 1er étage, bureau 106 | 91 m² | 2-3 Ans | 186,84 € /m²/an 15,57 € /m²/mois 17 011 € /an 1 418 € /mois | Bureau | - | Maintenant |
| 1er étage, bureau 108 | 144 m² | 2-3 Ans | 186,84 € /m²/an 15,57 € /m²/mois 26 905 € /an 2 242 € /mois | Bureau | - | Maintenant |
1er étage, bureau 106
| Surface |
| 91 m² |
| Durée |
| 2-3 Ans |
| Loyer |
| 186,84 € /m²/an 15,57 € /m²/mois 17 011 € /an 1 418 € /mois |
| Type de bien |
| Bureau |
| Aménagement |
| - |
| Disponible |
| Maintenant |
1er étage, bureau 108
| Surface |
| 144 m² |
| Durée |
| 2-3 Ans |
| Loyer |
| 186,84 € /m²/an 15,57 € /m²/mois 26 905 € /an 2 242 € /mois |
| Type de bien |
| Bureau |
| Aménagement |
| - |
| Disponible |
| Maintenant |
1er étage, bureau 106
| Surface | 91 m² |
| Durée | 2-3 Ans |
| Loyer | 186,84 € /m²/an |
| Type de bien | Bureau |
| Aménagement | - |
| Disponible | Maintenant |
Suite 106 was previously utilized as a laboratory. The attached floorplan reflects the former layout, which is currently being opened up as the landlord removes walls to allow flexible reconfiguration for future tenant needs. Ideally situated between Loop 1604 and North Central Baptist Hospital, the property offers excellent visibility and accessibility for a variety of professional users. For those requiring additional space, Suite 108 is also available and may be combined. Reserved employee parking and ample customer parking are provided. Lease Breakdown: $20.00/SF+10.60NNN ($1,633.33/Month Base Rent + $865.67NNN = $2,499.00/Month)+$250/month for CPS Electric Bill.
- Le loyer ne comprend pas les services publics, les frais immobiliers ou les services de l’immeuble.
- Espace nécessitant des rénovations
- Laboratoire
- Connectivité Wi-Fi
1er étage, bureau 108
| Surface | 144 m² |
| Durée | 2-3 Ans |
| Loyer | 186,84 € /m²/an |
| Type de bien | Bureau |
| Aménagement | - |
| Disponible | Maintenant |
Suite 108 offers a functional layout with a reception area, multiple private offices, a conference room, kitchenette, and single restroom. Reserved employee parking and ample customer parking are available. For those requiring additional or specialized space, Suite 106 is also available in the building and was previously used as a lab. The suite can be combined or reconfigured to accommodate tenant needs, subject to terms and approvals.
- Le loyer ne comprend pas les services publics, les frais immobiliers ou les services de l’immeuble.
- Salles de conférence
- Ventilation et chauffage centraux
- Aire de réception
- Connectivité Wi-Fi
- Toilettes privées
- Lumière naturelle
- Détecteur de fumée
- Accessible fauteuils roulants
Aperçu du bien
Located in the heart of Stone Oak/Sonterra, this professional medical office space offers prominent monument signage and excellent visibility. The well-established building sits at the corner of Stone Oak Parkway and Gallery Circle. Multiple medical tenants, such as Alamo Specialty Pharmacy and Stone Oak Urgent Care Family Practice, create a strong healthcare presence in the building. Reserved employee parking and ample customer parking are available. Ideally situated between Loop 1604 and North Central Baptist Hospital, this property offers excellent visibility and accessibility for a variety of professional users.
- Ligne d’autobus
- Signalisation
Informations sur l’immeuble
Occupants
- Étage
- Nom de l’occupant
- Secteur d’activité
- 1er
- Alamo Specialty Pharmacy
- Santé et assistance sociale
- 1er
- Stone Oak Urgent Care & Family Practice
- Santé et assistance sociale
Présenté par
104 Gallery Cir
Hum, une erreur s’est produite lors de l’envoi de votre message. Veuillez réessayer.
Merci ! Votre message a été envoyé.










