Votre e-mail a été envoyé.
Certaines informations ont été traduites automatiquement.
Informations principales
- Bâtiment de laboratoire à locataires multiples de classe A
- Accès à des sentiers de randonnée offrant une vue imprenable
- Signalisation des monuments disponible
- Emplacement prestigieux de Torrey Pines avec accès direct à l'Interstate 5, à l'UCSD, à La Jolla et à Del Mar
Caractéristiques
Tous les espaces disponibles(2)
Afficher les loyers en
- Espace
- Surface
- Durée
- Loyer
- Type de bien
- Aménagement
- Disponible
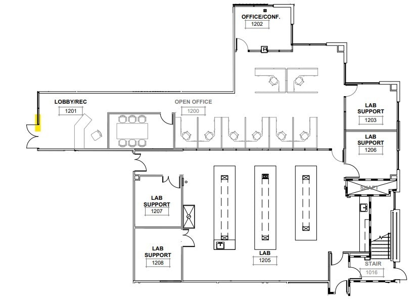
Lab/office suite with furniture available. 50/50 lab to office ratio. Office includes conference room, 2 private offices and open work area. Lab includes 3 support rooms and 1 fume hood.
- Bureaux cloisonnés
- Salles de conférence
- Laboratoire
Lab/office suite available 3/2026.
- Espace en excellent état
| Espace | Surface | Durée | Loyer | Type de bien | Aménagement | Disponible |
| 1er étage – 120 | 482 m² | Négociable | Sur demande Sur demande Sur demande Sur demande | Local d’activités | Construction achevée | Maintenant |
| 1er étage – 130 | 388 m² | Négociable | Sur demande Sur demande Sur demande Sur demande | Local d’activités | Construction partielle | Maintenant |
1er étage – 120
| Surface |
| 482 m² |
| Durée |
| Négociable |
| Loyer |
| Sur demande Sur demande Sur demande Sur demande |
| Type de bien |
| Local d’activités |
| Aménagement |
| Construction achevée |
| Disponible |
| Maintenant |
1er étage – 130
| Surface |
| 388 m² |
| Durée |
| Négociable |
| Loyer |
| Sur demande Sur demande Sur demande Sur demande |
| Type de bien |
| Local d’activités |
| Aménagement |
| Construction partielle |
| Disponible |
| Maintenant |
1er étage – 120
| Surface | 482 m² |
| Durée | Négociable |
| Loyer | Sur demande |
| Type de bien | Local d’activités |
| Aménagement | Construction achevée |
| Disponible | Maintenant |
Lab/office suite with furniture available. 50/50 lab to office ratio. Office includes conference room, 2 private offices and open work area. Lab includes 3 support rooms and 1 fume hood.
- Bureaux cloisonnés
- Laboratoire
- Salles de conférence
1er étage – 130
| Surface | 388 m² |
| Durée | Négociable |
| Loyer | Sur demande |
| Type de bien | Local d’activités |
| Aménagement | Construction partielle |
| Disponible | Maintenant |
Lab/office suite available 3/2026.
- Espace en excellent état
Aperçu du bien
Le Torrey Pines Science Center est un campus de cinq bâtiments comprenant le 3595 John Hopkins Court, le 10410, le 10450, le 10355 et le 10275 Science Center Drive. Les bâtiments représentent certains des actifs les plus récents de Healthpeak à San Diego. Les bâtiments sont situés au cœur du célèbre marché de Torrey Pines et sont facilement accessibles depuis l'I-5.
Informations sur l’immeuble
Présenté par
10355 Science Center Dr
Hum, une erreur s’est produite lors de l’envoi de votre message. Veuillez réessayer.
Merci ! Votre message a été envoyé.








