Connectez-vous/S’inscrire
Votre e-mail a été envoyé.
Certaines informations ont été traduites automatiquement.
Informations principales sur la sous-location
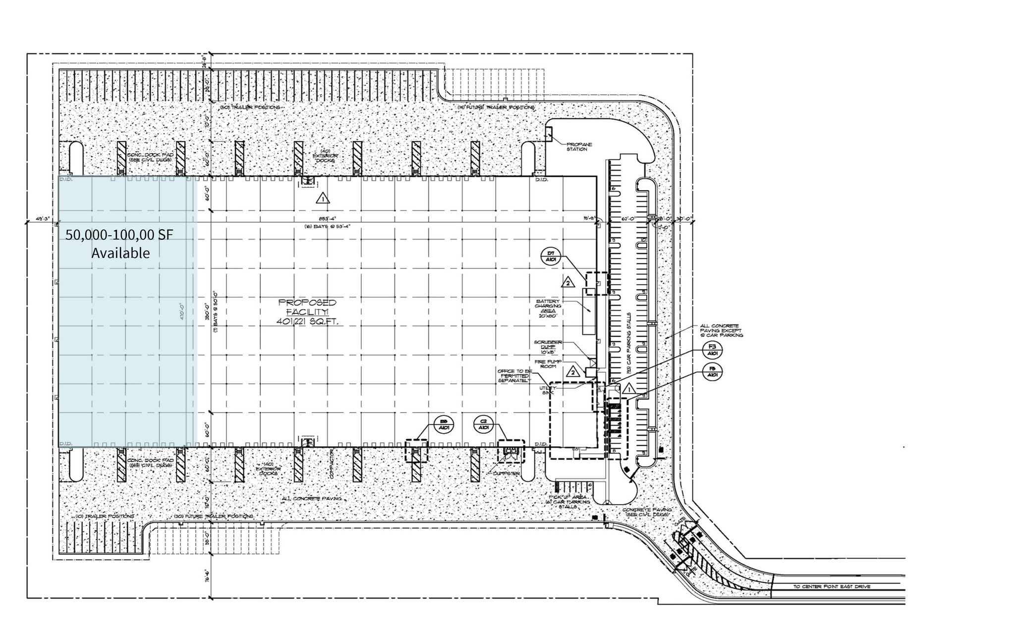
- Building depth: 468'
- Truck court: 185'
- 20 dock doors with 35,000 lb. capacity levelers
- Speed bay: 60'
- High efficiency T-5 light fixtures with motion sensors
Caractéristiques
Hauteur libre
9,75 m
Étage d’entrepôt
0,18 m
Accès plain-pied
2
Portes de quai de chargement extérieures
20
Places de stationnement standard
108
Tous les espace disponibles(1)
Afficher les loyers en
- Espace
- Surface
- Durée
- Loyer
- Type de bien
- Aménagement
- Disponible
- Espace en sous-location disponible auprès de l’occupant actuel
- Le loyer ne comprend pas les services publics, les frais immobiliers ou les services de l’immeuble.
| Espace | Surface | Durée | Loyer | Type de bien | Aménagement | Disponible |
| 1er étage | 9 290 m² | Négociable | Sur demande Sur demande Sur demande Sur demande | Industriel/Logistique | - | Maintenant |
1er étage
| Surface |
| 9 290 m² |
| Durée |
| Négociable |
| Loyer |
| Sur demande Sur demande Sur demande Sur demande |
| Type de bien |
| Industriel/Logistique |
| Aménagement |
| - |
| Disponible |
| Maintenant |
1 sur 1
Vidéos
Visite extérieure 3D Matterport
Visite 3D
Photos
Street view
Rue
Carte
1er étage
| Surface | 9 290 m² |
| Durée | Négociable |
| Loyer | Sur demande |
| Type de bien | Industriel/Logistique |
| Aménagement | - |
| Disponible | Maintenant |
- Espace en sous-location disponible auprès de l’occupant actuel
- Le loyer ne comprend pas les services publics, les frais immobiliers ou les services de l’immeuble.
Faits sur l’installation entrepôt
Surface de l’immeuble
37 275 m²
Surface du lot
10,27 ha
Année de construction
2017
Terrain de camion
56,39 m
Système de sprinkler
ESFR
Zonage
LIGHT INDU
Occupants
- Étage
- Nom de l’occupant
- Secteur d’activité
- 1er
- Emser Tile
- Construction
1 1
Not walkable
10/100
Exceptionally drivable
100/100
Somewhat bikeable
20/100
1 sur 6
Vidéos
Visite extérieure 3D Matterport
Visite 3D
Photos
Street view
Rue
Carte
1 sur 1
Présenté par
1020 Centerpoint Dr
Vous êtes déjà membre ? Connectez-vous
Hum, une erreur s’est produite lors de l’envoi de votre message. Veuillez réessayer.
Merci ! Votre message a été envoyé.





