Votre e-mail a été envoyé.
Scripps Ranch Commerce Park - Bldg J 10060 Carroll Canyon Rd Local d’activités | 236 m² | À louer | San Diego, CA 92131



Certaines informations ont été traduites automatiquement.
Caractéristiques
Tous les espace disponibles(1)
Afficher les loyers en
- Espace
- Surface
- Durée
- Loyer
- Type de bien
- Aménagement
- Disponible
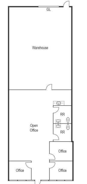
Positioned within the well-established Scripps Ranch Commerce Park, Suite 102 at 10060 Carroll Canyon Road offers a highly functional industrial environment with a strong office component. This ±2,539 SF suite is ideal for businesses seeking a strategic location with immediate access to I-15, ensuring seamless connectivity to greater San Diego and beyond. The property boasts upgraded office HVAC systems, solar roof enhancements, and a locally managed setting that prioritizes operational efficiency. The suite features approximately 60% office build-out, providing a professional workspace complemented by a grade-level loading door for convenient material handling. With 14.5-foot clearance and IP-2-1 zoning, the space supports a variety of industrial and flex uses. Tenants will appreciate the park’s great street exposure and proximity to major business hubs, retail amenities, and residential communities, making it a prime choice for companies looking to balance accessibility and functionality. Available for sublease through January 31, 2027, this opportunity combines competitive economics with a desirable location in one of San Diego’s most sought-after industrial corridors.
- Espace en sous-location disponible auprès de l’occupant actuel
- 1 accès plain-pied
- Plug & Play
- 60% office build-out with upgraded HVAC systems
- Solar roof upgrades
- Le loyer ne comprend pas les services publics, les frais immobiliers ou les services de l’immeuble.
- Climatisation centrale
- Strategic location with immediate I-15 access
- Grade-level loading door
| Espace | Surface | Durée | Loyer | Type de bien | Aménagement | Disponible |
| 1er étage – 102 | 236 m² | Négociable | 191,69 € /m²/an 15,97 € /m²/mois 45 216 € /an 3 768 € /mois | Local d’activités | Construction achevée | 30 jours |
1er étage – 102
| Surface |
| 236 m² |
| Durée |
| Négociable |
| Loyer |
| 191,69 € /m²/an 15,97 € /m²/mois 45 216 € /an 3 768 € /mois |
| Type de bien |
| Local d’activités |
| Aménagement |
| Construction achevée |
| Disponible |
| 30 jours |
1er étage – 102
| Surface | 236 m² |
| Durée | Négociable |
| Loyer | 191,69 € /m²/an |
| Type de bien | Local d’activités |
| Aménagement | Construction achevée |
| Disponible | 30 jours |
Positioned within the well-established Scripps Ranch Commerce Park, Suite 102 at 10060 Carroll Canyon Road offers a highly functional industrial environment with a strong office component. This ±2,539 SF suite is ideal for businesses seeking a strategic location with immediate access to I-15, ensuring seamless connectivity to greater San Diego and beyond. The property boasts upgraded office HVAC systems, solar roof enhancements, and a locally managed setting that prioritizes operational efficiency. The suite features approximately 60% office build-out, providing a professional workspace complemented by a grade-level loading door for convenient material handling. With 14.5-foot clearance and IP-2-1 zoning, the space supports a variety of industrial and flex uses. Tenants will appreciate the park’s great street exposure and proximity to major business hubs, retail amenities, and residential communities, making it a prime choice for companies looking to balance accessibility and functionality. Available for sublease through January 31, 2027, this opportunity combines competitive economics with a desirable location in one of San Diego’s most sought-after industrial corridors.
- Espace en sous-location disponible auprès de l’occupant actuel
- Le loyer ne comprend pas les services publics, les frais immobiliers ou les services de l’immeuble.
- 1 accès plain-pied
- Climatisation centrale
- Plug & Play
- Strategic location with immediate I-15 access
- 60% office build-out with upgraded HVAC systems
- Grade-level loading door
- Solar roof upgrades
Informations sur l’immeuble
Occupants
- Étage
- Nom de l’occupant
- Secteur d’activité
- 1er
- Amuza, Inc
- Grossiste
Présenté par
Scripps Ranch Commerce Park - Bldg J | 10060 Carroll Canyon Rd
Hum, une erreur s’est produite lors de l’envoi de votre message. Veuillez réessayer.
Merci ! Votre message a été envoyé.


