Votre e-mail a été envoyé.
Certaines informations ont été traduites automatiquement.
Informations principales sur la sous-location
- Convenient access to the 241 Toll Road for strong visibility and connectivity.
- Solar-covered parking with EV charging stations and optional reserved spaces.
- Positioned near Irvine Spectrum with abundant retail and dining options.
- On-site café located on the ground floor for tenant convenience.
- Ample free surface parking with no structured parking required.
- Dual main entrances complemented by two primary parking areas.
Tous les espace disponibles(1)
Afficher les loyers en
- Espace
- Surface
- Durée
- Loyer
- Type de bien
- Aménagement
- Disponible
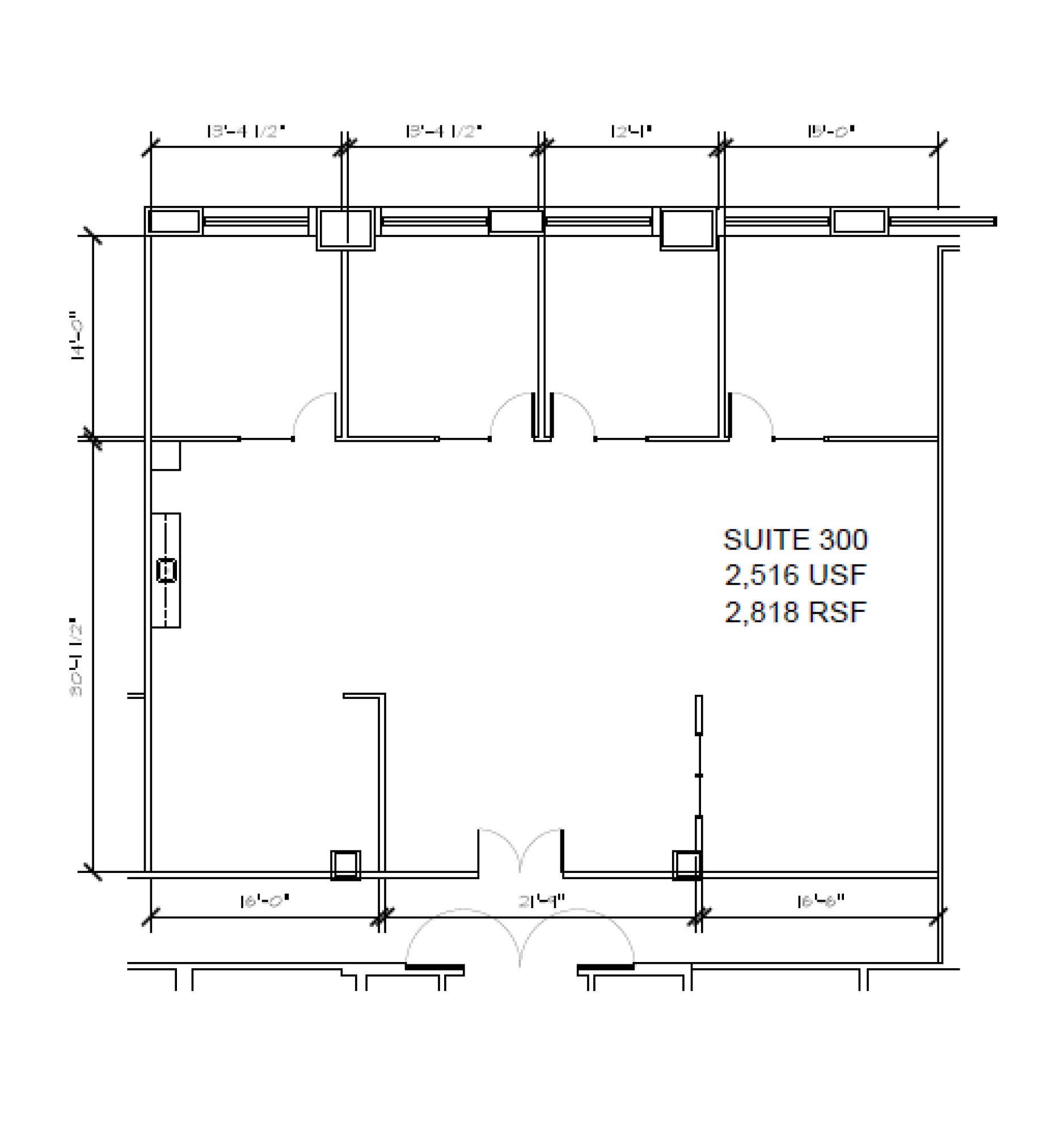
Suite 300 offers 2,818 RSF of high-quality office space designed for functionality and comfort. The layout includes private offices and open areas suitable for collaborative work. Tenants will enjoy abundant natural light, high-speed internet connectivity, and easy access to building amenities, including an on-site café. Available March 1, 2026, with a term through February 2028, this suite provides a professional setting in a prime Irvine location.
- Espace en sous-location disponible auprès de l’occupant actuel
- Convient pour 8 à 23 personnes
- High-speed internet connectivity
- Principalement open space
- Bright, efficient office layout
| Espace | Surface | Durée | Loyer | Type de bien | Aménagement | Disponible |
| 3e étage, bureau 300 | 262 m² | Févr. 2028 | Sur demande Sur demande Sur demande Sur demande | Bureau | - | Maintenant |
3e étage, bureau 300
| Surface |
| 262 m² |
| Durée |
| Févr. 2028 |
| Loyer |
| Sur demande Sur demande Sur demande Sur demande |
| Type de bien |
| Bureau |
| Aménagement |
| - |
| Disponible |
| Maintenant |
3e étage, bureau 300
| Surface | 262 m² |
| Durée | Févr. 2028 |
| Loyer | Sur demande |
| Type de bien | Bureau |
| Aménagement | - |
| Disponible | Maintenant |
Suite 300 offers 2,818 RSF of high-quality office space designed for functionality and comfort. The layout includes private offices and open areas suitable for collaborative work. Tenants will enjoy abundant natural light, high-speed internet connectivity, and easy access to building amenities, including an on-site café. Available March 1, 2026, with a term through February 2028, this suite provides a professional setting in a prime Irvine location.
- Espace en sous-location disponible auprès de l’occupant actuel
- Principalement open space
- Convient pour 8 à 23 personnes
- Bright, efficient office layout
- High-speed internet connectivity
Aperçu du bien
100 Pacifica is a modern Class A office building located in the heart of Irvine, California, offering a professional environment within one of Southern California’s most dynamic business corridors. The property features a contemporary design with abundant natural light and efficient floor plates, creating an inviting and productive workspace. Tenants benefit from on-site amenities, including a convenient café, and enjoy easy access to major transportation routes such as the 241 Toll Road. The building provides solar-covered parking with EV charging stations, dual main entrances, and two passenger elevators for ease of access. High-speed internet connectivity and ample surface parking further enhance the functionality of the property. Positioned near the Irvine Spectrum, the location offers proximity to over 30 restaurants, multiple hotels, fitness centers, and extensive retail options, making it an attractive choice for businesses seeking convenience and connectivity in a thriving commercial hub.
- Restaurant
- Accessible fauteuils roulants
- Station de recharge de voitures
- WC à usage exclusif de l’occupant
- Lumière naturelle
- Wi-Fi
- Climatisation
- Détecteur de fumée
Informations sur l’immeuble
Occupants
- Étage
- Nom de l’occupant
- Secteur d’activité
- 4e
- Applied Financial Planning
- Finance et assurances
- 1er
- Brower Law Group APC
- -
- 2e
- Century 21 Award
- Immobilier
- 1er
- Driscoll Anderson Reynard LLP
- Services professionnels, scientifiques et techniques
- 2e
- E.R.I. Electrical Representatives
- Grossiste
- 1er
- EmployInsure
- -
- 4e
- G.K. Skaggs
- Grossiste
- 1er
- Ingenes Institute
- Santé et assistance sociale
- 2e
- PMP Management
- Immobilier
- 3e
- USG Insurance Services, Inc.
- Finance et assurances
Présenté par
100 Pacifica
Hum, une erreur s’est produite lors de l’envoi de votre message. Veuillez réessayer.
Merci ! Votre message a été envoyé.






