Votre e-mail a été envoyé.
10-12 10-14 Whitefriargate Local commercial | 284–1 060 m² | À louer | Hull HU1 2ER


Certaines informations ont été traduites automatiquement.
Informations principales
- UK City of Culture 2017 with ongoing regeneration
- Vibrant cultural scene: Freedom Festival, Hull Truck Theatre, Bonus Arena
- £25m city centre public realm investment
- M62 motorway, one of the main east-west routes in the north of England, connects Hull to Leeds and beyond
Disponibilité de l’espace (2)
Afficher le tarif en
- Espace
- Surface
- Durée
- Loyer
- Type
| Espace | Surface | Durée | Loyer | Type de loyer | ||
| RDC | 775 m² | 5 Ans | Sur demande Sur demande Sur demande Sur demande | Toutes réparations et assurance | ||
| RDC, bureau 13-14 | 284 m² | 3 Ans | Sur demande Sur demande Sur demande Sur demande | À déterminer |
RDC
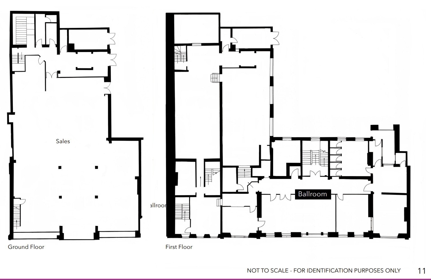
The ground floor provides a predominantly open-plan sales area benefiting from excellent frontage onto Whitefriargate. The first floor includes staff areas and storage, with potential to be reinstated into a large open-plan area or ballroom (subject to consents). Upper floors provide additional storage and ancillary accommodation, while the third floor and attic offer further flexibility for future adaptation. All areas are approximate and span a total of 9,637 sq ft across the building.
- Classe d’utilisation : Classe 1A
- Contigu et aligné avec d’autres locaux commerciaux
- Prominent Grade II* listed building with historic
- Former Neptune Inn with original banqueting hall
- Large open-plan ground floor sales area
- Generous storage across upper levels
- Impressive architectural features with heritage de
RDC, bureau 13-14
The ground floor provides a predominantly open-plan sales area benefiting from excellent frontage onto Whitefriargate. The first floor includes staff areas and storage, with potential to be reinstated into a large open-plan area or ballroom (subject to consents). Upper floors provide additional storage and ancillary accommodation, while the third floor and attic offer further flexibility for future adaptation. All areas are approximate and span a total of 9,637 sq ft across the building.
- Classe d’utilisation : Classe 1A
- Contigu et aligné avec d’autres locaux commerciaux
- Prominent Grade II* listed building with historic
- Former Neptune Inn with original banqueting hall
- Large open-plan ground floor sales area
- Generous storage across upper levels
- Impressive architectural features with heritage de
Types de service
Le montant du loyer et le type de service que l’occupant (locataire) est tenu de payer au propriétaire (bailleur) sur la durée du bail sont négociés avant la signature du bail par les deux parties. Le type de service varie en fonction des services fournis. Contacter le broker chargé de l’annonce pour bien comprendre les coûts associés ou les dépenses supplémentaires pour chaque type de service.
1. Toutes réparations et assurance: Toutes les obligations de réparation et d’assurance du bien (ou de leur part de bien) à l’interne et à l’externe.
2. Réparations internes seulement: L'occupant est responsable des réparations internes seulement. Le propriétaire est responsable des réparations structurelles et externes.
3. Réparations internes et assurance: L'occupant est responsable des réparations internes et de l'assurance pour les parties internes du bien seulement. Le propriétaire est responsable des réparations structurelles et externes.
4. Négociable ou à déterminer: Cette option est utilisée lorsque le contact de location ne fournit pas le type de service.
Informations sur l’immeuble
| Espace total disponible | 1 060 m² | Surface commerciale utile | 1 799 m² |
| Type de bien | Local commercial | Année de construction | 1797 |
| Sous-type de bien | Bien à usage mixte |
| Espace total disponible | 1 060 m² |
| Type de bien | Local commercial |
| Sous-type de bien | Bien à usage mixte |
| Surface commerciale utile | 1 799 m² |
| Année de construction | 1797 |
À propos du bien
10–12 Whitefriargate is a substantial Grade II* listed retail building positioned on one of Hull’s premier shopping streets. The property offers accommodation across five floors, with the main trading areas situated on the ground and first floor, supported by generous storage and ancillary space above. Formerly the Neptune Inn and later Hull’s Custom House, the building retains significant historic character, including an ornate two-storey ballroom. Its prominent frontage, central location, and proximity to key leisure and cultural amenities make it a compelling opportunity for a wide range of occupiers.
- Espace d’entreposage
Principaux commerces à proximité
Présenté par
10-12 | 10-14 Whitefriargate
Hum, une erreur s’est produite lors de l’envoi de votre message. Veuillez réessayer.
Merci ! Votre message a été envoyé.






