Votre e-mail a été envoyé.
Certaines informations ont été traduites automatiquement.
INFORMATIONS PRINCIPALES SUR LE PARC
- Accès facile aux autoroutes 5, 405 et 133 et à la route à péage 241.
- À quelques minutes de l'Irvine Spectrum Center, l'une des meilleures destinations de shopping et de restauration du sud de la Californie avec plus de 130 magasins, restaurants et lieux de divertissement
- Simplifiez les déplacements en accédant facilement au centre de transport d'Irvine Station, reliant Irvine Spectrum à Metrolink Commuter et Amtrak.
- Restez en forme tout au long de la journée de travail grâce aux nombreux restaurants situés à proximité de l'Alton Marketplace, notamment le Starbucks, le Bagels et le Smoothie Cafe.
- Accueillez des clients de l'extérieur de la ville au Courtyard by Marriott situé à proximité, qui comprend une salle de conférence de 5 000 pieds carrés et un espace brasier/piscine extérieur pour les événements en plein air.
FAITS SUR LE PARC
Afficher les loyers en
- ESPACE
- SURFACE
- DURÉE
- LOYER
- TYPE DE BIEN
- ÉTAT
- DISPONIBLE
Pure office unit with one (1) conference room, two (2) private offices, coffee bar, private restroom and large open area for workstations or storage. Parked 3:1.
- Le loyer ne comprend pas les services publics, les frais immobiliers ou les services de l’immeuble.
- 2 bureaux privés
- Toilettes privées
- Entièrement aménagé comme Bureau standard
- 1 salle de conférence
| Espace | Surface | Durée | Loyer | Type de bien | État | Disponible |
| 1er étage, bureau F211 | 140 m² | Négociable | 199,16 € /m²/an 16,60 € /m²/mois 27 902 € /an 2 325 € /mois | Bureau | Construction achevée | Maintenant |
1 Technology Dr - 1er étage – Bureau F211
- ESPACE
- SURFACE
- DURÉE
- LOYER
- TYPE DE BIEN
- ÉTAT
- DISPONIBLE
$2/SF Broker Bonus for 5+ year lease deals & $1/SF Broker Bonus for 3+ year lease deals for NEW customers. Exclusions apply. Expires 6/30/2026
- Le loyer ne comprend pas les services publics, les frais immobiliers ou les services de l’immeuble.
- Principalement open space
- Entièrement aménagé comme Bureau standard
- Peut être associé à un ou plusieurs espaces supplémentaires pour obtenir jusqu’à 2 169 m² d’espace adjacent.
$2/SF Broker Bonus for 5+ year lease deals & $1/SF Broker Bonus for 3+ year lease deals for NEW customers. Exclusions apply. Expires 6/30/2026
- Le loyer ne comprend pas les services publics, les frais immobiliers ou les services de l’immeuble.
- Principalement open space
- Entièrement aménagé comme Bureau standard
- Peut être associé à un ou plusieurs espaces supplémentaires pour obtenir jusqu’à 2 169 m² d’espace adjacent.
| Espace | Surface | Durée | Loyer | Type de bien | État | Disponible |
| 1er étage, bureau G100 | 1 085 m² | Négociable | 138,31 € /m²/an 11,53 € /m²/mois 150 027 € /an 12 502 € /mois | Bureau | Construction achevée | Maintenant |
| 1er étage, bureau G200 | 1 085 m² | Négociable | 138,31 € /m²/an 11,53 € /m²/mois 150 027 € /an 12 502 € /mois | Bureau | Construction achevée | Maintenant |
1 Technology Dr - 1er étage – Bureau G100
1 Technology Dr - 1er étage – Bureau G200
- ESPACE
- SURFACE
- DURÉE
- LOYER
- TYPE DE BIEN
- ÉTAT
- DISPONIBLE
Suite Description : Pure office unit with one (1) large conference room, five (5) private offices, storage room and break room. Parked 3:1. / Multi-Tenant Floor : Yes
- Le loyer ne comprend pas les services publics, les frais immobiliers ou les services de l’immeuble.
- 1 salle de conférence
- 5 bureaux privés
Multi-Tenant Floor : Yes
- Le loyer ne comprend pas les services publics, les frais immobiliers ou les services de l’immeuble.
- Principalement open space
- Entièrement aménagé comme Bureau standard
| Espace | Surface | Durée | Loyer | Type de bien | État | Disponible |
| 1er étage, bureau J701 | 209 m² | Négociable | 188,10 € /m²/an 15,67 € /m²/mois 39 353 € /an 3 279 € /mois | Bureau | - | 01/03/2026 |
| 1er étage, bureau J703 | 243 m² | Négociable | 188,10 € /m²/an 15,67 € /m²/mois 45 679 € /an 3 807 € /mois | Bureau | Construction achevée | Maintenant |
1 Technology Dr - 1er étage – Bureau J701
1 Technology Dr - 1er étage – Bureau J703
- ESPACE
- SURFACE
- DURÉE
- LOYER
- TYPE DE BIEN
- ÉTAT
- DISPONIBLE
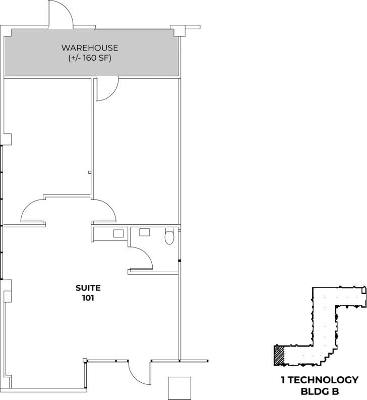
Suite Description : Corner unit featuring +/- 1,041 SF Office, +/-160 SF Warehouse. Reception area with two (2) private offices, coffee bar and private restroom. Parked 3:1. / Multi-Tenant Floor : Yes / # of ground level doors : 1.0
- Le loyer ne comprend pas les services publics, les frais immobiliers ou les services de l’immeuble.
- 1 accès plain-pied
- Comprend 97 m² d’espace de bureau dédié
| Espace | Surface | Durée | Loyer | Type de bien | État | Disponible |
| 1er étage – B101 | 112 m² | Négociable | 199,16 € /m²/an 16,60 € /m²/mois 22 222 € /an 1 852 € /mois | Local d’activités | Construction achevée | 01/03/2026 |
1 Technology Dr - 1er étage – B101
- ESPACE
- SURFACE
- DURÉE
- LOYER
- TYPE DE BIEN
- ÉTAT
- DISPONIBLE
Pure office unit with one (1) conference room, two (2) private offices, coffee bar, private restroom and large open area for workstations or storage. Parked 3:1.
- Le loyer ne comprend pas les services publics, les frais immobiliers ou les services de l’immeuble.
- 2 bureaux privés
- Toilettes privées
- Entièrement aménagé comme Bureau standard
- 1 salle de conférence
| Espace | Surface | Durée | Loyer | Type de bien | État | Disponible |
| 1er étage, bureau F211 | 140 m² | Négociable | 199,16 € /m²/an 16,60 € /m²/mois 27 902 € /an 2 325 € /mois | Bureau | Construction achevée | Maintenant |
1 Technology Dr - 1er étage – Bureau F211
- ESPACE
- SURFACE
- DURÉE
- LOYER
- TYPE DE BIEN
- ÉTAT
- DISPONIBLE
$2/SF Broker Bonus for 5+ year lease deals & $1/SF Broker Bonus for 3+ year lease deals for NEW customers. Exclusions apply. Expires 6/30/2026
- Le loyer ne comprend pas les services publics, les frais immobiliers ou les services de l’immeuble.
- Principalement open space
- Entièrement aménagé comme Bureau standard
- Peut être associé à un ou plusieurs espaces supplémentaires pour obtenir jusqu’à 2 169 m² d’espace adjacent.
$2/SF Broker Bonus for 5+ year lease deals & $1/SF Broker Bonus for 3+ year lease deals for NEW customers. Exclusions apply. Expires 6/30/2026
- Le loyer ne comprend pas les services publics, les frais immobiliers ou les services de l’immeuble.
- Principalement open space
- Entièrement aménagé comme Bureau standard
- Peut être associé à un ou plusieurs espaces supplémentaires pour obtenir jusqu’à 2 169 m² d’espace adjacent.
| Espace | Surface | Durée | Loyer | Type de bien | État | Disponible |
| 1er étage, bureau G100 | 1 085 m² | Négociable | 138,31 € /m²/an 11,53 € /m²/mois 150 027 € /an 12 502 € /mois | Bureau | Construction achevée | Maintenant |
| 1er étage, bureau G200 | 1 085 m² | Négociable | 138,31 € /m²/an 11,53 € /m²/mois 150 027 € /an 12 502 € /mois | Bureau | Construction achevée | Maintenant |
1 Technology Dr - 1er étage – Bureau G100
1 Technology Dr - 1er étage – Bureau G200
- ESPACE
- SURFACE
- DURÉE
- LOYER
- TYPE DE BIEN
- ÉTAT
- DISPONIBLE
Suite Description : Pure office unit with one (1) large conference room, five (5) private offices, storage room and break room. Parked 3:1. / Multi-Tenant Floor : Yes
- Le loyer ne comprend pas les services publics, les frais immobiliers ou les services de l’immeuble.
- 1 salle de conférence
- 5 bureaux privés
Multi-Tenant Floor : Yes
- Le loyer ne comprend pas les services publics, les frais immobiliers ou les services de l’immeuble.
- Principalement open space
- Entièrement aménagé comme Bureau standard
| Espace | Surface | Durée | Loyer | Type de bien | État | Disponible |
| 1er étage, bureau J701 | 209 m² | Négociable | 188,10 € /m²/an 15,67 € /m²/mois 39 353 € /an 3 279 € /mois | Bureau | - | 01/03/2026 |
| 1er étage, bureau J703 | 243 m² | Négociable | 188,10 € /m²/an 15,67 € /m²/mois 45 679 € /an 3 807 € /mois | Bureau | Construction achevée | Maintenant |
1 Technology Dr - 1er étage – Bureau J701
1 Technology Dr - 1er étage – Bureau J703
1 Technology Dr - 1er étage – B101
| Surface | 112 m² |
| Durée | Négociable |
| Loyer | 199,16 € /m²/an |
| Type de bien | Local d’activités |
| État | Construction achevée |
| Disponible | 01/03/2026 |
Suite Description : Corner unit featuring +/- 1,041 SF Office, +/-160 SF Warehouse. Reception area with two (2) private offices, coffee bar and private restroom. Parked 3:1. / Multi-Tenant Floor : Yes / # of ground level doors : 1.0
- Le loyer ne comprend pas les services publics, les frais immobiliers ou les services de l’immeuble.
- Comprend 97 m² d’espace de bureau dédié
- 1 accès plain-pied
1 Technology Dr - 1er étage – Bureau F211
| Surface | 140 m² |
| Durée | Négociable |
| Loyer | 199,16 € /m²/an |
| Type de bien | Bureau |
| État | Construction achevée |
| Disponible | Maintenant |
Pure office unit with one (1) conference room, two (2) private offices, coffee bar, private restroom and large open area for workstations or storage. Parked 3:1.
- Le loyer ne comprend pas les services publics, les frais immobiliers ou les services de l’immeuble.
- Entièrement aménagé comme Bureau standard
- 2 bureaux privés
- 1 salle de conférence
- Toilettes privées
1 Technology Dr - 1er étage – Bureau G100
| Surface | 1 085 m² |
| Durée | Négociable |
| Loyer | 138,31 € /m²/an |
| Type de bien | Bureau |
| État | Construction achevée |
| Disponible | Maintenant |
$2/SF Broker Bonus for 5+ year lease deals & $1/SF Broker Bonus for 3+ year lease deals for NEW customers. Exclusions apply. Expires 6/30/2026
- Le loyer ne comprend pas les services publics, les frais immobiliers ou les services de l’immeuble.
- Entièrement aménagé comme Bureau standard
- Principalement open space
- Peut être associé à un ou plusieurs espaces supplémentaires pour obtenir jusqu’à 2 169 m² d’espace adjacent.
1 Technology Dr - 1er étage – Bureau G200
| Surface | 1 085 m² |
| Durée | Négociable |
| Loyer | 138,31 € /m²/an |
| Type de bien | Bureau |
| État | Construction achevée |
| Disponible | Maintenant |
$2/SF Broker Bonus for 5+ year lease deals & $1/SF Broker Bonus for 3+ year lease deals for NEW customers. Exclusions apply. Expires 6/30/2026
- Le loyer ne comprend pas les services publics, les frais immobiliers ou les services de l’immeuble.
- Entièrement aménagé comme Bureau standard
- Principalement open space
- Peut être associé à un ou plusieurs espaces supplémentaires pour obtenir jusqu’à 2 169 m² d’espace adjacent.
1 Technology Dr - 1er étage – Bureau J701
| Surface | 209 m² |
| Durée | Négociable |
| Loyer | 188,10 € /m²/an |
| Type de bien | Bureau |
| État | - |
| Disponible | 01/03/2026 |
Suite Description : Pure office unit with one (1) large conference room, five (5) private offices, storage room and break room. Parked 3:1. / Multi-Tenant Floor : Yes
- Le loyer ne comprend pas les services publics, les frais immobiliers ou les services de l’immeuble.
- 5 bureaux privés
- 1 salle de conférence
1 Technology Dr - 1er étage – Bureau J703
| Surface | 243 m² |
| Durée | Négociable |
| Loyer | 188,10 € /m²/an |
| Type de bien | Bureau |
| État | Construction achevée |
| Disponible | Maintenant |
Multi-Tenant Floor : Yes
- Le loyer ne comprend pas les services publics, les frais immobiliers ou les services de l’immeuble.
- Entièrement aménagé comme Bureau standard
- Principalement open space
VUE D’ENSEMBLE DU PARC
Offrant une combinaison idéale de bâtiments de 10, un ou deux étages, One Technology Park est parfait pour les utilisateurs à locataire unique ou multiple. Niché dans un cadre semblable à un parc près de l'angle de Technology Drive et d'Alton Parkway, l'établissement se trouve à proximité de l'autoroute et de nombreux commerces de détail.
- Property Manager sur place
- Climatisation
- Internet par fibre optique
Présenté par
One Technology Park | Irvine, CA 92618
Hum, une erreur s’est produite lors de l’envoi de votre message. Veuillez réessayer.
Merci ! Votre message a été envoyé.














