Votre e-mail a été envoyé.
Certaines informations ont été traduites automatiquement.
Informations principales sur la sous-location
- Located in Bergen County’s industrial corridor
- Convenient access to the George Washington Bridge and greater NYC metro area
- Proximity to major distribution routes serving North Jersey and New York City
- Immediate access to Route 9W
- Labor-rich market with access to skilled workforce
Caractéristiques
Tous les espace disponibles(1)
Afficher les loyers en
- Espace
- Surface
- Durée
- Loyer
- Type de bien
- Aménagement
- Disponible
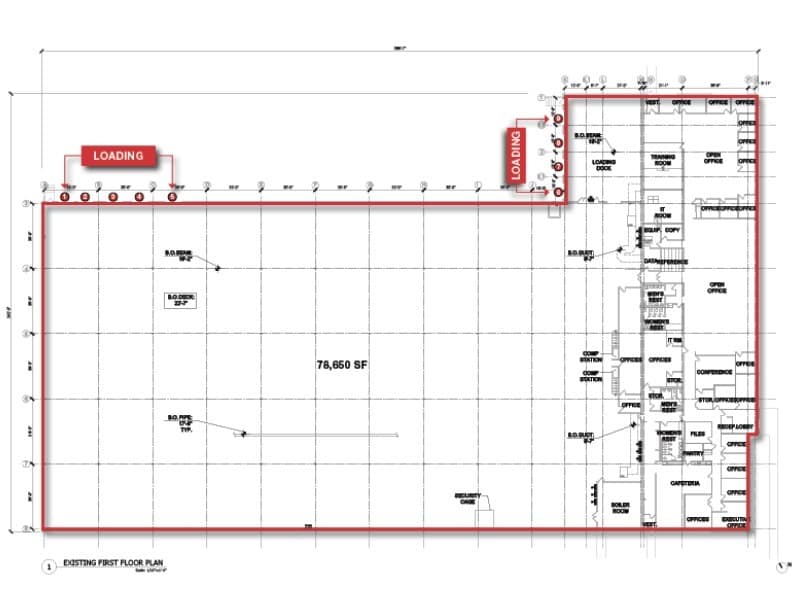
78,650 square feet high-function industrial space on approximately 6 acres available via sublease. This well-maintained facility offers an efficient layout, strong loading capabilities, and ample parking, making it ideal for distribution, warehousing, logistics, and light manufacturing users. The property features nine (9) tailgate loading doors, 22’ clear ceiling height, and wide 36’ x 30’ column spacing, providing operational flexibility for a variety of users. With parking for approximately 120 vehicles and a fully wet sprinkler system, the building is well-equipped to support both workforce and operational demands.
- Espace en sous-location disponible auprès de l’occupant actuel
- Long term sublease
- 9 quais de chargement
| Espace | Surface | Durée | Loyer | Type de bien | Aménagement | Disponible |
| 1er étage | 7 307 m² | Sept. 2030 | Sur demande Sur demande Sur demande Sur demande | Industriel/Logistique | Construction partielle | 30 jours |
1er étage
| Surface |
| 7 307 m² |
| Durée |
| Sept. 2030 |
| Loyer |
| Sur demande Sur demande Sur demande Sur demande |
| Type de bien |
| Industriel/Logistique |
| Aménagement |
| Construction partielle |
| Disponible |
| 30 jours |
1er étage
| Surface | 7 307 m² |
| Durée | Sept. 2030 |
| Loyer | Sur demande |
| Type de bien | Industriel/Logistique |
| Aménagement | Construction partielle |
| Disponible | 30 jours |
78,650 square feet high-function industrial space on approximately 6 acres available via sublease. This well-maintained facility offers an efficient layout, strong loading capabilities, and ample parking, making it ideal for distribution, warehousing, logistics, and light manufacturing users. The property features nine (9) tailgate loading doors, 22’ clear ceiling height, and wide 36’ x 30’ column spacing, providing operational flexibility for a variety of users. With parking for approximately 120 vehicles and a fully wet sprinkler system, the building is well-equipped to support both workforce and operational demands.
- Espace en sous-location disponible auprès de l’occupant actuel
- 9 quais de chargement
- Long term sublease
Aperçu du bien
Located just minutes from the New York State border, 1 Pond Road in Rockleigh, NJ offers tenants a strategic foothold in one of Northern New Jersey’s most sought-after industrial submarkets. The property provides efficient access to major highways and regional transportation routes, allowing users to serve the greater New York City metro area with speed and reliability. Rockleigh’s proximity to Bergen County’s dense consumer base, combined with convenient access to major roadways and cross-Hudson connections, makes this location ideal for companies prioritizing last-mile distribution, regional warehousing, and operational efficiency. The area’s strong labor pool and established industrial presence further enhance the site’s long-term value for tenants.
Faits sur l’installation entrepôt
Occupants
- Étage
- Nom de l’occupant
- Secteur d’activité
- 1er
- NVC Logistics Group
- Transport et entreposage
Présenté par
1 Pond Rd
Hum, une erreur s’est produite lors de l’envoi de votre message. Veuillez réessayer.
Merci ! Votre message a été envoyé.





