Votre e-mail a été envoyé.
Certaines informations ont été traduites automatiquement.
Informations principales
- 1 Duchess Street offers refurbished spaces with open-plan and cellular office layouts, plus optional furniture fit-outs.
- Communications are enhanced by walkable proximity to the Oxford Circus, Regent's Park, and Great Portland Street underground stations.
- Features include manned reception, passenger lifts, comfort cooling, private WCs, kitchen facilities, and 24-hour access.
- Work near it all, within a 5-minute walk of The George, Joe & The Juice, Pret A Manger, Sixes - Fitzrovia, Fitness First, and dozens more amenities.
Tous les espaces disponibles(3)
Afficher les loyers en
- Espace
- Surface
- Durée
- Loyer
- Type de bien
- Aménagement
- Disponible
This newly refurbished, spacious self contained office available in Marylebone. Situated opposite the BBC and the Langham and within close proximity of Oxford Circus. Comprises of a welcoming entrance/reception area with a meeting room. A larger open plan office space with an additional back office space adjoined. The office has a small kitchenette and 2 x WC's. There are windows from most sides and allows a good amount of natural light. The building has 2 lifts and a manned reception.
- Classe d’utilisation : E
- Principalement open space
- 1 salle de conférence
- Aire de réception
- Lumière naturelle
- Open space
- Natural Light
- Open-Plan Office Space
- Entièrement aménagé comme Bureau standard
- Convient pour 4 à 12 personnes
- Ventilation et chauffage centraux
- Toilettes privées
- Toilettes incluses dans le bail
- Meeting Room
- 2 WCs
- Furnished
This newly refurbished, ground floor suite comprises of three office spaces, two WC's, and a kitchenette. The building features period details throughout, high ceilings, and excellent natural light. There is also a receptionist concierge service and two lifts.
- Classe d’utilisation : E
- Convient pour 2 à 5 personnes
- Aire de réception
- Espace d’angle
- Éclairage d’urgence
- Manned Ground-Floor Reception
- Entièrement aménagé comme Bureau standard
- 3 bureaux privés
- Toilettes privées
- Lumière naturelle
- City Views
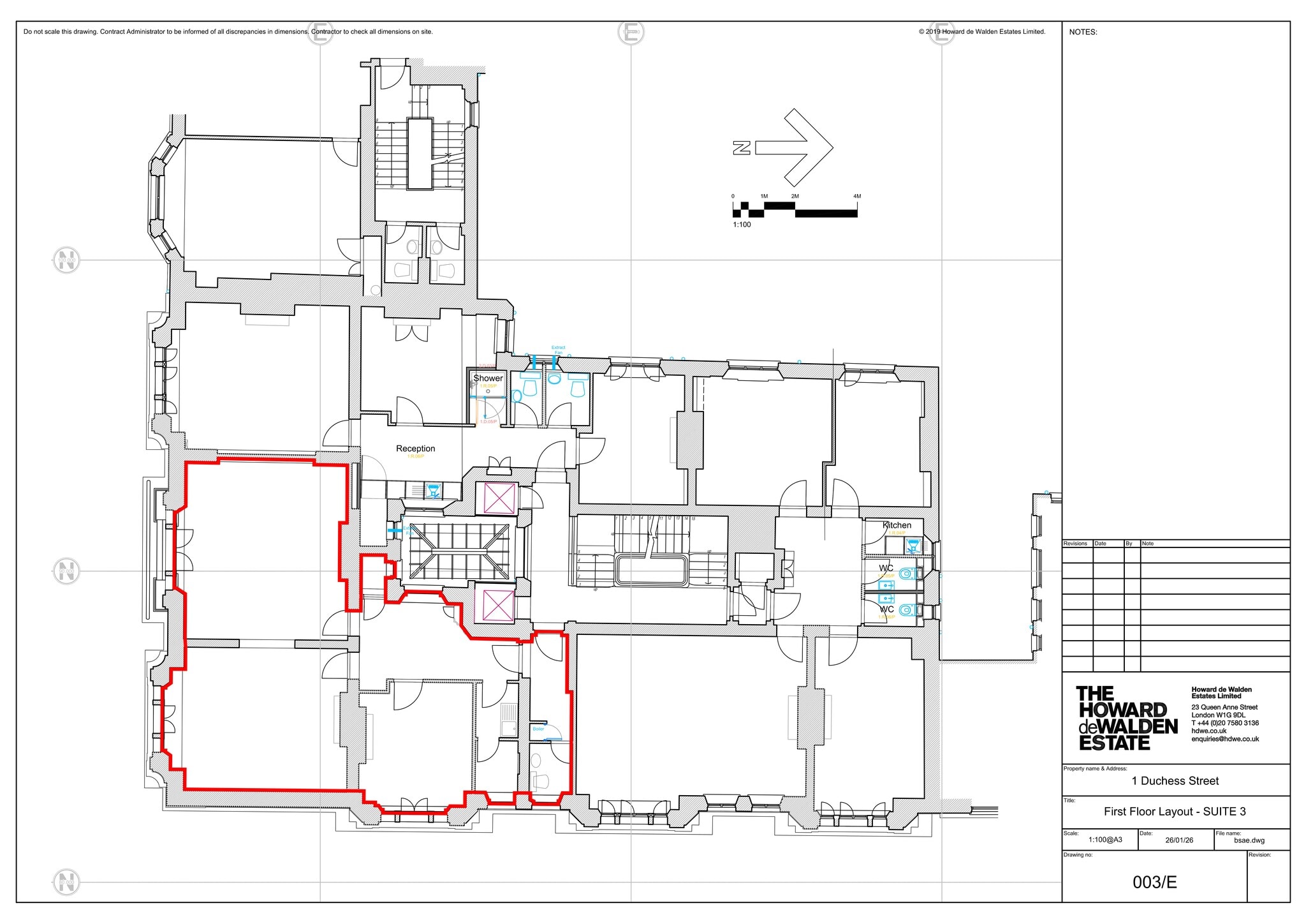
This newly refurbished, first floor suite comprises of 3 office spaces, 2 WC's and kitchenette. In each room there is comfort cooling , period features and high ceilings allowing excellent natural light throughout. The building has a reception concierge service and 2 lifts.
- Classe d’utilisation : E
- Convient pour 2 à 6 personnes
- Lumière naturelle
- Toilettes incluses dans le bail
- Manned Ground-Floor Reception
- Entièrement aménagé comme Bureau standard
- Aire de réception
- Atrium
- Natural Light Throughout
| Espace | Surface | Durée | Loyer | Type de bien | Aménagement | Disponible |
| Niveau inférieur, bureau LG Suite 2 | 129 m² | Négociable | 822,96 € /m²/an 68,58 € /m²/mois 106 044 € /an 8 837 € /mois | Bureau | Construction achevée | Maintenant |
| RDC, bureau 2 | 56 m² | Négociable | 992,57 € /m²/an 82,71 € /m²/mois 55 143 € /an 4 595 € /mois | Bureau | Construction achevée | En attente |
| 1er étage, bureau 3 | 70 m² | Négociable | 992,57 € /m²/an 82,71 € /m²/mois 69 159 € /an 5 763 € /mois | Bureau | Construction achevée | En attente |
Niveau inférieur, bureau LG Suite 2
| Surface |
| 129 m² |
| Durée |
| Négociable |
| Loyer |
| 822,96 € /m²/an 68,58 € /m²/mois 106 044 € /an 8 837 € /mois |
| Type de bien |
| Bureau |
| Aménagement |
| Construction achevée |
| Disponible |
| Maintenant |
RDC, bureau 2
| Surface |
| 56 m² |
| Durée |
| Négociable |
| Loyer |
| 992,57 € /m²/an 82,71 € /m²/mois 55 143 € /an 4 595 € /mois |
| Type de bien |
| Bureau |
| Aménagement |
| Construction achevée |
| Disponible |
| En attente |
1er étage, bureau 3
| Surface |
| 70 m² |
| Durée |
| Négociable |
| Loyer |
| 992,57 € /m²/an 82,71 € /m²/mois 69 159 € /an 5 763 € /mois |
| Type de bien |
| Bureau |
| Aménagement |
| Construction achevée |
| Disponible |
| En attente |
Niveau inférieur, bureau LG Suite 2
| Surface | 129 m² |
| Durée | Négociable |
| Loyer | 822,96 € /m²/an |
| Type de bien | Bureau |
| Aménagement | Construction achevée |
| Disponible | Maintenant |
This newly refurbished, spacious self contained office available in Marylebone. Situated opposite the BBC and the Langham and within close proximity of Oxford Circus. Comprises of a welcoming entrance/reception area with a meeting room. A larger open plan office space with an additional back office space adjoined. The office has a small kitchenette and 2 x WC's. There are windows from most sides and allows a good amount of natural light. The building has 2 lifts and a manned reception.
- Classe d’utilisation : E
- Entièrement aménagé comme Bureau standard
- Principalement open space
- Convient pour 4 à 12 personnes
- 1 salle de conférence
- Ventilation et chauffage centraux
- Aire de réception
- Toilettes privées
- Lumière naturelle
- Toilettes incluses dans le bail
- Open space
- Meeting Room
- Natural Light
- 2 WCs
- Open-Plan Office Space
- Furnished
RDC, bureau 2
| Surface | 56 m² |
| Durée | Négociable |
| Loyer | 992,57 € /m²/an |
| Type de bien | Bureau |
| Aménagement | Construction achevée |
| Disponible | En attente |
This newly refurbished, ground floor suite comprises of three office spaces, two WC's, and a kitchenette. The building features period details throughout, high ceilings, and excellent natural light. There is also a receptionist concierge service and two lifts.
- Classe d’utilisation : E
- Entièrement aménagé comme Bureau standard
- Convient pour 2 à 5 personnes
- 3 bureaux privés
- Aire de réception
- Toilettes privées
- Espace d’angle
- Lumière naturelle
- Éclairage d’urgence
- City Views
- Manned Ground-Floor Reception
1er étage, bureau 3
| Surface | 70 m² |
| Durée | Négociable |
| Loyer | 992,57 € /m²/an |
| Type de bien | Bureau |
| Aménagement | Construction achevée |
| Disponible | En attente |
This newly refurbished, first floor suite comprises of 3 office spaces, 2 WC's and kitchenette. In each room there is comfort cooling , period features and high ceilings allowing excellent natural light throughout. The building has a reception concierge service and 2 lifts.
- Classe d’utilisation : E
- Entièrement aménagé comme Bureau standard
- Convient pour 2 à 6 personnes
- Aire de réception
- Lumière naturelle
- Atrium
- Toilettes incluses dans le bail
- Natural Light Throughout
- Manned Ground-Floor Reception
Aperçu du bien
1 Duchess Street is a corner-situated, period building of traditional masonry construction. The property is arranged over seven floors, including the basement level, and offers office accommodation throughout. The property retains many original elements, including stone and iron balconies on the first and fourth floors. Features include two passenger lifts, a manned ground-floor reception area, and 24-hour access. The available office suites have been refurbished with a variety of layouts to choose from, private WCs, and kitchen facilities. The property is located on the north side of Duchess Street at the junction with Hallam Street, north of Oxford Street, and to the south of Regent's Park. Oxford Circus (Victoria, Bakerloo, and Central Lines) and Bond Street (Central and Jubilee Lines) Underground Stations are within walking distance. Eurostar departs from nearby St Pancras International Station, and additional railway stations at Paddington, Marylebone, Euston, and King's Cross are all within proximity.
- Accès 24 h/24
- Ligne d’autobus
- Accès contrôlé
- Système de sécurité
- Cuisine
- Réception
- Espace d’entreposage
- Sous-sol
- Chauffage central
- Entièrement moquetté
- Hauts plafonds
- Accès direct à l’ascenseur
- Lumière naturelle
- Open space
- Bureaux cloisonnés
- Douches
- Climatisation
- Détecteur de fumée
Informations sur l’immeuble
Présenté par
Société non fournie
1 Duchess St
Hum, une erreur s’est produite lors de l’envoi de votre message. Veuillez réessayer.
Merci ! Votre message a été envoyé.












