Votre e-mail a été envoyé.
Main Street Land Parcels 00 Salisbury Ave Lots | Terrain commercial | 0,34-1,51 ha | À vendre | Granite Quarry, NC 28072



Certaines informations ont été traduites automatiquement.
INFORMATIONS PRINCIPALES SUR L'INVESTISSEMENT
- Excellent access and visibility with ingress/egress from both Salisbury Ave/US Hwy 52 and Lyerly Street
- Located in growing submarket of Charlotte MSA with proximity to I-85
- Over 850 feet of combined frontage on Granite Quarry's primary corridor (13,000+ VPD)
RÉSUMÉ ANALYTIQUE
- Parcels can be purchased individually or assembled for a larger-scale development
- Ideal for buyers seeking flexibility in project size and phasing
Parcel Breakdown:
- Parcel 1: ±0.84 acres
- Parcel 2: ±0.83 acres
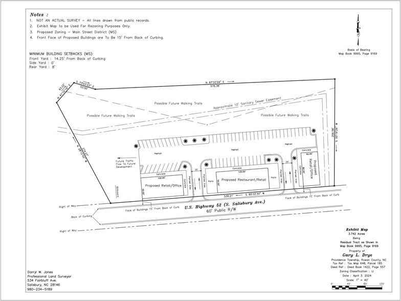
- Parcel 3: ±3.74 acres
- Total: ±5.41 acres (contiguous)
Zoning:
- All parcels zoned Main Street (MS) within Granite Quarry’s Central Business District
- Supports a wide variety of commercial and mixed-use development
- Residential uses are also permitted
- MS zoning table of uses available upon request
Traffic Exposure:
- NCDOT Annual Average Daily Traffic (AADT): 13,000 vehicles
Access & Visibility:
- A 30’ non-exclusive access easement to E Lyerly Street allows flexible ingress/egress to both E Lyerly St.and Main St.
- Excellent visibility and accessibility make the site ideal for a fast-food restaurant, drive-thru, or other high-traffic commercial use
Utilities & Infrastructure:
- Sewer easement runs along the rear of the property
INFORMATIONS SUR L’IMMEUBLE
3 LOTS DISPONIBLES
Lot 1
| Surface du lot | 0,34 ha |
| Surface du lot | 0,34 ha |
Ce terrain est boisé et doit être défriché pour être aménagé. Les parcelles sont disponibles ensemble ou séparément. Lot de 0,84 acre : 225 000$, lot de 0,83 acre : 175 000$. Prix du portefeuille de 350 000$.
Lot 2
| Surface du lot | 0,34 ha |
| Surface du lot | 0,34 ha |
Ce terrain est boisé et doit être défriché pour être aménagé. Les parcelles sont disponibles ensemble ou séparément. Lot de 0,84 acre : 225 000$, lot de 0,83 acre : 175 000$. Prix du portefeuille de 350 000$.
Lot 3
| Surface du lot | 1,51 ha |
| Surface du lot | 1,51 ha |
3.74 acre lot
DESCRIPTION
These three contiguous parcels, totaling approximately ±5.41 acres, are fully zoned Main Street (MS) and present a rare opportunity to create a dynamic, mixed-use destination in the heart of Granite Quarry. Positioned along a highly visible corridor with strong traffic counts, the site offers exceptional flexibility for a wide range of development types. The property is ideally suited for a traditional small-town Main Street environment, with potential for ground-floor retail or restaurant storefronts and office or residential space above. Additionally, with a 30’ access easement providing dual access to Main Street and E. Lyerly Street, the site is uniquely configured to accommodate drive-thru or QSR (quick-service restaurant) users — a rare advantage in pedestrian-focused zoning. Granite Quarry’s land use plan actively promotes walkable, pedestrian-oriented development, and the MS zoning supports a broad range of commercial, residential, and mixed-use opportunities that complement the surrounding community and growing trade area. Parcel Breakdown: - Parcel 1: ±0.84 acres - Parcel 2: ±0.83 acres - Parcel 3: ±3.74 acres - Total: ±5.41 acres (contiguous)
Présenté par
Main Street Land Parcels | 00 Salisbury Ave
Hum, une erreur s’est produite lors de l’envoi de votre message. Veuillez réessayer.
Merci ! Votre message a été envoyé.
