Connectez-vous/S’inscrire
Votre e-mail a été envoyé.
0 W Military Hwy Industriel/Logistique | 2 323–18 766 m² | 4 étoiles | À louer | Mission, TX 78572



Certaines informations ont été traduites automatiquement.
Informations principales
- strategically located exactly 1.1 miles from The Anzalduas Bridge
- With immediate access from Anzaldua HWY
Caractéristiques
Hauteur libre
9,75 m
Portes de quai de chargement extérieures
54
Tous les espace disponibles(1)
Afficher les loyers en
- Espace
- Surface
- Durée
- Loyer
- Type de bien
- Aménagement
- Disponible
Build to suite office
- Espace en excellent état
- 130’ Truck court depth
- 31 Trailer parking spots
- Fully Sprinkled
- 54 quais de chargement
- 32’ Clear
- 3 Phase 480V
- 54 Dock Doors
| Espace | Surface | Durée | Loyer | Type de bien | Aménagement | Disponible |
| 1er étage | 2 323 – 18 766 m² | Négociable | Sur demande Sur demande Sur demande Sur demande | Industriel/Logistique | Construction achevée | 01/12/2026 |
1er étage
| Surface |
| 2 323 – 18 766 m² |
| Durée |
| Négociable |
| Loyer |
| Sur demande Sur demande Sur demande Sur demande |
| Type de bien |
| Industriel/Logistique |
| Aménagement |
| Construction achevée |
| Disponible |
| 01/12/2026 |
1 sur 1
Vidéos
Visite extérieure 3D Matterport
Visite 3D
Photos
Street view
Rue
Carte
1er étage
| Surface | 2 323 – 18 766 m² |
| Durée | Négociable |
| Loyer | Sur demande |
| Type de bien | Industriel/Logistique |
| Aménagement | Construction achevée |
| Disponible | 01/12/2026 |
Build to suite office
- Espace en excellent état
- 54 quais de chargement
- 130’ Truck court depth
- 32’ Clear
- 31 Trailer parking spots
- 3 Phase 480V
- Fully Sprinkled
- 54 Dock Doors
Aperçu du bien
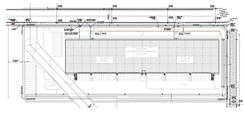
Rare opportunity to lease 25,000-202,000 SF strategically located exactly 1.1 miles from The Anzalduas Bridge on the US/ Mexican border, located In Mission Tx. With immediate access from Anzaldua HWY, the Park will be benefiting from the Expansion project on The Anzalduas Bridge which is set to be delivered by the end of 2026
Faits sur l’installation distribution
Surface de l’immeuble
18 766 m²
Surface du lot
14,45 ha
Année de construction
2026
Terrain de camion
39,62 m
Alimentation électrique
Volts: 480 Phase: 3
1 1
Not walkable
10/100
Exceptionally drivable
100/100
Somewhat bikeable
30/100
1 sur 4
Vidéos
Visite extérieure 3D Matterport
Visite 3D
Photos
Street view
Rue
Carte
1 sur 1
Présenté par
0 W Military Hwy
Vous êtes déjà membre ? Connectez-vous
Hum, une erreur s’est produite lors de l’envoi de votre message. Veuillez réessayer.
Merci ! Votre message a été envoyé.



